公布日:2024.04.19
申請日:2024.02.02
分類號:C02F9/00(2023.01)I;C02F3/02(2023.01)N;C02F3/28(2023.01)N;C02F3/32(2023.01)N;C02F1/00(2023.01)N;C02F103/42(2006.01)N
摘要
本發明公開一種庭院式多功能農村污水凈化及再利用裝置及其方法。該裝置包括化糞池、多功能污水凈化設備和生態處理設備,污水凈化裝置包括好氧微生物反應裝置、缺氧微生物反應裝置、曝氣裝置、黑水精密過濾裝置、粗效過濾裝置、灰水精密過濾裝置和混合提升裝置;生態處理設備包括提升泵、多級濾床裝置、挺水植物凈化裝置和出水回用種植裝置;該方法使用該裝置。該裝置經過科學的集成化設計,通過生化-物化相結合的方法,利用生態系統中的物理、化學和生物的三重協同作用,可有效地解決因發展規劃、地形地勢等外界因素無法集中收集處理的農戶對于污水處理的需求;該方法運行效率高,運行過程操作難度小,運行成本低廉,極具推廣前景。

權利要求書
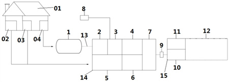
1.一種庭院式多功能農村污水凈化及再利用裝置,其特征在于,包括:化糞池,所述化糞池用以對黑水進行固液分離及厭氧消化反應;多功能污水凈化設備,所述污水凈化裝置包括好氧微生物反應裝置、缺氧微生物反應裝置、曝氣裝置、黑水精密過濾裝置、粗效過濾裝置、灰水精密過濾裝置和混合提升裝置,所述好氧微生物反應裝置的進水口與所述化糞池的出水口連接,所述缺氧微生物反應裝置的進氣口與所述曝氣裝置的出氣口連接,所述好氧微生物反應裝置、所述缺氧微生物反應裝置和所述黑水精密過濾裝置依次連通以凈化黑水,所述粗效過濾裝置和灰水精密過濾裝置連通以凈化灰水,所述黑水精密過濾裝置和所述灰水精密過濾裝置均與所述混合提升裝置連通;生態處理設備,所述生態處理設備包括提升泵、多級濾床裝置、挺水植物凈化裝置和出水回用種植裝置,所述提升泵的進水口與所述混合提升裝置的出水口連接,所述多級濾床裝置的進水口與所述提升泵的出水口連接以凈化入水,所述多級濾裝置、所述挺水植物凈化裝置和所述出水回用種植裝置依次連通以將凈化后的污水就地回用;其中,所述化糞池的出水口與所述好氧微生物反應裝置的進水口之間、所述缺氧微生物反應裝置的進氣口與所述曝氣裝置的出氣口之間、所述混合提升裝置的出水口與所述提升泵的進水口之間以及所述提升泵的出水口與所述多級濾床裝置的進水口之間均設有管道以進行連通,所述化糞池、好氧微生物反應裝置、所述缺氧微生物反應裝置和所述黑水精密過濾裝置構成黑水處理單元,所述粗效過濾裝置和灰水精密過濾裝置構成灰水處理單元,所述黑水處理單元和所述灰水處理單元互不連通。
2.根據權利要求1所述的庭院式多功能農村污水凈化及再利用裝置,其特征在于,所述好氧微生物反應裝置包括好氧池、多個殼體和多個強化硝化效果的改性高分子生物填料,所述好氧池的進水口與所述化糞池的出水口連接,所述好氧池與所述缺氧微生物反應裝置連通,所述殼體為中空魚網狀多孔懸浮球體,所述殼體均設于所述好氧池內,多個所述改性高分子生物填料設于單個所述殼體內。
3.根據權利要求1所述的庭院式多功能農村污水凈化及再利用裝置,其特征在于,所述缺氧微生物反應裝置包括缺氧池、主體和改性聚氨酯填料,所述缺氧池的一端與所述好氧微生物反應裝置連通,所述好氧池的另一端與所述黑水連通,所述主體為網狀大孔結構,所述主體設于所述缺氧池內,所述改性聚氨酯填料耦合于所述主體內。
4.根據權利要求1所述的庭院式多功能農村污水凈化及再利用裝置,其特征在于,所述黑水精密過濾裝置、所述粗效過濾裝置和所述灰水精密過濾裝置的過濾介質均為石英砂。
5.根據權利要求1所述的庭院式多功能農村污水凈化及再利用裝置,其特征在于,所述多級濾床裝置的濾料包括卵石層和陶粒沸石混合層,所述卵石層設于所述陶粒沸石混合層的下方,所述卵石層和所述陶粒沸石混合層的單粒直徑從下到上依次為16-32mm、8-16mm、4-8mm、2-4mm。
6.根據權利要求1所述的庭院式多功能農村污水凈化及再利用裝置,其特征在于,所述挺水植物凈化裝置包括挺水植物凈化池、復合土層和挺水植物,所述挺水植物凈化池與所述多級濾床裝置連通,所述復合土層填設于所述挺水植物凈化池內,所述挺水植物種植于所述復合土層上。
7.根據權利要求1所述的庭院式多功能農村污水凈化及再利用裝置,其特征在于,所述出水回用種植裝置包括出水回用種植池、本地土和植物,所述出水回用種植池與所述挺水植物凈化裝置連通,所述本地土層填設于所述出水回用種植池內,所述本地土層的左端與挺水植物凈化裝置的右端連接,所述植物種植于所述本地土層上。
8.根據權利要求1所述的庭院式多功能農村污水凈化及再利用裝置,其特征在于,所述曝氣設備為變頻調速風機。
9.根據權利要求1所述的庭院式多功能農村污水凈化及再利用裝置,其特征在于,還包括就地控制柜,所述就地控制柜與所述曝氣設備以及所述提升泵均連接以進行就地控制。
10.一種庭院式多功能農村污水凈化及再利用方法,利用權利要求1-9任一項所述的庭院式多功能農村污水凈化及再利用裝置,其特征在于,包括:步驟1:農戶產生的黑水通過管道進入所述化糞池,黑水在所述化糞池內進行固液分離及厭氧消化反應;黑水經過所述化糞池進入所述好氧微生物反應裝置,利用所述好氧微生物反應裝置內的微生物將水中的氨高效氧化為硝態氮;黑水經過所述好氧微生物反應裝置后再通過所述缺氧微生物反應裝置,利用所述缺氧微生物反應裝置內微生物在缺氧狀態下還原硝態氮,釋放出分子態氮或一氧化二氮;黑水經過所述缺氧微生物反應裝置后再通過所述黑水精密過濾裝置,對黑水中的懸浮物進行截留;步驟2:農戶產生的灰水通過管道進入所述粗效過濾裝置,完成對灰水進行粗過濾的過程;灰水經過所述粗效過濾裝置后再通過所述灰水精密過濾裝置,完成對灰水的精密過濾的過程;步驟3:經過所述黑水精密過濾裝置的黑水進入所述混合提升裝置;經過所述灰水精密過濾裝置的灰水進入所述混合提升裝置;在所述混合提升裝置內混合后的黑水和灰水進入所述多級濾床裝置,在所述多級濾床裝置內完成多級過濾的過程。步驟4:黑水和灰水經過所述多級濾床裝置后進入所述挺水植物凈化裝置,通過生化-物化相結合的方法,利用生態系統中的物理、化學和生物的三重協同作用,通過過濾、吸附、沉淀、離子交換、植物吸收和微生物分解來實現對污染水體的高效凈化;已凈化的污水經過所述挺水植物凈化裝置進入所述出水回用種植裝置,利用植物種植,完成污水處理后就地回用的過程。
發明內容
為解決上述背景技術中提到的至少一個問題,本發明的目的在于,提供一種庭院式多功能農村污水凈化及再利用裝置及其方法。
本發明通過如下技術方案實現:
一種庭院式多功能農村污水凈化及再利用裝置,包括:
化糞池,所述化糞池用以對黑水進行固液分離及厭氧消化反應;
多功能污水凈化設備,所述污水凈化裝置包括好氧微生物反應裝置、缺氧微生物反應裝置、曝氣裝置、黑水精密過濾裝置、粗效過濾裝置、灰水精密過濾裝置和混合提升裝置,所述好氧微生物反應裝置的進水口與所述化糞池的出水口連接,所述缺氧微生物反應裝置的進氣口與所述曝氣裝置的出氣口連接,所述好氧微生物反應裝置、所述缺氧微生物反應裝置和所述黑水精密過濾裝置依次連通以凈化黑水,所述粗效過濾裝置和灰水精密過濾裝置連通以凈化灰水,所述黑水精密過濾裝置和所述灰水精密過濾裝置均與所述混合提升裝置連通;
生態處理設備,所述生態處理設備包括提升泵、多級濾床裝置、挺水植物凈化裝置和出水回用種植裝置,所述提升泵的進水口與所述混合提升裝置的出水口連接,所述多級濾床裝置的進水口與所述提升泵的出水口連接以凈化入水,所述多級濾裝置、所述挺水植物凈化裝置和所述出水回用種植裝置依次連通以將凈化后的污水就地回用;
其中,所述化糞池的出水口與所述好氧微生物反應裝置的進水口之間、所述缺氧微生物反應裝置的進氣口與所述曝氣裝置的出氣口之間、所述混合提升裝置的出水口與所述提升泵的進水口之間以及所述提升泵的出水口與所述多級濾床裝置的進水口之間均設有管道以進行連通,所述化糞池、好氧微生物反應裝置、所述缺氧微生物反應裝置和所述黑水精密過濾裝置構成黑水處理單元,所述粗效過濾裝置和灰水精密過濾裝置構成灰水處理單元,所述黑水處理單元和所述灰水處理單元互不連通。
可選的,所述好氧微生物反應裝置包括好氧池、多個殼體和多個強化硝化效果的改性高分子生物填料,所述好氧池的進水口與所述化糞池的出水口連接,所述好氧池與所述缺氧微生物反應裝置連通,所述殼體為中空魚網狀多孔懸浮球體,所述殼體均設于所述好氧池內,多個所述改性高分子生物填料設于單個所述殼體內。
可選的,所述缺氧微生物反應裝置包括缺氧池、主體和改性聚氨酯填料,所述缺氧池的一端與所述好氧微生物反應裝置連通,所述好氧池的另一端與所述黑水精密過濾裝置連通,所述主體為網狀大孔結構,所述主體設于所述缺氧池內,所述改性聚氨酯填料耦合于所述主體內。
可選的,所述黑水精密過濾裝置、所述粗效過濾裝置和所述灰水精密過濾裝置的過濾介質均為石英砂。
可選的,所述多級濾床裝置的濾料包括卵石層和陶粒沸石混合層,所述卵石層設于所述陶粒沸石混合層的下方,所述卵石層和所述陶粒沸石混合層的單粒直徑從下到上依次為16-32mm、8-16mm、4-8mm、2-4mm。
可選的,所述挺水植物凈化裝置包括挺水植物凈化池、復合土層和挺水植物,所述挺水植物凈化池與所述多級濾床裝置連通,所述復合土層填設于所述挺水植物凈化池內,所述挺水植物種植于所述復合土層上。
可選的,所述出水回用種植裝置包括出水回用種植池、本地土和植物,所述出水回用種植池與所述挺水植物凈化裝置連通,所述本地土層填設于所述出水回用種植池內,所述本地土層的左端與挺水植物凈化裝置的右端連接,所述植物種植于所述本地土層上。
可選的,所述曝氣設備為變頻調速風機。
可選的,還包括就地控制柜,所述就地控制柜與所述曝氣設備以及所述提升泵均連接以進行就地控制。
一種庭院式多功能農村污水凈化及再利用方法,利用上述任一項實施例提供的庭院式多功能農村污水凈化及再利用裝置,包括:
步驟1:農戶產生的黑水通過管道進入所述化糞池,黑水在所述化糞池內進行固液分離及厭氧消化反應;黑水經過所述化糞池進入所述好氧微生物反應裝置,利用所述好氧微生物反應裝置內的微生物將水中的氨高效氧化為硝態氮;黑水經過所述好氧微生物反應裝置后再通過所述缺氧微生物反應裝置,利用所述缺氧微生物反應裝置內微生物在缺氧狀態下還原硝態氮,釋放出分子態氮或一氧化二氮;黑水經過所述缺氧微生物反應裝置后再通過所述黑水精密過濾裝置,對黑水中的懸浮物進行截留;
步驟2:農戶產生的灰水通過管道進入所述粗效過濾裝置,完成對灰水進行粗過濾的過程;灰水經過所述粗效過濾裝置后再通過所述灰水精密過濾裝置,完成對灰水的精密過濾的過程;
步驟3:經過所述黑水精密過濾裝置的黑水進入所述混合提升裝置;經過所述灰水精密過濾裝置的灰水進入所述混合提升裝置;在所述混合提升裝置內混合后的黑水和灰水進入所述多級濾床裝置,在所述多級濾床裝置內完成多級過濾的過程。
步驟4:黑水和灰水經過所述多級濾床裝置后進入所述挺水植物凈化裝置,通過生化-物化相結合的方法,利用生態系統中的物理、化學和生物的三重協同作用,通過過濾、吸附、沉淀、離子交換、植物吸收和微生物分解來實現對污染水體的高效凈化;已凈化的污水經過所述挺水植物凈化裝置進入所述出水回用種植裝置,利用植物種植,完成污水處理后就地回用的過程。
本發明的有益效果是:本發明的庭院式多功能農村污水凈化及再利用裝置及其方法,解決現有技術中因地形地勢等自然條件無法將污水收集處理、周邊道路不宜大規模開挖無法就地收集等技術問題,實現有益效果:該庭院式多功能農村污水凈化及再利用裝置經過科學的集成化設計,通過生化-物化相結合的方法,利用生態系統中的物理、化學和生物的三重協同作用,通過過濾、吸附、沉淀、離子交換、植物吸收和微生物分解來實現對污染水體的高效凈化,可有效地解決因發展規劃、地形地勢等外界因素無法集中收集處理的農戶對于污水處理的需求;該農村污水凈化及再利用方法運行效率高,運行過程操作難度小,運行成本低廉,極具推廣前景。
(發明人:唐朕;黃曉慧;張殿權;安文斌;孫旭;秦明峰;騰勝平;張金強;王乃舜;馮晶晶)






