水資源是人類賴以生存的自然資源之一。多年來,人類高速的發展中,對水資源造成某種程度的污染和損害;目前,水資源短缺已經成為影響全球經濟和社會發展的關鍵。因此,對水資源的綜合利用十分重要。其中,對于廢水處理后的回收利用非常關鍵。當前,已經初步實現了對生活污水的回收利用,而對于工業廢水的回收利用,尤其是高濃度有機污染物化工廢水的治理還處于起步階段。在化工廢水的回用處理中,除了保證最終的處理效果外,還重點考慮處理成本。本文將針對氯堿化工廢水的回用處理工藝展開研究
1、工程概況
氯堿化工工藝是我國化工行業的基礎,該工藝具有耗水量大、排污量大的特點。總的來講,氯堿化工工藝具有水質差異明顯、成分復雜,且水質中的無機物、懸浮物的含量高等特點,導致氯堿化工廢水難以降解,其對應的生化性較差。本文所研究氯堿化工廢水的各項參數指標如表1所示。

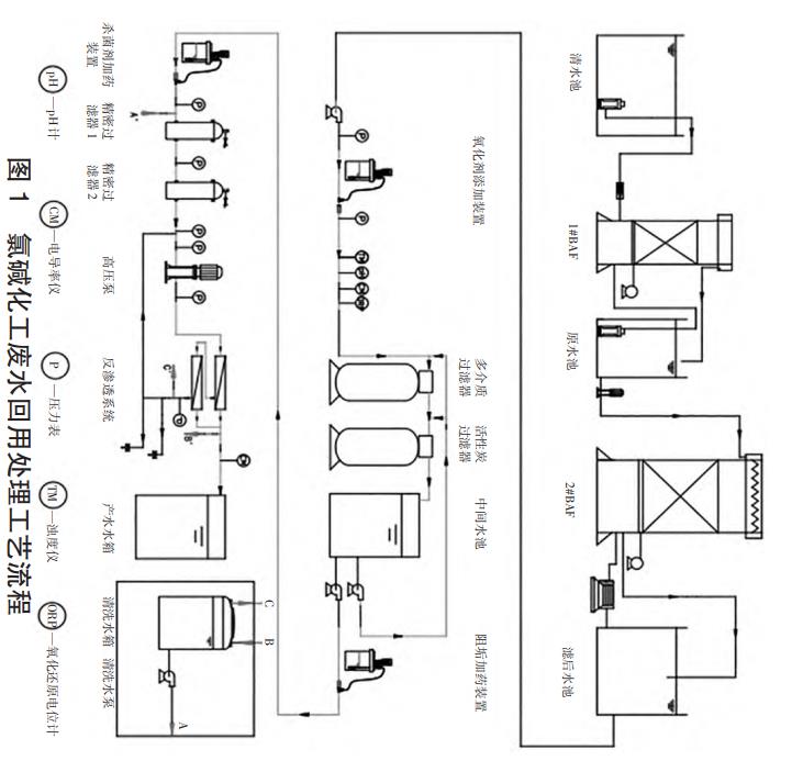
目前,該化工廠所配套的氯堿廢水處理能力為8000t/d。為了保證氯堿化工廢水處理再利用時不會對設備造成損壞,要求氯堿廢水處理后期電導率控制在300μS/cm,即將其中的含鹽量降低。其次,將其中的氯離子質量濃度控制在150mg/L之內。氯堿廢水回用處理工藝流程如圖1所示。

本文所研究的氯堿化工廢水回用處理工藝中的核心工藝環節包括有曝氣生物濾池和反滲透系統,本文將重點對上述兩個關鍵環節展開試驗研究,并在試驗過程中采用壓力表、轉子流量計、電導率儀、pH探頭、ORP探頭以及濁度儀等對水質進行檢測。
2、曝氣生物濾池試驗研究
曝氣生物濾池為基于新型生物膜對污水進行處理的一項工藝,該項工藝具有集曝氣、定期反沖洗、高濾速的特點。本工程將首先采用曝氣生物濾池對氯堿化工廢水進行初步處理,減小后續環節污水處理的負荷。本文將重點對氣水比和水力負荷對曝氣生物濾池污水處理效果的影響展開試驗研究。
2.1 氣水比對污水處理效果的試驗研究
所謂氣水比指的是采用曝氣生物濾池對污水進行預處理時曝氣量與進水流量之間的比例。從理論上講,氣水比不僅對反應器的含氧量有影響;而且不同的氣水比對應的填料表面的水力條件存在差異,從而對曝氣生物濾池的正常運行具有一定的影響。對氣水比分別為4∶1、5∶1、6∶1時的處理能力進行對比,基礎工藝參數設置如下:污水進水流量為5m3/h,水力停留時間為2h,水力負荷為1.6m3(/m·2h)。對系統運行10d內的進、出水水質進行測定,包括不同氣水比下的COD、氨氮以及濁度去除率進行對比,對比結果如表2所示。

如表2所示,隨著氣水比的增加,對應COD的去除率逐漸增加,但是,氣水比從4∶1增加到6∶1時COD的去除率僅增加5.66%,也就是說,當氣水比為4∶1時對應的COD去除率已經達到較高的水平;氨氮去除率逐漸小幅增加,可以說在三個不同比例的氣水比下對應氨氮的去除率已經達到一個相對穩定的狀態;而濁度去除率逐漸減小。所以,應將曝氣生物濾池的氣水比控制在4∶1。
2.2 水力負荷對污水處理效果的影響
水力負荷可以直觀地反映曝氣生物濾池處理能力。水力負荷與進水流量、水力停留時間有關,分別對水力負荷為1.9m3(/m·2h)、2.2m3(/m·2h)、2.5m3(/m·2h),氣水比為4∶1時對系統運行10d內的進、出水水質進行測定,包括不同水力負荷下的COD、氨氮以及濁度去除率進行對比,對比結果如表3所示。

如表3所示,隨著水力負荷的增加,對應COD的去除率處于動態變化,但是幅度很小,也就是說,水力負荷對COD去除率的影響不大;氨氮去除率逐漸小幅增加,但是水力負荷從1.9m3/(m2·h)增加到2.5m3(/m2·h)時,氨氮的去除率下降僅1.35%;濁度去除率逐漸小幅減小,但是水力負荷從1.9m3(/m2·h)增加到2.5m3/(m2·h)時,氨氮的去除率下降僅3.37%。綜上所述,隨著水力負荷的變化對應污水處理效果變化不明顯。考慮到處理成本以及工序的復雜程度,將水力負荷參數確定為1.9m3(/m·2h)。
實踐表明,對應的氣水比為4∶1,水力負荷為1.9m3(/m2·h)時對應出水的COD值小于30mg/L,氨氮質量濃度小于10mg/L,濁度在3NTU~6NTU之間。上述處理后的水質3個指標滿足GB/T18920—2002的水質標準要求。
3、反滲透系統試驗研究
反滲透系統為對經曝氣生物濾池處理后的出水進行再次處理的裝置。為了保證反滲透系統的穩定運行,需為其設置前端合理且有效的預處理系統。所謂預處理系統主要功能是防止后續膜的表面受到污染和結垢現象,避免后續膜出現一定程度的化學機械損傷。本工程為反滲透系統配套的預處理系統為多介質過濾器和活性炭過濾器。試驗表明,在預處理系統的作用下可將污水中的懸浮顆粒降低至1NTU以下。
本工程中所采用的反滲透系統由5根膜元件通過串聯的方式實現連接,經反滲透系統處理后水質的相關指標如表4所示。

試驗表明,經反滲透系統處理后出水水質滿足GB/T19923—2005的要求。
4、結語
在日常生產和生活中勢必會產生一定量的生活污水和生產廢水。目前,針對生活污水的回用處理研究已經取得一定的成績,而針對生產廢水尤其是化工生產廢水的回用處理還處于起步階段。本文以曝氣生物濾池和反滲透系統為核心的氯堿化工廢水的回用處理工藝展開研究,并總結如下:
1)當氣水比為4∶1、水力負荷為1.9m3(/m2·h)時對應出水的COD值小于30mg/L,氨氮質量濃度小于10mg/L,濁度在3NTU~6NTU之間。上述處理后的水質的3個指標滿足GB/T18920—2002的水質標準要求。
2)在反滲透預處理系統的作用下可保證進入反滲透系統中水質的濁度小于1NTU,在反滲透系統的作用下出水水質的COD、氨氮、氯離子以及電導率等指標均滿足GB/T19923—2005的要求。(來源:山西興新安全生產技術服務有限公司)



