申請日2015.08.20
公開(公告)日2016.02.17
IPC分類號C02F11/12; C02F11/18
摘要
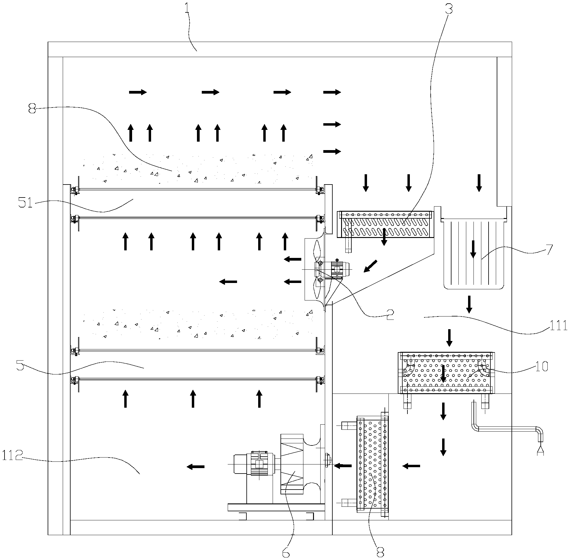
本實用新型公開一種污泥低溫余熱干化單元,包括框架,所述框架設置有污泥干燥區和功能區,所述污泥干燥區和功能區之間設置有擋板相隔,在所述污泥干燥區與功能區之間設置有送風機和回風口,在所述功能區中安裝一級加熱器、二級加熱器和冷卻器,所述一級加熱器、二級加熱器分別設置有加熱水進口和加熱水出口,所述冷卻器設置冷卻水進口和冷卻水出口;空氣通過冷卻器進行熱交換,然后通過二級加熱器進行加熱后通過送風機進入污泥干燥區。本實用新型有如下優點:節能性好,安全性高,環保性好,無尾氣排放,無需臭氣處理系統;整個干化過程可都在密閉環境條件下進行,不會有氣體排到外界環境中,不會造成二次環境污染。
權利要求書
1.污泥低溫余熱干化單元,其特征在于,包括框架,所述框架設置有污泥干燥區和功能區,所述污泥干燥區和功能區之間設置有擋板相隔,在所述污泥干燥區與功能區之間設置有送風機和回風口,在所述功能區中安裝一級加熱器、二級加熱器和冷卻器,所述一級加熱器、二級加熱器分別設置有加熱水進口和加熱水出口,所述冷卻器設置冷卻水進口和冷卻水出口;空氣通過冷卻器進行熱交換,然后通過二級加熱器進行加熱后通過送風機進入污泥干燥區。
2.根據權利要求1所述的污泥低溫余熱干化單元,其特征在于,所述回風口的回風一部分通過一級加熱器后經循環風機進入污泥干燥區。
3.根據權利要求2所述的污泥低溫余熱干化單元,其特征在于,所述功能區中還安裝有回熱器,空氣通過回熱器熱側后通過冷卻器進行熱交換,然后通過回熱器冷側后與二級加熱器進行加熱,然后通過送風機進入污泥干燥區用于干燥。
4.根據權利要求3所述的污泥低溫余熱干化單元,其特征在于,所述二級加熱器的出風口與冷卻器之間設置隔板相隔。
5.根據權利要求4所述的污泥低溫余熱干化單元,其特征在于,空氣入口處設置有過濾網。
6.根據權利要求5所述的污泥低溫余熱干化單元,其特征在于,所述冷卻器下設置冷凝水收集管,所述冷凝水收集管上設置冷凝水排放口。
7.根據權利要求3所述的污泥低溫余熱干化單元,其特征在于,所述一級加熱器位于框架上端,所述二級加熱器、回熱器、冷卻器分別設置兩個,兩個所述二級加熱器分別設置于框架兩側,兩個所述冷卻器設置于框架中部,兩個回熱器分靠近安裝于二級加熱器內側。
8.根據權利要求7所述的污泥低溫余熱干化單元,其特征在于,所述回熱器為板翅式回熱器。
9.根據權利要求1所述的污泥低溫余熱干化單元,其特征在于,所述污泥干燥區的底部預留有混風區。
10.根據權利要求9所述的污泥低溫余熱干化單元,其特征在于,所述污泥干燥區內設置有均風板。
說明書
污泥低溫余熱干化單元
【技術領域】
本實用新型涉及干燥設備領域,特別是一種污泥低溫余熱干化單元。
【背景技術】
目前,常用的干化系統主要以直接或間接加熱方式進行,且是以干燥溫度大于150℃的干化工藝為主。現有干化機采用石化能源(燃煤、燃油、燃氣)作為燃料進行加熱。
總的來說,現有污泥干化機存在以下不足:
(1)能耗高,污泥干化是能量凈消耗過程,采用蒸汽或導熱油作為熱源,需要消耗大量的石化能源(燃煤、燃油、燃氣、電熱等),能耗費用通常占污泥處理總費用的80%以上;現有污泥干化設備采用加熱排濕方式,能源利用率低;每蒸發一噸水消耗蒸汽量約1.5噸,另消耗電量約70kw.h;
(2)現有高溫煙氣余熱干化存在干化溫度高、粉塵量大、排放尾氣難處理;
(3)存在安全風險,采用100℃以上干化溫度存在安全風險,污泥干化為避免爆炸通常需要采用加氮方式降低含氧量;
(4)不環保,排放大量臭氣,需建造負責的尾氣處理系統;干化車間工作環境差;干化過程供熱熱源采用鍋爐,也排放大量的尾氣,存在二次污泥問題。
(5)干化過程復雜,存在污泥黏糊區,裝置磨損件多,維護量大。
【實用新型內容】
本實用新型的目的在于針對以上所述現有技術存在的不足,提供一種可以進行模塊化組裝,節能環保,安全可靠且效率高的污泥低溫余熱干化單元。
為達到上述目的,本實用新型的技術方案是:污泥低溫余熱干化單元,包括框架,所述框架設置有污泥干燥區和功能區,所述污泥干燥區和功能區之間設置有擋板相隔,在所述污泥干燥區與功能區之間設置有送風機和回風口,在所述功能區中安裝一級加熱器、二級加熱器和冷卻器,所述一級加熱器、二級加熱器分別設置有加熱水進口和加熱水出口,所述冷卻器設置冷卻水進口和冷卻水出口;空氣通過冷卻器進行熱交換,然后通過二級加熱器進行加熱后通過送風機進入污泥干燥區。
所述回風口的回風一部分通過一級加熱器后經循環風機進入污泥干燥區。
優選的,所述功能區中還安裝有回熱器,空氣通過回熱器熱側后通過冷卻器進行熱交換,然后通過回熱器冷側后與二級加熱器進行加熱,然后通過送風機進入污泥干燥區用于干燥。
所述二級加熱器的出風口與冷卻器之間設置隔板相隔,用于進行絕熱,以減少熱量損失。
空氣入口處設置有過濾網,用于對空氣進行過濾,減少粉塵等進入,延長使用壽命。
所述冷卻器下設置冷凝水收集管,所述冷凝水收集管上設置冷凝水排放口。
所述一級加熱器位于框架上端,所述二級加熱器、回熱器、冷卻器分別設置兩個,兩個所述二級加熱器分別設置于框架兩側,兩個所述冷卻器設置于框架中部,兩個回熱器分靠近安裝于二級加熱器內側。
所述回熱器為板翅式回熱器。
所述污泥干燥區的底部預留有混風區,用于使進入的風進行混合,提高干燥效率。
所述污泥干燥區內設置有均風板,用于時干燥風能夠均勻的分布于污泥干燥區內。
與現有技術相比,本實用新型有如下優點:節能性好:采用低溫余熱(95 ℃以下)進行干化,每蒸發一噸水耗電量僅70kw.h;安全性高:低溫(48-80℃) 全封閉干化工藝,抑制揮發性氣體揮發,可安全運行;適用性強:可滿足含水率從50~83%污泥污泥干化,可將含水率83%泥餅一次干燥成為含水10%污泥顆粒;采用連續網帶干燥模式,不受污泥黏糊區的影響,適合各類型污泥干化系統(包括含砂量大污泥),易損件少,易維護,使用壽命長;環保性好:無尾氣排放,無需臭氣處理系統;整個干化過程可都在密閉環境條件下進行,不會有氣體排到外界環境中,不會造成二次環境污染。







