公布日:2023.09.12
申請日:2022.03.04
分類號:B01D21/00(2006.01)I;B01D21/02(2006.01)I;B01D21/24(2006.01)I
摘要
本發明公開了一種沉淀池高效排泥聯鎖自動化系統,包括固定在沉淀池刮泥機行車上的沉淀池排泥自吸泵,所述排泥自吸泵連接有排泥管道,第一排泥管道固定在刮泥機行車上,污泥暫存池中設有第一液位計,所述污泥暫存池中有污泥泵,所述污泥泵與污泥池通過第二排泥管道相連,該排泥自動化系統邏輯清晰、操作簡單、維護安裝方便、自動化程度高、能耗低、適應性強、體積小、成本小。

權利要求書
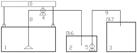
1.一種沉淀池高效排泥聯鎖自動化系統,其特征在于:包括固定在沉淀池刮泥機行車上(10)的沉淀池排泥自吸泵(4),所述排泥自吸泵(4)連接有排泥管道(8),第一排泥管道(8)固定在刮泥機行車(10)上,污泥暫存池(2)中設有第一液位計(6),所述污泥暫存池(2)中有污泥泵(5),所述污泥泵(5)與污泥池(3)通過第二排泥管道(9)相連,所述污泥池(3)中有第二液位計(7),所述排泥自吸泵(4)、污泥泵(5)、第一液位計(6)和第二液位計(7)均與外部集中控制系統相連。
2.如權利要求1所述的一種沉淀池高效排泥聯鎖自動化系統,其特征在于:所述沉淀池排泥自吸泵(4)與刮泥機行車(10)通過鐵鏈連接在一起。
3.如權利要求1所述的一種沉淀池高效排泥聯鎖自動化系統,其特征在于:所述排泥自吸泵(4)與第一排泥管道(8)通過鋼管連接。
4.如權利要求1所述的一種沉淀池高效排泥聯鎖自動化系統,其特征在于:所述第一排泥管道(8)與所述刮泥機行車(10)通過焊接或打孔設卡固定。
5.如權利要求1所述的一種沉淀池高效排泥聯鎖自動化系統,其特征在于:所述污泥泵(5)與所述污泥池(3)通過鐵管或者PVC管道相連。
6.如權利要求1所述的一種沉淀池高效排泥聯鎖自動化系統,其特征在于:所述排泥自吸泵(4)、污泥泵(5)、第一液位計(6)、第二液位計(7)均通過信號控制線與外部集中控制系統連接。
7.如權利要求1所述的一種沉淀池高效排泥聯鎖自動化系統,其特征在于:所述第一排泥管道(8)的底部固定連接有濾網。
發明內容
針對上述存在的技術不足,本發明的目的是提供一種成本小,操作方便,排泥高效的沉淀池高效排泥聯鎖系統,能有效減少人力資源,提高排泥自動化程度。
為解決上述技術問題,本發明采用如下技術方案:本發明提供一種沉淀池高效排泥聯鎖系統,包括固定在沉淀池刮泥機行車上的沉淀池排泥自吸泵,所述排泥自吸泵連接有排泥管道,第一排泥管道固定在刮泥機行車上,污泥暫存池中設有第一液位計,所述污泥暫存池中有污泥泵,所述污泥泵與污泥池通過第二排泥管道相連,所述污泥池中有第二液位計,所述排泥自吸泵、污泥泵、第一液位計和第二液位計均與外部集中控制系統相連。
優選地,所述沉淀池排泥自吸泵與刮泥機行車通過鐵鏈連接在一起。
優選地,所述排泥自吸泵與第一排泥管道通過鋼管連接。
優選地,所述第一排泥管道與所述刮泥機行車通過焊接或打孔設卡固定。
優選地,所述第二排泥管道為鐵管或者PVC管道相連。
優選地,所述排泥自吸泵、污泥泵、第一液位計、第二液位計均通過信號控制線與外部集中控制系統連接。
優選地,所述第一排泥管道的底部固定連接有濾網。
本發明的有益效果在于:本沉淀池高效排泥聯鎖系統,能夠隨時隨地進行排泥,不受時間天氣限制;本排泥系統更高效,節約人工成本,可遠程操作,且操作簡單便捷;本排泥自動化系統邏輯清晰、操作簡單、維護安裝方便、自動化程度高、能耗低、適應性強、體積小、成本小。
(發明人:李豐登;孫長城;馬杰;周東升)






