近10 年我國有色金屬行業發展迅速,但在其冶煉過程中也產生了大量強酸性、高濃度的混合重金屬冶金廢水,例如含有Zn2+和Cd2+等重金屬離子的復合廢水。這些重金屬一旦進入自然環境,將對人體健康產生極大的危害〔1, 2〕。
現階段處理重金屬廢水的方法有化學沉淀法〔3〕、生物法〔4〕等。化學沉淀法可去除廢水中的大部分重金屬,但其對環境的pH 要求較高且產生大量廢渣,產生的廢渣仍需進一步處理〔5〕。生物法處理重金屬廢水成本較低,但前期微生物的馴化需花費大量時間〔6〕,且菌種篩選較難。電絮凝將電化學、化學混凝和電氣浮3 種技術結合,用其處理重金屬廢水不僅能完全去除重金屬,且具有設備簡單,操作簡便,運行周期短〔7〕,成本低等優點。而如何運用電絮凝高效并節能地處理重金屬廢水,很大程度上取決于反應器構造。現階段電絮凝反應器形式主要有單極反應器、雙級反應器、柱形流反應器等。其中,單級并聯式是一種能夠高效、節能地去除重金屬離子的電絮凝反應器的構造方式〔7〕。該反應器將陰陽極板交錯排列,使廢水以折流方式通過極板,污染物能夠與極板充分接觸,在較短的電解時間內達到較高的去除率。
筆者采用單級并聯式電絮凝反應器處理含Zn2+和Cd2+兩種重金屬離子的冶金廢水,考察了pH、電流密度和電解時間3 個因素對處理效果的影響,并比對了電流效率和耗電量,為后續中試工程奠定基礎。
1 試驗材料與方法
1.1 試驗裝置
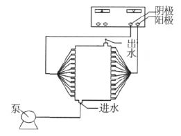
筆者采用的單級并聯式電絮凝反應器,陽極為鋁板,直徑10 cm,厚1 cm,陰極為不銹鋼板,直徑10 cm,厚4 mm,極板間距為1 cm,共23 層。裝置如圖 1、2 所示。廢水從下端進入反應器后折疊流動,經處理后,從上端出水口排出。這種進水方式,可使廢水與反應器完全接觸,并分布均勻,從而使各個單元都能充分作用。極板與反應器邊緣的空隙,可使形成的絮體及時排出。這種構造抗沖擊負荷能力較強,較其他形狀反應器更能承受波動較大的進水〔7〕。

圖 1 單極式并聯電絮凝反應器設備運行流程
圖 2 單極式并聯電絮凝反應器內部單元構造
1.2 試驗用水
廢水取自湖南某冶鋅廠,水質指標如下:廢水呈酸性,pH 為3.08,SO42-質量濃度為1.5~2.0 g/L。廢水中含有Zn2+和Cd2+兩種重金屬離子,其質量濃度分別為318.3、0.93 mg/L,分別為排放標準的320 倍和18.6 倍。
1.3 試驗方法
試驗用水采用冶煉工藝流程中產生的實際廢水。將廢水儲存在150 L 塑料桶內,加氧化鈣調節pH 后,由蠕動泵抽入電絮凝裝置,處理后從上端出水口流出,用1 L 燒杯收集。出水靜置10 min 后,用注射器于液面下2~3 cm 處取樣,用0.45 μm 微濾膜過濾至15 mL 離心管中,加硝酸至pH<2,采用ICPMS(X Series II,Thermo Fisher,USA) 檢測兩種重金屬離子的濃度。
2 結果與討論
2.1 pH 對處理效果的影響
pH 是電絮凝過程中一個重要影響因素。一方面決定著水中羥基鋁化合物的形態,另一方面還會影響陽極表面膠體的形成〔8〕。筆者研究在電解時間為100 s,電流密度為6 mA/cm2 的運行條件下,pH 對電絮凝處理效果的影響,試驗結果如表 1 所示。

如表 1 所示,出水中兩種重金屬離子的濃度隨pH 的升高而降低。這是由于隨著pH 的升高,會形成更多的羥鋁化合物,通過網捕、卷掃等作用去除更多的重金屬離子〔9〕。當pH 為9 時,出水中Zn2+的質量濃度為0.94 mg/L,去除率在99%以上,同時Cd2+為0.043 mg/L,去除率為99.54%,滿足GB 25466—2010 排放標準。因此,試驗選擇pH 為9。
2.2 電解時間對處理效果的影響
電解時間也是影響電絮凝處理效果的關鍵因素之一。其主要通過Al3+產生的速率來影響電絮凝處理的效率〔10〕,同時電解時間還決定了污染物和羥鋁化合物的接觸時間,進而影響污染物的處理效果。實驗研究了在pH 為9,電流密度為6 mA/cm2 條件下,電解時間對電絮凝去除兩種重金屬離子效果的影響,結果如表 2 所示。

如表 2 所示,出水中兩種重金屬離子的濃度隨電解時間的增長而降低,這是由于隨著電解時間的增長,會產生更多的Al3+,同時增長了污染物與羥鋁絡合物的接觸時間,進而去除更多污染物〔9〕。電解時間為100 s 時,兩種重金屬離子的出水濃度均滿足GB 25466—2010 排放標準。電解時間為130 s 時,出水雖滿足排放標準,但電解時間長,能耗較大,且易產生鈍化問題。因此,綜合考慮環境和經濟兩方面因素,試驗選擇電解時間為100 s。
2.3 電流密度對處理效果的影響
電流密度是影響電絮凝反應器重金屬去除率的重要因素。筆者通過實驗研究了在pH 為9,電解時間為100 s 條件下,電流密度對電絮凝去除兩種重金屬效果的影響,試驗結果如表 3 所示。

如表 3 所示,兩種重金屬的出水濃度隨電流密度的升高而降低,這是由于隨著電流密度的增加,單位面積產生的Al3+增多,進而Al3+的水解產物增多,提供了更多的吸附位點以便去除重金屬離子,同時增強了溶液的混合和電極間的傳質作用,加快了污染物與溶液的分離〔11, 12〕。當電流密度為6 mA/cm2時,可達標排放。電流密度大于6 mA/cm2 時,兩種重金屬出水濃度更低,但成本升高。綜合考慮達標排放要求和經濟成本,試驗選擇電流密度為6 mA/cm2。
2.4 耗電量及電流效率的計算
2.4.1 耗電量的計算
耗電量通常用來衡量處理單元或設備處理廢水的經濟成本。考察了最優條件下電絮凝運行的耗電情況,計算了相應的耗電量,其計算公式如下〔13〕:

式中:E———單位質量污染物耗電量,kW·h/kg;
U———反應器電壓,V;
I———電流,A;
t———電解時間,h;
C0———進水質量濃度,mg/L ;
Ct——— t 時刻出水質量濃度,mg/L 。
筆者考察了pH 為9,電解時間為100 s 條件下,去除兩種重金屬所耗電量隨電流密度的變化,結果如圖 3 所示,Cd2+的耗電量也隨電流密度的升高而升高。與C. A. Basha 等〔13〕所采用的柱形反應器相比,筆者研究所采用單級并聯式電絮凝反應器大大降低了能耗。
圖 3 不同電流密度下的耗電情況
2.4.2 電流效率的計算
電流效率通常用來衡量處理單元或設備的電流利用率。筆者考察了pH=9,電流密度為6 mA/cm2 條件下電絮凝設備運行時的電流利用情況,計算了相應的電流效率,其計算公式如下〔14〕:

式中:mAl(R)———實際產鋁量,g ;
mAl(T)———理論產鋁量,g 。
單位極板面積理論產鋁量的計算公式如下〔7〕:
![]()
式中: ω———單位極板面積理論產鋁量,g/cm2;
J———電流密度,A/cm2;
t———電解時間,s;
MAl———鋁的摩爾質量,g/mol;
n———電子轉移數;
F———法拉第常數,96 500 C/mol。

式中:A———總極板面積,cm2。
在pH 為9,電流密度為6 mA/cm2 的條件下,電解時間為70 s 時電流效率為60.73%,不足100%。這是由于廢水中SO42-的存在抑制了鋁的電解〔14〕,隨著電解時間的增長,部分SO42-被去除,抑制作用減弱。同樣條件下,電解時間100 s 和130 s 對應的電流效率分別為106.17%和115.75%。電流密度大于100%,主要有以下兩方面的原因:第一,空氣形成的氧化膜瞬間溶解,這是Al3+產生的另一個來源;第二,實際電流密度決定于陽極的氧化和陰極的減少〔15〕。
2.5 最優條件下中試運行效果
以小試研究為基礎,定制了中試設備,處理量達24 m3/d,在小試試驗選擇的最優條件(pH=9,電解時間100 s,電流密度6 mA/cm2)下運行,當Zn2+進水為150 mg/L 左右時,Zn2+出水質量濃度低于0.22 mg/L;Cd2+進水為15 mg/L 左右時,Cd2+出水質量濃度低于0.04 mg/L,達到GB 25466—2010 排放標準要求。具體參見http://www.dongaorq.cn更多相關技術文檔。
3 結論
筆者采用單級并聯式電絮凝反應器處理含Zn2+和Cd2+的冶煉廢水,探討了pH、電流密度和電解時間對兩種重金屬離子去除效果的影響,試驗結果如下:
(1)滿足兩種重金屬離子同時達標排放的最優條件為:pH= 9,電解時間為100 s,電流密度為6mA/cm2。
(2)該條件下處理單位質量Zn2+和Cd2+耗電量分別為0.022 kW·h/kg 和0.21 kW·h/kg。
(3)由于廢水中存在大量硫酸根,抑制了Al3+的產生,電解時間70 s 條件下電流效率為60%,電解時間為100、130 s 時,電流效率分別為106.7% 、115.75%。
(4)在pH= 9,電解時間為100 s,電流密度為6mA/cm2 條件下,運行中試工程,兩種重金屬離子出水均滿足GB 25466—2010 排放標準要求。




