公布日:2023.11.24
申請日:2023.09.11
分類號:C02F9/00(2023.01)I;C02F1/00(2023.01)N;C02F1/24(2023.01)N;C02F3/28(2023.01)N;C02F3/30(2023.01)N;C02F3/12(2023.01)N;C02F103/32(2006.01)N
摘要
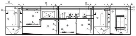
本發明公開了一種廚余廢水資源化集成處理裝置及方法,包括設備本體以及設置于設備本體內的預沉池、氣浮池、厭氧發酵池、短程硝化池、短程反硝化池、二沉池、MBR膜池及高效藥劑投加裝置;設備本體上的總進水口與預沉池的入口連接,預沉池的溢流口與氣浮池的入口連接,氣浮池的出口經厭氧發酵池及短程硝化池與短程反硝化池的入口連接,短程反硝化池的出口與二沉池的入口連接,二沉池的溢流口與MBR膜池的入口連接,高效藥劑投加裝置與預沉池的加藥口連接,該裝置及方法能夠將廚余垃圾廢水高效處理并且資源化,具有節能、環保、能量利用率高的特點。

權利要求書
1.一種廚余廢水資源化集成處理裝置,其特征在于,包括設備本體(1)以及設置于設備本體(1)內的預沉池(7)、氣浮池(8)、厭氧發酵池(9)、短程硝化池(10)、短程反硝化池(11)、二沉池(12)、MBR膜池(13)及高效藥劑投加裝置(15);設備本體(1)上的總進水口(2)與預沉池(7)的入口連接,預沉池(7)的溢流口與氣浮池(8)的入口連接,氣浮池(8)的出口經厭氧發酵池(9)及短程硝化池(10)與短程反硝化池(11)的入口連接,短程反硝化池(11)的出口與二沉池(12)的入口連接,二沉池(12)的溢流口與MBR膜池(13)的入口連接,高效藥劑投加裝置(15)與預沉池(7)的加藥口連接。
2.根據權利要求1所述的廚余廢水資源化集成處理裝置,其特征在于,還包括氣浮池刮渣機(82),氣浮池刮渣機(82)設置于氣浮池(8)上,氣浮池刮渣機(82)通過污泥管道與設備本體(1)上的總出泥口(5)連接。
3.根據權利要求1所述的廚余廢水資源化集成處理裝置,其特征在于,還包括第一氣提裝置(71)、第二氣提裝置(91)、第三氣提裝置(111)、第四氣提裝置(121)及第五氣提裝置(132);第一氣提裝置(71)、第二氣提裝置(91)、第三氣提裝置(111)、第四氣提裝置(121)及第五氣提裝置(132)均包括升液管(19)、布氣管(20)及氣液分離室(21),其中,升液管(19)的出口與氣液分離室(21)的入口相連通,所述氣液分離室(21)的側壁上部設有排氣口(22),氣液分離室(21)的底部設有排液口(23);第一氣提裝置(71)、第二氣提裝置(91)、第三氣提裝置(111)、第四氣提裝置(121)及第五氣提裝置(132)中升液管(19)的入口及布氣管的出口分別插入于預沉池(7)、厭氧發酵池(9)、短程反硝化池(11)、二沉池(12)及MBR膜池(13)內;第一氣提裝置(71)、第二氣提裝置(91)、第三氣提裝置(111)、第四氣提裝置(121)及第五氣提裝置(132)的排氣口(22)通過排氣管道與設備本體(1)上的總排氣口(4)相連接,第一氣提裝置(71)、第二氣提裝置(91)、第四氣提裝置(121)及第五氣提裝置(132)的排液口(23)通過污泥管道與設備本體(1)的總出泥口(5)相連接,第三氣提裝置(111)的排液口與二沉池(12)的入口連接。
4.根據權利要求3所述的廚余廢水資源化集成處理裝置,其特征在于,氣浮池(8)的底部設有第一曝氣裝置(81)。
5.根據權利要求4所述的廚余廢水資源化集成處理裝置,其特征在于,氣浮池(8)的上部設有刮渣機(82),短程硝化池(10)內設有第二曝氣裝置(101)。
6.根據權利要求5所述的廚余廢水資源化集成處理裝置,其特征在于,還包括第一曝氣風機(16),第一曝氣風機(16)的出風口分別與第一曝氣裝置(81)及第二曝氣裝置(101)相連接,第二曝氣風機(17)的出風口分別與第一氣提裝置(71)、第二氣提裝置(91)、第三氣提裝置(111)、第四氣提裝置(121)及第五氣提裝置(132)中的布氣管(20)相連接。
7.根據權利要求6所述的廚余廢水資源化集成處理裝置,其特征在于,MBR膜池(13)內設有MBR膜組件(131),MBR膜組件(131)的出水口通過出水泵(18)與設備本體(1)上的總出水口(3)相連接,第二曝氣風機(17)的出風口與MBR膜組件(131)的進氣口連接。
8.根據權利要求1所述的廚余廢水資源化集成處理裝置,其特征在于,還包括甲烷收集器(14),甲烷收集器(14)的進氣口與厭氧發酵池(9)的出氣口相連接,甲烷收集器(14)的出氣口與設備本體(1)上的甲烷出口(6)連接。9.根據權利要求1所述的廚余廢水資源化集成處理裝置,其特征在于,厭氧發酵池(9)、短程硝化池(10)及MBR膜池(13)的底部均設為斜坡式結構。
10.一種廚余廢水資源化集成處理方法,其特征在于,包括以下步驟:廚余廢水來水通過總進水口(2)進入預沉池(7)中,去除高濃度的SS、部分油類物質及COD,并通過高效藥劑投加裝置(15)向預沉池(7)中投加藥劑,所述藥劑將廚余廢水中的懸浮物沉降,預沉池(7)中的上清液進入氣浮池(8),將懸浮物及油脂類物質形成浮渣,氣浮池(8)的清液進入厭氧發酵池(9);在厭氧發酵池(9)中,廢水中的有機物質在厭氧環境下通過不同功能的微生物進行分解代謝,再經水解、產氫產酸及產甲烷階段產生甲烷氣體,厭氧發酵處理后的廢水進入短程硝化池(10)中進行硝化處理;在短程硝化池(10)中,通過第二曝氣裝置(101)提供硝化所需氧氣,并且通過控制亞硝酸氧化菌的數量,使得氨氮在硝化過程中只進行到亞硝酸鹽的階段,廢水經過短程硝化后進入短程反硝化池(11),在該階段,通過反硝化菌的作用將亞硝態氮還原為氮氣,經過反硝化后的廢水進入到二沉池(12)中,將廢水中的懸浮物進一步去除,然后進入MBR膜池(13)中進一步處理,MBR膜池(13)的出水排出。
發明內容
本發明的目的在于克服上述現有技術的缺點,提供了一種廚余廢水資源化集成處理裝置及方法,該裝置及方法能夠將廚余垃圾廢水高效處理并且資源化,具有節能、環保、能量利用率高的特點。
為達到上述目的,本發明公開了一種廚余廢水資源化集成處理裝置,包括設備本體以及設置于設備本體內的預沉池、氣浮池、厭氧發酵池、短程硝化池、短程反硝化池、二沉池、MBR膜池及高效藥劑投加裝置;
設備本體上的總進水口與預沉池的入口連接,預沉池的溢流口與氣浮池的入口連接,氣浮池的出口經厭氧發酵池及短程硝化池與短程反硝化池的入口連接,短程反硝化池的出口與二沉池的入口連接,二沉池的溢流口與MBR膜池的入口連接,高效藥劑投加裝置與預沉池的加藥口連接。
還包括氣浮池刮渣機,氣浮池刮渣機設置于氣浮池上,氣浮池刮渣機通過污泥管道與設備本體上的總出泥口連接。
還包括第一氣提裝置、第二氣提裝置、第三氣提裝置、第四氣提裝置及第五氣提裝置;
第一氣提裝置、第二氣提裝置、第三氣提裝置、第四氣提裝置及第五氣提裝置均包括升液管、布氣管及氣液分離室,其中,升液管的出口與氣液分離室的入口相連通,所述氣液分離室的側壁上部設有排氣口,氣液分離室的底部設有排液口;
第一氣提裝置、第二氣提裝置、第三氣提裝置、第四氣提裝置及第五氣提裝置中升液管的入口及布氣管的出口分別插入于預沉池、厭氧發酵池、短程反硝化池、二沉池及MBR膜池內;
第一氣提裝置、第二氣提裝置、第三氣提裝置、第四氣提裝置及第五氣提裝置的排氣口通過排氣管道與設備本體上的總排氣口相連接,第一氣提裝置、第二氣提裝置、第四氣提裝置及第五氣提裝置的排液口通過污泥管道與設備本體的總出泥口相連接,第三氣提裝置的排液口與二沉池的入口連接。
氣浮池的底部設有第一曝氣裝置。
氣浮池的上部設有刮渣機,短程硝化池內設有第二曝氣裝置。
還包括第一曝氣風機,第一曝氣風機的出風口分別與第一曝氣裝置及第二曝氣裝置相連接,第二曝氣風機的出風口分別與第一氣提裝置、第二氣提裝置、第三氣提裝置、第四氣提裝置及第五氣提裝置中的布氣管相連接。
MBR膜池內設有MBR膜組件,MBR膜組件的出水口通過出水泵與設備本體上的總出水口相連接,第二曝氣風機的出風口與MBR膜組件的進氣口連接。
還包括甲烷收集器,甲烷收集器的進氣口與厭氧發酵池的出氣口相連接,甲烷收集器的出氣口與設備本體上的甲烷出口連接。
厭氧發酵池、短程硝化池及MBR膜池的底部均設為斜坡式結構。
本發明公開了一種廚余廢水資源化集成處理方法,包括以下步驟:
廚余廢水來水通過總進水口進入預沉池中,去除高濃度的SS、部分油類物質及COD,并通過高效藥劑投加裝置向預沉池中投加藥劑,所述藥劑將廚余廢水中的懸浮物快速沉降,預沉池中的上清液進入氣浮池,將懸浮物及油脂類物質形成浮渣,氣浮池的清液進入厭氧發酵池;
在厭氧發酵池中,廢水中的有機物質在厭氧環境下通過不同功能的微生物進行分解代謝,再經水解、產氫產酸及產甲烷階段產生甲烷氣體,厭氧發酵處理后的廢水進入短程硝化池中進行硝化處理;
在短程硝化池中,通過第二曝氣裝置提供硝化所需氧氣,并且通過控制亞硝酸氧化菌的數量,使得氨氮在硝化過程中只進行到亞硝酸鹽的階段,廢水經過短程硝化后進入短程反硝化池,在該階段,通過反硝化菌的作用將亞硝態氮還原為氮氣,經過反硝化后的廢水進入到二沉池中,將廢水中的懸浮物進一步去除,然后進入MBR膜池中進一步處理,MBR膜池的出水排出。
本發明具有以下有益效果:
本發明所述的廚余廢水資源化集成處理系統及方法在具體操作時,各部件均集成于設備本體中,占地面積小,投資和運行成本低,在預沉池中投加高效藥劑,實現快速沉降,節約2-3倍沉降時間,減小設備占地,厭氧發酵池產生的甲烷進行收集,經預處理后可資源化利用。廚余廢水在處理過程中采用短程硝化反硝化工藝,省去NO2--NO3--NO2-的過程,可以節約碳源和設備占地,同時具有節能、環保、能量利用率高的特點。需要說明的是,本發明可節約占地面積30%以上,且經本發明處理后的廚余廢水水質滿足《污水排入城鎮下水道水質標準GB/T31962–2015》A級標準。
進一步,本發明中涉及的壓力提升部分均采用氣提裝置,結構簡單,檢修維護方便,所需動力源較少,節約能源和占地。
(發明人:黃瓊;蘇艷;王璟;姜琪;張成;高峰;楊陽;張益峰;劉瑞春)






