公布日:2023.11.10
申請日:2023.08.30
分類號:C02F11/122(2019.01)I;B01D25/30(2006.01)I;B01D25/12(2006.01)I
摘要
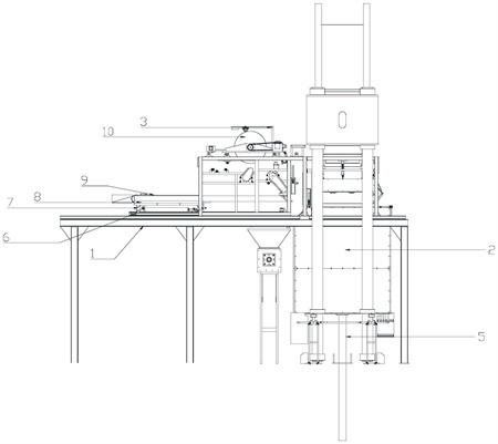
本申請公開了一種污泥脫水用鋪料裝置及鋪料方法,屬于污泥處理技術領域。該污泥脫水用鋪料裝置包括鋪料床、壓濾腔和濾布架,壓濾腔內設有濾水框籃和托盤組件,濾水框籃的框籃口設有激光測距件;托盤組件包括托盤和升降件,升降件帶動托盤在壓濾腔內做升降運動;濾布架提供濾布,鋪料床在壓濾腔內鋪設濾布和污泥。通過設置托盤組件實現托盤的升降,通過設置鋪料床在壓濾腔內鋪設濾布和污泥,將污泥鋪設在濾布之間,以便后續進行壓濾;通過在濾水框籃的框籃口設置激光測距件,能夠精確測定污泥物料距離框籃口的距離,以便于進一步將托盤下降或者升高的高度精確化、數字化,使得鋪設物料和托盤下降的動態匹配。

權利要求書
1.一種污泥脫水用鋪料裝置,其特征在于,包括鋪料床、壓濾腔和濾布架,所述壓濾腔內設有濾水框籃和托盤組件,所述濾水框籃的框籃口設有激光測距件;所述托盤組件包括托盤和升降件,所述升降件帶動托盤在壓濾腔內做升降運動;所述濾布架提供濾布,所述鋪料床在壓濾腔內鋪設濾布和污泥。
2.根據權利要求1所述的一種污泥脫水用鋪料裝置,其特征在于,所述升降件包括起降油缸。
3.根據權利要求2所述的一種污泥脫水用鋪料裝置,其特征在于,所述起降油缸內部設有電子尺,以測量起降油缸升降的值。
4.根據權利要求3所述的一種污泥脫水用鋪料裝置,其特征在于,所述鋪料床上設有鋪料組件,所述鋪料組件在鋪料床上做往復運動,以在壓濾腔內鋪設濾布和污泥。
5.根據權利要求4所述的一種污泥脫水用鋪料裝置,其特征在于,所述鋪料組件包括滑軌、底板、滑輪和鋪料管道,所述滑軌設于鋪料床上,所述滑輪設于底板下方,所述鋪料管道設于底板上方,所述滑輪沿所述滑軌做往復運動。
6.根據權利要求1所述的一種污泥脫水用鋪料裝置,其特征在于,所述濾布架包括卷布軸,以纏繞濾布。
7.根據權利要求1所述的一種污泥脫水用鋪料裝置,其特征在于,所述鋪料管道至少為2支,以實現均勻鋪料。
8.一種鋪料方法,其特征在于,包括以下步驟:(1)鋪料組件前進靠近壓濾腔,將卷布軸上的濾布彎折后繼續前進至濾布覆蓋托盤,將濾布固定在壓濾腔上方;(2)鋪料組件后退,在后退的過程中鋪料管道出料進行鋪料,設定鋪料厚度值;(3)油缸帶動托盤下降,下降高度為鋪料厚度值;(4)激光測距件測定物料表面與濾水框籃的距離是否為設定值A,若小于設定值則油缸帶動托盤繼續下降,直至達到設定值A;若大于設定值A則油缸帶動托盤上升至達到設定值A;(5)重復(1)~(4),直至電子尺確認油缸到底,激光測距件測定物料表面與濾水框籃的距離是否大于設定值B,若大于設定值B則鋪料組件進行補鋪,直至物料表面與濾水框籃的距離為0~2cm,進入下一階段;若不大于設定值B,則進入下一階段。
9.根據權利要求8所述的一種鋪料方法,其特征在于,所述激光測距件設有至少兩個激光點位測定物料表面與濾水框籃的距離,采用平均值作為最終測量數據。
10.根據權利要求8所述的一種鋪料方法,其特征在于,步驟(4)中,若連續兩次激光測距件測定物料表面與濾水框籃的距離小于設定值A,則停機報警。
發明內容
為了解決上述問題,本申請提出了一種污泥脫水用鋪料裝置及鋪料方法,通過設置托盤組件實現托盤的升降,通過設置鋪料床在壓濾腔內鋪設濾布和污泥,將污泥鋪設在濾布之間,以便后續進行壓濾;通過在濾水框籃的框籃口設置激光測距件,能夠精確測定污泥物料距離框籃口的距離,以便于進一步將托盤下降或者升高的高度精確化、數字化,使得鋪設物料和托盤下降的動態匹配。
根據本申請的一個方面,提供了一種污泥脫水用鋪料裝置,包括鋪料床、壓濾腔和濾布架,所述壓濾腔內設有濾水框籃和托盤組件,所述濾水框籃的框籃口設有激光測距件;所述托盤組件包括托盤和升降件,所述升降件帶動托盤在壓濾腔內做升降運動;所述濾布架提供濾布,所述鋪料床在壓濾腔內鋪設濾布和污泥。
可選地,所述升降件包括起降油缸。
可選地,所述起降油缸內部設有電子尺,以測量起降油缸升降的值。
可選地,所述鋪料床上設有鋪料組件,所述鋪料組件在鋪料床上做往復運動,以在壓濾腔內鋪設濾布和污泥。
可選地,所述鋪料組件包括滑軌、底板、滑輪和鋪料管道,所述滑軌設于鋪料床上,所述滑輪設于底板下方,所述鋪料管道設于底板上方,所述滑輪沿所述滑軌做往復運動。
可選地,所述濾布架包括卷布軸,以纏繞濾布。
可選地,所述鋪料管道至少為2支,以實現均勻鋪料。
根據本申請的另一方面,本申請還提供了一種鋪料方法,包括以下步驟:
(1)鋪料組件前進靠近壓濾腔,將卷布軸上的濾布彎折后繼續前進至濾布覆蓋托盤,將濾布固定在壓濾腔上方;
(2)鋪料組件后退,在后退的過程中鋪料管道出料進行鋪料,設定鋪料厚度值;
(3)油缸帶動托盤下降,下降高度為鋪料厚度值;
(4)激光測距件測定物料表面與濾水框籃的距離是否為設定值A,若小于設定值則油缸帶動托盤繼續下降,直至達到設定值A;若大于設定值A則油缸帶動托盤上升至達到設定值A;
(5)重復(1)~(4),直至電子尺確認油缸到底,激光測距件測定物料表面與濾水框籃的距離是否大于設定值B,若大于設定值B則鋪料組件進行補鋪,直至物料表面與濾水框籃的距離為0~2cm,進入下一階段;若不大于設定值B,則進入下一階段。
可選地,所述激光測距件設有至少兩個激光點位測定物料表面與濾水框籃的距離,采用平均值作為最終測量數據。
可選地,步驟(4)中,若連續兩次激光測距件測定物料表面與濾水框籃的距離小于設定值A,則停機報警。
本申請能產生的有益效果包括但不限于:
1.本申請所提供的污泥脫水用鋪料裝置,通過設置托盤組件實現托盤的升降,通過設置鋪料床在壓濾腔內鋪設濾布和污泥,將污泥鋪設在濾布之間,以便后續進行壓濾;通過在濾水框籃的框籃口設置激光測距件,能夠精確測定污泥物料距離框籃口的距離,以便于進一步將托盤下降或者升高的高度精確化,使得鋪設物料和托盤下降的動態匹配。
2.本申請所提供的污泥脫水用鋪料裝置,通過設置起降油缸,并在起降油缸內設置電子尺,以對起降油缸的升降高度進行測量,以便與物料鋪設厚度動態匹配,避免了由于起降油缸下降過多導致鋪料高度差過高,一方面會一定程度上增加濾布的損耗,另一方面,高度差過高容易造成鋪料不均,進而影響接下來的壓濾效果。
3.本申請所提供的污泥脫水用鋪料裝置,具有鋪料組件,鋪料組件在鋪料床上往復運動,靠近壓濾腔運動時鋪設濾布,遠離壓濾腔運動時鋪設污泥物料,重復該步驟,濾布和污泥物料層層疊加;通過限定鋪料管道至少為2支,以保證鋪料的均勻性。
4.本申請所提供的鋪料方法,通過激光測距件和起降油缸電子尺互相配合作用,將物料與濾水框籃的距離和托盤下降的高度精確化,從而使得為原料鋪設的厚度與托盤下降的高度動態匹配,使得鋪料過程在保證生產安全的基礎上,能夠鋪設均勻;該鋪料方法省去操作人員經驗判斷的過程,使得鋪料過程更加自動化、精確化,也更加高效安全。
(發明人:閆永秀;辛寒曉;趙升遠;申建偉;馬亮;油慧芳)






