公布日:2024.04.09
申請日:2024.01.25
分類號:C02F3/12(2023.01)I;C02F3/00(2023.01)I
摘要
本發明涉及污水生物處理技術領域,尤其是一種用于生活污水處理的一體化顆粒污泥反應系統,包括調節池、顆粒污泥反應器以及微生物淘洗系統,其中所述調節池通過進水管與所述顆粒污泥反應器的反應池連接,所述顆粒污泥反應器為一序批式的恒液位水處理設備,所述顆粒污泥反應器與所述微生物淘洗系統連接。本發明的優點是:解決了目前國內顆粒污泥反應器污泥淤積的問題,實現了選擇壓的連續變化,實現了進水流量與選擇壓的關聯分離,使其更具有靈活性和抗沖擊能力。

權利要求書
1.一種用于生活污水處理的一體化顆粒污泥反應系統,其特征在于:包括調節池、顆粒污泥反應器以及微生物淘洗系統,其中所述調節池通過進水管與所述顆粒污泥反應器的反應池連接,所述顆粒污泥反應器為一序批式的恒液位水處理設備,所述顆粒污泥反應器與所述微生物淘洗系統連接。
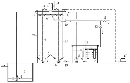
2.根據權利要求1所述的一種用于生活污水處理的一體化顆粒污泥反應系統,其特征在于:所述反應池的頂部設置有一配水槽,所述配水槽具有若干分格,若干分格分別通過配水管道與設置在所述反應池底部的集泥斗連通,所述配水槽的下方設置有一穿孔排放管,用于將所述反應池池內處理好的水排放至池外,所述反應池的中部為泥水混合反應區。
3.根據權利要求2所述的一種用于生活污水處理的一體化顆粒污泥反應系統,其特征在于:所述集泥斗為環形且沿高度方向下窄上寬。
4.根據權利要求2或3所述的一種用于生活污水處理的一體化顆粒污泥反應系統,其特征在于:所述集泥斗內設有環形穿孔曝氣管,所述環形穿孔曝氣管與一供氣設備連接。
5.根據權利要求1所述的一種用于生活污水處理的一體化顆粒污泥反應系統,其特征在于:所述微生物淘洗系統包括過濾單元和菌落控制單元,所述過濾單元與所述反應池的穿孔排放管通過管路連接,所述菌落控制單元與所述過濾單元連通,所述菌落控制單元通過循環進水管與所述反應池的配水槽連通。
6.根據權利要求5所述的一種用于生活污水處理的一體化顆粒污泥反應系統,其特征在于:所述菌落控制單元內設置有多種不同波長的紫外燈管。
發明內容
本發明的目的是根據上述現有技術的不足,提供了一種用于生活污水處理的一體化顆粒污泥反應系統,通過顆粒污泥反應器底部泥斗、曝氣及配水耦合的方式解決了顆粒污泥淤積的問題;將出水的回流進行梯度控制,實現了選擇壓的連續變化,而不是單純靠原水的進水頂托來實現生物選擇;通過將運行模式設置成序批式,其抗沖擊性和負荷的波動性能力也大大提升。
本發明目的實現由以下技術方案完成:一種用于生活污水處理的一體化顆粒污泥反應系統,其特征在于:包括調節池、顆粒污泥反應器以及微生物淘洗系統,其中所述調節池通過進水管與所述顆粒污泥反應器的反應池連接,所述顆粒污泥反應器為一序批式的恒液位水處理設備,所述顆粒污泥反應器與所述微生物淘洗系統連接。
所述反應池的頂部設置有一配水槽,所述配水槽具有若干分格,若干分格分別通過配水管道與設置在所述反應池底部的集泥斗連通,所述配水槽的下方設置有一穿孔排放管,用于將所述反應池池內處理好的水排放至池外,所述反應池的中部為泥水混合反應區。
所述集泥斗為環形且沿高度方向下窄上寬。
所述集泥斗內設有環形穿孔曝氣管,所述環形穿孔曝氣管與一供氣設備連接。
所述微生物淘洗系統包括過濾單元和菌落控制單元,所述過濾單元與所述反應池的穿孔排放管通過管路連接,所述菌落控制單元與所述過濾單元連通,所述菌落控制單元通過循環進水管與所述反應池的配水槽連通。
所述菌落控制單元內設置有多種不同波長的紫外燈管。
本發明的優點是:解決了目前國內顆粒污泥反應器污泥淤積的問題,實現了選擇壓的連續變化,實現了進水流量與選擇壓的關聯分離,使其更具有靈活性和抗沖擊能力。
(發明人:柳林齊;趙國強;徐偉忠;孫炯;李凱英;謝麗;龐維海;閔柏林)






