申請日2015.07.22
公開(公告)日2016.01.20
IPC分類號C02F9/14; C02F101/30
摘要
本實用新型涉及一種處理低濃度有機廢水的雙膜內循環生物反應系統,格柵和格網用于除渣,雙膜內循環生物反應器將有機污水經布水裝置均勻分配到填料生物膜反應區,通過氣流的作用在填料生物膜反應區與微濾膜過濾區之間形成內循環,間隙開啟填料生物膜反應區和微濾膜過濾區的進氣電動閥,交替形成厭氧-缺氧-好氧的環境,完成微生物好氧硝化吸磷、缺氧脫氮反應和厭氧放磷反應,達到凈化水質的目的。脫落的生物膜和顆粒物被微濾膜截留,清水透過微濾膜經自吸泵抽吸出來,再經紫外線消毒后即可達標排放。與單純的膜-生物反應器技術相比,本實用新型充氧能耗降低約50%,跨膜壓差降低,微濾膜的膜通量較高,使用壽命延長;剩余污泥減少。
權利要求書
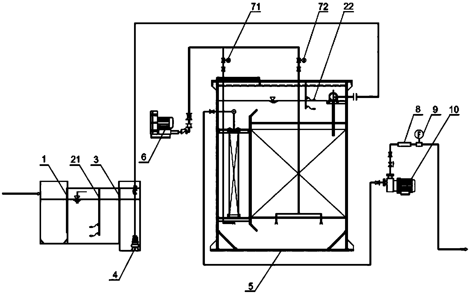
1.一種處理低濃度有機廢水的雙膜內循環生物反應系統,其特征在于,包括格柵、第一水位浮球開關、格網、提升泵、雙膜內循環生物反應器、氣泵、紫外線消毒器、玻璃轉子流量計和自吸泵;
所述的格柵、第一水位浮球開關和格網組成集水池,用于除去2mm以上的顆粒物和雜物;集水池通過提升泵與雙膜內循環生物反應器連接;
所述的雙膜內循環生物反應器設有導流板,導流板將雙膜內循環生物反應器分隔為填料生物膜反應區和微濾膜過濾區,所述的填料生物膜反應區設有生物膜填料和布水裝置,微濾膜過濾區安裝有浸入式微濾膜組件和集水裝置;填料生物膜反應區和微濾膜過濾區底部分別設有第一曝氣裝置和第二曝氣裝置,第一曝氣裝置和第二曝氣裝置分別通過第二進氣電動閥和第一進氣電動閥與氣泵連接并能夠形成曝氣氣流;雙膜內循環生物反應器中設有第二水位浮球開關;
所述的浸入式微濾膜組件通過集水裝置連接自吸泵,自吸泵連接紫外消毒器,紫外消毒器連接玻璃轉子流量計。
2.根據權利要求1所述的處理低濃度有機廢水的雙膜內循環生物反應系統,其特征在于,所述的格網孔徑不超過2mm。
3.根據權利要求1所述的處理低濃度有機廢水的雙膜內循環生物反應系統,其特征在于,所述的雙膜內循環生物反應器中的生物膜填料采用生物接觸氧化法工藝所用的生物膜填料。
4.根據權利要求1所述的處理低濃度有機廢水的雙膜內循環生物反應系統,其特征在于,所述的浸入式微濾膜組件采用浸入式膜-生物反應器組件,浸入式微濾膜組件的微濾膜材質采用改性聚丙烯、聚偏氟乙烯或聚四氟乙烯,平均膜孔徑為0.1~0.2微米。
說明書
一種處理低濃度有機廢水的雙膜內循環生物反應系統
技術領域
本實用新型屬于廢水處理技術領域,具體涉及一種處理低濃度有機廢水的雙膜內循環生物反應系統。
背景技術
目前水污染治理的重點之一就是建制鎮的生活污水處理,因此中、小規模的低濃度有機廢水處理技術得到進一步發展。鄉鎮污水處理工程具有規模較小、地域分散、運行管理人才和資金相對缺乏的特點,如果完全套用城鎮污水處理廠的處理工藝,存在占地面積大、噸水處理能耗高、運行管理不便等問題;如需達到更嚴格的GB18918-2002一級A標準,需要增加深度處理單元。
現行的膜-生物反應器處理技術利用膜分離技術與生物處理技術相結合,具有占地面積小、處理效率高、出水水質好等優點,用于中、小規模的低濃度有機廢水處理,出水可以達到一級A標;但是單純的膜-生物反應器除了需要維持生物處理所需的充氧曝氣量外,還需要對膜進行連續空氣沖洗,總曝氣量同常規的生物處理相比,大約增加50%,具有較高的能耗;同時污泥濃度較大,跨膜壓差較高,膜的通量、工作周期和使用壽命受到影響,增加了膜投資和維護成本;剩余污泥產量相對較大,增加了污泥處理的難度。這些缺陷嚴重阻礙了膜- 生物反應器技術在鄉鎮生活處理領域的廣泛應用。
實用新型內容
本實用新型要解決的技術問題在于降低單純的膜-生物反應器的能耗,減少剩余污泥,降低懸浮污泥濃度和跨膜壓差,減少膜通量的下降幅度,延長膜工作周期和使用壽命,從而降低系統的投資和運行維護費用。
本實用新型解決上述技術問題所采取的技術方案是:一種處理低濃度有機廢水的雙膜內循環生物反應系統,包括格柵、第一水位浮球開關、格網、提升泵、雙膜內循環生物反應器、氣泵、紫外線消毒器、玻璃轉子流量計和自吸泵;
所述的格柵、第一水位浮球開關和格網組成集水池,用于除去2mm以上的顆粒物和雜物;集水池通過提升泵與雙膜內循環生物反應器連接;
所述的雙膜內循環生物反應器設有導流板,導流板將雙膜內循環生物反應器分隔為填料生物膜反應區和微濾膜過濾區,所述的填料生物膜反應區設有生物膜填料和布水裝置,微濾膜過濾區安裝有浸入式微濾膜組件和集水裝置;填料生物膜反應區和微濾膜過濾區底部分別設有第一曝氣裝置和第二曝氣裝置,第一曝氣裝置和第二曝氣裝置分別通過第二進氣電動閥和第一進氣電動閥與氣泵連接并能夠形成曝氣氣流;雙膜內循環生物反應器中設有第二水位浮球開關;
所述的浸入式微濾膜組件通過集水裝置連接自吸泵,自吸泵連接紫外消毒器,紫外消毒器連接玻璃轉子流量計。
所述的格網孔徑不超過2mm。
所述的雙膜內循環生物反應器中的生物膜填料采用生物接觸氧化法工藝所用的生物膜填料。
所述的浸入式微濾膜組件采用浸入式膜-生物反應器組件,浸入式微濾膜組件的微濾膜材質采用改性聚丙烯、聚偏氟乙烯或聚四氟乙烯,平均膜孔徑為0.1~0.2微米。
與單純的膜-生物反應器相比,使用本實用新型在處理低濃度有機廢水時,充氧能耗降低約50%;剩余污泥非常少,無需專門的污泥處理設施;系統的懸浮污泥濃度降低80-90%,跨膜壓差降低,膜通量下降幅度減少,膜工作周期和使用壽命得到延長,從而降低系統的投資和運行維護費用。本實用新型對于排放要求較高或需要回用的中、小型規模低濃度廢水處理項目,具有一定的優勢。







