申請日2014.10.20
公開(公告)日2015.02.18
IPC分類號C02F9/14
摘要
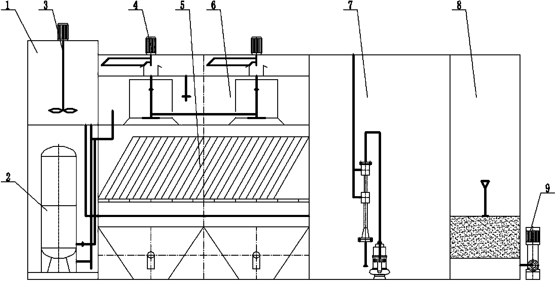
本發明公開了一種涂裝廢水零排放處理一體化設備,包括物化反應區、沉淀區、氣浮區、SBR區、活性炭過濾區;所述物化反應區、沉淀區、氣浮區、SBR區、活性炭過濾區依次順序連接。本發明的一種涂裝廢水零排放處理一體化設備優點在于:可以將涂裝廢水處理為水質完全達到涂裝生產循環用水要求,且設備占地面積小、運行成本低。
權利要求書
1.一種涂裝廢水零排放處理一體化設備,其特征在于:所述一體化設備中設有循環水池、物化反應區、沉淀區、氣浮區、SBR區以及活性炭過濾區依次按順序連接;所述循環水池廢水經物化反應區、沉淀區、氣浮區、SBR區以及活性炭過濾區處理后排入循環水池,往復使用。
2.如權利要求1所述涂裝廢水零排放處理一體化設備,其特征在于:所述活性炭過濾區包含反沖洗設備。
3.如權利要求1所述涂裝廢水零排放處理一體化設備,其特征在于:所述SBR區域還包含排泥及過濾裝置。
4.如權利要求1所述涂裝廢水零排放處理一體化設備,其特征在于:所述SBR區采用程序進行控制,根據設定時間進行進水排水工作。
說明書
一種涂裝廢水零排放處理一體化設備
技術領域:
本發明屬于水處理領域,涉及一種涂裝廢水零排放處理系統,尤 其是一種基于物化反應+沉淀+氣浮+SBR+活性炭過濾的工藝的以處理 涂裝廢水為原水的循環處理系統。
背景技術:
通常涂裝廢水處理設備,大都采用分步、分設備的處理方式,少 數設備將幾種工藝進行了集成,出現了成套、成系列的廢水處理設備。
這類設備只能對廢水進行預處理,沒有深度處理,并不能使廢水 達標排放。而分步、分設備的處理方式有占地面積大、處理周期長、 運行成本高等缺點。序批式活性污泥法的英文為sequencing batch reactor activated sludge process(縮寫SBR)。SBR是序批式活性 污泥法的簡稱,是一種按間歇曝氣方式來運行的活性污泥污水處理技 術。它的主要特征是在運行上的有序和間歇操作,SBR技術的核心是 SBR反應池,該池集均化、初沉、生物降解、二沉等功能于一池,無 污泥回流系統。尤其適用于間歇排放和流量變化較大的場合。
發明內容:
本發明主要的目的在于克服上述現有設備的缺點,提供一種高 度集成涂裝廢水零排放處理一體化設備,該設備基于物化反應+沉淀+ 氣浮+SBR+活性炭過濾的工藝,能夠提供穩定的出水。
本發明的目的是通過以下技術方案來解決的:
一種涂裝廢水零排放處理一體化設備,包括物化反應區、沉淀區、 氣浮區、SBR區、活性炭過濾區;物化反應區、沉淀區、氣浮區、SBR 區、活性炭過濾區依次順序連接。
所述活性炭過濾區包含反沖洗設備。
所述SBR區域還包含排泥及過濾裝置。所述原水為噴漆室循環水 池廢水,經設備處理后排入循環水池,往復使用,可實現涂裝廢水的 零排放。
本發明的涂裝廢水零排放處理一體化設備優點在于:可以將涂裝 廢水處理為水質完全達到涂裝生產循環用水要求,且設備占地面積 小、運行成本低。







