公布日:2023.12.15
申請日:2023.11.16
分類號:C02F3/30(2023.01)I;C02F3/00(2023.01)I
摘要
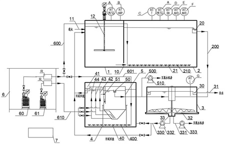
本申請涉及一種側流顆粒化連續流好氧顆粒污泥處理裝置,涉及污水處理技術領域,該裝置包括:厭氧池、微氧曝氣池、二沉池、好氧顆粒污泥培養池、好氧顆粒污泥發生器、鼓風機房以及智控系統;厭氧池上設置有厭氧池進水管路以及攪拌器;微氧曝氣池的一側內壁設置有出水槽,微氧曝氣池的底部設置第一微氧曝氣系統;二沉池內部通過出水槽管路與出水槽連通,二沉池側壁設置有二沉池出水槽,二沉池出水槽與預設的出水管路連接;二沉池底部設置有刮泥機,二沉池底部與好氧顆粒污泥培養池以及厭氧池連通。本申請在不停產的情況下實現項目連續流好氧顆粒工藝改造,提升出水水質或處理規模,降低剩余污泥量,有效降低運行成本,從而滿足更高的處理要求。

權利要求書
1.一種側流顆粒化連續流好氧顆粒污泥處理裝置,其特征在于,所述裝置包括:厭氧池(1)、微氧曝氣池(2)、二沉池(3)、好氧顆粒污泥培養池(4)、好氧顆粒污泥發生器(5)、鼓風機房(6)以及智控系統(7);所述厭氧池(1)與所述微氧曝氣池(2)共壁設置,所述厭氧池(1)與所述微氧曝氣池(2)共有的側壁上設有第一連通孔(10);所述厭氧池(1)上設置有厭氧池進水管路(11)以及攪拌器(12);所述微氧曝氣池(2)的一側內壁設置有出水槽(20),所述微氧曝氣池(2)的底部設置第一微氧曝氣系統(21);所述二沉池(3)內部的進水中心筒通過出水槽管路(200)與所述出水槽(20)連通,所述二沉池(3)側壁設置有二沉池出水槽(30),所述二沉池出水槽(30)與預設的出水管路(31)連接;所述二沉池(3)底部設置有刮泥機(32),所述二沉池(3)底部與所述好氧顆粒污泥培養池(4)以及所述厭氧池(1)連通;所述好氧顆粒污泥培養池(4)的底部設置有第二微氧曝氣系統(40),所述好氧顆粒污泥培養池(4)的頂部內壁設置有與所述厭氧池(1)連通的污泥回流槽(41),所述好氧顆粒污泥發生器(5)設置在所述好氧顆粒污泥培養池(4)內部;所述好氧顆粒污泥培養池(4)內部設置有循環污泥氣提管路(42)、內回流氣提管路(43)以及外回流氣提管路(44),所述循環污泥氣提管路(42)用于將所述好氧顆粒污泥培養池(4)底部的污泥回流至所述好氧顆粒污泥培養池(4)頂部,所述內回流氣提管路(43)用于將所述好氧顆粒污泥培養池(4)底部的污泥回流至所述好氧顆粒污泥培養池(4),所述外回流氣提管路(44)用于將所述好氧顆粒污泥培養池(4)底部的污泥回流至所述污泥回流槽(41);所述好氧顆粒污泥發生器(5)內部設置有發生器出水槽(50),所述發生器出水槽(50)與所述二沉池(3)內部的進水中心筒連通,所述好氧顆粒污泥發生器(5)的中部側壁設置有好氧顆粒污泥發生器進水口(51);所述鼓風機房(6)與所述第一微氧曝氣系統(21)、所述第二微氧曝氣系統(40)、所述循環污泥氣提管路(42)、所述內回流氣提管路(43)以及所述外回流氣提管路(44)連通;其中,所述第一微氧曝氣系統(21)包括多個間隔排布的第一微氧曝氣器(210);所述第二微氧曝氣系統(40)包括多個間隔排布的第二微氧曝氣器(400);所述智控系統(7)用于對所述厭氧池(1)、所述微氧曝氣池(2)、二沉池(3)、所述好氧顆粒污泥培養池(4)、所述好氧顆粒污泥發生器(5)以及所述鼓風機房(6)進行智能控制。
2.如權利要求1所述的側流顆粒化連續流好氧顆粒污泥處理裝置,其特征在于,所述二沉池(3)底部設有污泥斗(33);所述刮泥機(32)用于將所述二沉池(3)底部的污泥收集至所述污泥斗(33)內;所述污泥斗(33)通過第一污泥回流管(330)與所述厭氧池(1)、所述好氧顆粒污泥培養池(4)連通。
3.如權利要求2所述的側流顆粒化連續流好氧顆粒污泥處理裝置,其特征在于:所述污泥斗(33)配置有剩余污泥管(331),所述污泥斗(33)內的污泥通過所述剩余污泥管(331)傳輸至預設的脫水機房;所述第一污泥回流管(330)靠近所述污泥斗(33)的一端設置有第一污泥回流泵(332);所述剩余污泥管(331)靠近所述污泥斗(33)的一端設置有第一剩余污泥泵(333)。
4.如權利要求1所述的側流顆粒化連續流好氧顆粒污泥處理裝置,其特征在于:所述智控系統(7)用于執行第一厭氧池污泥調節流程;所述第一厭氧池污泥調節流程包括以下步驟:識別所述厭氧池(1)的實時濃度;所述智控系統(7)基于所述厭氧池(1)的實時濃度,執行厭氧池第一污泥補充判定流程或厭氧池第二污泥補充判定流程,獲得厭氧池污泥補充許可判定;基于所述厭氧池污泥補充許可判定,所述智控系統(7)控制所述外回流氣提管路(44)執行厭氧池第一污泥補充流程或厭氧池第二污泥補充流程;所述厭氧池第一污泥補充判定流程包括以下步驟:若所述厭氧池(1)的實時濃度低于預設的厭氧池實時濃度最低閾值,則發布所述厭氧池污泥補充許可判定,反之則發布厭氧池污泥補充終止判定;所述厭氧池第二污泥補充判定流程包括以下步驟:在預設的厭氧池污泥檢測周期內,按照污泥濃度變化加速度采集頻率采集的多個厭氧池實時濃度下降加速度;基于多個所述厭氧池實時濃度下降加速度,獲得厭氧池實時濃度下降加速度中位數;若所述厭氧池實時濃度下降加速度中位數大于厭氧池實時濃度下降加速度閾值,則發布所述厭氧池污泥補充許可判定,反之則所述發布厭氧池污泥補充終止判定;所述厭氧池第一污泥補充流程包括以下步驟:基于預設的厭氧池污泥補充速度,控制所述外回流氣提管路(44)向所述厭氧池(1)進行污泥補充;執行厭氧池第一污泥補充判定流程或厭氧池第二污泥補充判定流程,獲得所述厭氧池污泥補充終止判定;基于所述厭氧池污泥補充終止判定,控制所述外回流氣提管路(44)終止向所述厭氧池(1)進行污泥補充;所述厭氧池第二污泥補充流程包括以下步驟:基于所述厭氧池實時濃度下降加速度中位數、預設的標準污泥補充速度以及第一關聯系數,獲得厭氧池污泥實時補充速度;基于所述厭氧池污泥實時補充速度,控制所述外回流氣提管路(44)向所述厭氧池(1)進行污泥補充,并按照預設的補充速度調整周期,根據所述厭氧池實時濃度下降加速度中位數動態調整所述厭氧池污泥實時補充速度;執行厭氧池第一污泥補充判定流程或厭氧池第二污泥補充判定流程,獲得所述厭氧池污泥補充終止判定;基于所述厭氧池污泥補充終止判定,控制所述外回流氣提管路(44)終止向所述厭氧池(1)進行污泥補充;其中,所述第一關聯系數為所述厭氧池實時濃度下降加速度的數值對所述標準污泥補充速度的數值的影響系數。
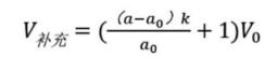
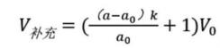
5.如權利要求1所述的側流顆粒化連續流好氧顆粒污泥處理裝置,其特征在于,針對所述厭氧池第二污泥補充流程,配置有厭氧池污泥實時補充速度計算公式,所述厭氧池污泥實時補充速度計算公式為:

其中,V補充為所述厭氧池污泥實時補充速度;a為所述厭氧池實時濃度下降加速度中位數;a0為預設的厭氧池實時濃度下降標準加速度;k為第一關聯系數;V0為預設的標準污泥補充速度。
6.如權利要求1所述的側流顆粒化連續流好氧顆粒污泥處理裝置,其特征在于:所述智控系統(7)用于執行第二厭氧池污泥調節流程;所述第二厭氧池污泥調節流程包括以下步驟:識別所述厭氧池(1)的實時濃度;所述智控系統(7)基于所述厭氧池(1)的實時濃度,執行厭氧池第一污泥補充判定流程或厭氧池第二污泥補充判定流程,獲得厭氧池污泥補充許可判定;基于所述厭氧池污泥補充許可判定,所述智控系統(7)控制所述外回流氣提管路(44)執行厭氧池第一污泥補充流程或厭氧池第三污泥補充流程;所述厭氧池第一污泥補充判定流程包括以下步驟:若所述厭氧池(1)的實時濃度低于預設的厭氧池實時濃度最低閾值,則發布所述厭氧池污泥補充許可判定,反之則發布厭氧池污泥補充終止判定;所述厭氧池第二污泥補充判定流程包括以下步驟:在預設的厭氧池污泥檢測周期內,按照污泥濃度變化加速度采集頻率采集的多個厭氧池實時濃度下降加速度;基于多個所述厭氧池實時濃度下降加速度,獲得厭氧池實時濃度下降加速度中位數;若所述厭氧池實時濃度下降加速度中位數大于厭氧池實時濃度下降加速度閾值,則發布所述厭氧池污泥補充許可判定,反之則所述發布厭氧池污泥補充終止判定;所述厭氧池第一污泥補充流程包括以下步驟:基于預設的厭氧池污泥補充速度,控制所述外回流氣提管路(44)向所述厭氧池(1)進行污泥補充;執行厭氧池第一污泥補充判定流程或厭氧池第二污泥補充判定流程,獲得所述厭氧池污泥補充終止判定;基于所述厭氧池污泥補充終止判定,控制所述外回流氣提管路(44)終止向所述厭氧池(1)進行污泥補充;所述厭氧池第二污泥補充流程包括以下步驟:基于所述厭氧池實時濃度下降加速度中位數、預設的標準污泥補充速度、第一關聯系數以及厭氧池進水管路影響系數,獲得厭氧池污泥實時補充速度;基于所述厭氧池污泥實時補充速度,控制所述外回流氣提管路(44)向所述厭氧池(1)進行污泥補充,并按照預設的補充速度調整周期,根據所述厭氧池實時濃度下降加速度中位數動態以及所述厭氧池進水管路影響系數調整所述厭氧池污泥實時補充速度;執行厭氧池第一污泥補充判定流程或厭氧池第二污泥補充判定流程,獲得所述厭氧池污泥補充終止判定;基于所述厭氧池污泥補充終止判定,控制所述外回流氣提管路(44)終止向所述厭氧池(1)進行污泥補充;其中,所述第一關聯系數為所述厭氧池實時濃度下降加速度的數值對所述標準污泥補充速度的數值的影響系數;所述厭氧池進水管路影響系數為厭氧池進水管路實時流速對所述標準污泥補充速度的數值的影響系數。
7.如權利要求2所述的側流顆粒化連續流好氧顆粒污泥處理裝置,其特征在于:所述智控系統(7)用于執行第一好氧顆粒污泥培養池液位調節流程;所述第一好氧顆粒污泥培養池液位調節流程包括以下步驟:識別所述好氧顆粒污泥培養池(4)的實時液位;所述智控系統(7)基于所述好氧顆粒污泥培養池(4)的實時液位,執行好氧顆粒污泥培養池液位第一判定流程或好氧顆粒污泥培養池液位第二判定流程,獲得好氧顆粒污泥培養池液位降低許可判定或所述好氧顆粒污泥培養池液位降低終止判定;基于所述好氧顆粒污泥培養池液位降低許可判定,所述智控系統(7)控制所述第一污泥回流管(330)以及所述第二微氧曝氣系統(40)執行好氧顆粒污泥培養池液位降低流程;基于所述好氧顆粒污泥培養池液位降低終止判定,所述智控系統(7)控制所述第一污泥回流管(330)以及所述第二微氧曝氣系統(40)終止執行好氧顆粒污泥培養池液位降低流程;所述好氧顆粒污泥培養池液位第一判定流程包括以下步驟:若所述好氧顆粒污泥培養池(4)的實時液位高于預設的好氧顆粒污泥培養池實時液位最高閾值,則發布所述好氧顆粒污泥培養池液位降低許可判定,反之則發布好氧顆粒污泥培養池液位降低終止判定;所述厭氧池第二污泥補充判定流程包括以下步驟:在預設的好氧顆粒污泥培養池液位檢測周期內,按照實時液位變化加速度采集頻率采集的多個好氧顆粒污泥培養池實時液位上升加速度;基于多個所述好氧顆粒污泥培養池實時液位上升加速度,獲得好氧顆粒污泥培養池實時液位上升加速度中位數;若所述好氧顆粒污泥培養池實時液位上升加速度中位數大于好氧顆粒污泥培養池實時液位上升加速度閾值,則發布所述好氧顆粒污泥培養池液位降低許可判定,反之則發布好氧顆粒污泥培養池液位降低終止判定;所述好氧顆粒污泥培養池液位降低流程包括以下步驟:獲取所述好氧顆粒污泥培養池(4)的實時液位上升速度;基于所述實時液位上升速度,獲得對應的水平影響范圍以及輸入降低比例;按照所述輸入降低比例降低所述污泥回流槽(41)正下方位于所述水平影響范圍內的第二微氧曝氣器(400)的供氧輸入功率;按照所述輸入降低比例降低所述第一污泥回流管(330)的回流功率;基于所述實時液位上升速度的變化情況,實時調節所述水平影響范圍以及所述輸入降低比例。
8.如權利要求3所述的側流顆粒化連續流好氧顆粒污泥處理裝置,其特征在于:所述智控系統(7)用于執行第一二沉池污泥調節流程;所述第一二沉池污泥調節流程包括以下步驟:識別所述污泥斗(33)的污泥實時重量;在預設的污泥斗檢測周期內,按照污泥重量變化加速度采集頻率采集的多個污泥實時重量增加加速度;基于多個所述污泥實時重量增加加速度,獲得污泥實時重量增加加速度中位數;若所述污泥實時重量增加加速度中位數大于污泥實時重量增加加速度閾值,則控制所述第一污泥回流泵(332)或所述第一剩余污泥泵(333)對應向所述好氧顆粒污泥培養池(4)或所述脫水機房回流污泥。
9.如權利要求8所述的側流顆粒化連續流好氧顆粒污泥處理裝置,其特征在于,控制所述第一污泥回流泵(332)或所述第一剩余污泥泵(333)對應向所述好氧顆粒污泥培養池(4)或所述脫水機房回流污泥中,包括以下步驟:基于所述污泥實時重量增加加速度中位數設定污泥斗污泥排出速率;基于所述污泥斗污泥排出速率,設定所述第一污泥回流泵(332)或所述第一剩余污泥泵(333)的工作功率,進而控制所述第一污泥回流泵(332)或所述第一剩余污泥泵(333)對應向所述好氧顆粒污泥培養池(4)或所述脫水機房回流污泥;其中,所述第一污泥回流泵(332)以及所述第一剩余污泥泵(333)在回流污泥時的污泥回流速率之和等于所述污泥斗污泥排出速率。
10.如權利要求1所述的側流顆粒化連續流好氧顆粒污泥處理裝置,其特征在于:所述智控系統(7)基于所述厭氧池(1)流向所述微氧曝氣池(2)的第一實時流速,與預設的第一設定流速進行比對,進而執行攪拌控制流程,調整所述攪拌器(12)的攪拌工作功率或攪拌工作高度;所述攪拌控制流程包括以下步驟:當所述第一實時流速低于所述第一設定流速時,獲得對應的預設的攪拌功率提升幅度;基于所述攪拌功率提升幅度提升所述攪拌工作功率,并根據所述第一實時流速的流速變化速度調整所述攪拌工作功率提升幅度;若所述攪拌工作功率已提升至預設的攪拌工作功率閾值時,所述第一實時流速仍低于所述第一設定流速,按照預設的第一降低比例降低所述攪拌工作功率;按照所述預設的第一高度調試范圍上下移動所述攪拌器(12),并保持在所述第一實時流速數值的最大值對應的高度,基于預設的攪拌功率提升幅度提升所述攪拌工作功率,并根據所述第一實時流速的流速變化速度調整所述攪拌工作功率提升幅度。
發明內容
本申請提供一種側流顆粒化連續流好氧顆粒污泥處理裝置,在不停產的情況下實現項目連續流好氧顆粒工藝改造,提升出水水質或處理規模,降低剩余污泥量,有效降低運行成本,從而滿足更高的處理要求。
本申請提供了一種側流顆粒化連續流好氧顆粒污泥處理裝置,所述裝置包括:
厭氧池、微氧曝氣池、二沉池、好氧顆粒污泥培養池、好氧顆粒污泥發生器、鼓風機房以及智控系統;
所述厭氧池與所述微氧曝氣池共壁設置,所述厭氧池與所述微氧曝氣池共有的側壁上設有第一連通孔;
所述厭氧池上設置有厭氧池進水管路以及攪拌器;
所述微氧曝氣池的一側內壁設置有出水槽,所述微氧曝氣池的底部設置第一微氧曝氣系統;
所述二沉池內部的進水中心筒通過出水槽管路與所述出水槽連通,所述二沉池側壁設置有二沉池出水槽,所述二沉池出水槽與預設的出水管路連接;
所述二沉池底部設置有刮泥機,所述二沉池底部與所述好氧顆粒污泥培養池以及所述厭氧池連通;
所述好氧顆粒污泥培養池的底部設置有第二微氧曝氣系統,所述好氧顆粒污泥培養池的頂部內壁設置有與所述厭氧池連通的污泥回流槽,所述好氧顆粒污泥發生器設置在所述好氧顆粒污泥培養池內部;
所述好氧顆粒污泥培養池內部設置有循環污泥氣提管路、內回流氣提管路以及外回流氣提管路,所述循環污泥氣提管路用于將所述好氧顆粒污泥培養池底部的污泥回流至所述好氧顆粒污泥培養池頂部,所述內回流氣提管路用于將所述好氧顆粒污泥培養池底部的污泥回流至所述好氧顆粒污泥培養池,所述外回流氣提管路用于將所述好氧顆粒污泥培養池底部的污泥回流至所述污泥回流槽;
所述好氧顆粒污泥發生器內部設置有發生器出水槽,所述發生器出水槽與所述二沉池內部的進水中心筒連通,所述好氧顆粒污泥發生器的中部側壁設置有好氧顆粒污泥發生器進水口;
所述鼓風機房與所述第一微氧曝氣系統、所述第二微氧曝氣系統、所述循環污泥氣提管路、所述內回流氣提管路以及所述外回流氣提管路連通;其中,
所述第一微氧曝氣系統包括多個間隔排布的第一微氧曝氣器;
所述第二微氧曝氣系統包括多個間隔排布的第二微氧曝氣器;
所述智控系統用于對所述厭氧池、所述微氧曝氣池、二沉池、所述好氧顆粒污泥培養池、所述好氧顆粒污泥發生器以及所述鼓風機房進行智能控制。
進一步的,所述二沉池底部設有污泥斗;
所述刮泥機用于將所述二沉池底部的污泥收集至所述污泥斗內;
所述污泥斗通過第一污泥回流管與所述厭氧池、所述好氧顆粒污泥培養池連通。
進一步的,所述污泥斗配置有剩余污泥管,所述污泥斗內的污泥通過所述剩余污泥管傳輸至預設的脫水機房;
所述第一污泥回流管靠近所述污泥斗的一端設置有第一污泥回流泵;
所述剩余污泥管靠近所述污泥斗的一端設置有第一剩余污泥泵。
進一步的,所述智控系統用于執行第一厭氧池污泥調節流程;
所述第一厭氧池污泥調節流程包括以下步驟:
識別所述厭氧池的實時濃度;
所述智控系統基于所述厭氧池的實時濃度,執行厭氧池第一污泥補充判定流程或厭氧池第二污泥補充判定流程,獲得厭氧池污泥補充許可判定;
基于所述厭氧池污泥補充許可判定,所述智控系統控制所述外回流氣提管路執行厭氧池第一污泥補充流程或厭氧池第二污泥補充流程;
所述厭氧池第一污泥補充判定流程包括以下步驟:
若所述厭氧池的實時濃度低于預設的厭氧池實時濃度最低閾值,則發布所述厭氧池污泥補充許可判定,反之則發布厭氧池污泥補充終止判定;
所述厭氧池第二污泥補充判定流程包括以下步驟:
在預設的厭氧池污泥檢測周期內,按照污泥濃度變化加速度采集頻率采集的多個厭氧池實時濃度下降加速度;
基于多個所述厭氧池實時濃度下降加速度,獲得厭氧池實時濃度下降加速度中位數;
若所述厭氧池實時濃度下降加速度中位數大于厭氧池實時濃度下降加速度閾值,則發布所述厭氧池污泥補充許可判定,反之則所述發布厭氧池污泥補充終止判定;
所述厭氧池第一污泥補充流程包括以下步驟:
基于預設的厭氧池污泥補充速度,控制所述外回流氣提管路向所述厭氧池進行污泥補充;
執行厭氧池第一污泥補充判定流程或厭氧池第二污泥補充判定流程,獲得所述厭氧池污泥補充終止判定;
基于所述厭氧池污泥補充終止判定,控制所述外回流氣提管路終止向所述厭氧池進行污泥補充;
所述厭氧池第二污泥補充流程包括以下步驟:
基于所述厭氧池實時濃度下降加速度中位數、預設的標準污泥補充速度以及第一關聯系數,獲得厭氧池污泥實時補充速度;
基于所述厭氧池污泥實時補充速度,控制所述外回流氣提管路向所述厭氧池進行污泥補充,并按照預設的補充速度調整周期,根據所述厭氧池實時濃度下降加速度中位數動態調整所述厭氧池污泥實時補充速度;
執行厭氧池第一污泥補充判定流程或厭氧池第二污泥補充判定流程,獲得所述厭氧池污泥補充終止判定;
基于所述厭氧池污泥補充終止判定,控制所述外回流氣提管路終止向所述厭氧池進行污泥補充;其中,
所述第一關聯系數為所述厭氧池實時濃度下降加速度的數值對所述標準污泥補充速度的數值的影響系數。
進一步的,針對所述厭氧池第二污泥補充流程,配置有厭氧池污泥實時補充速度計算公式,所述厭氧池污泥實時補充速度計算公式為:
其中,
V補充為所述厭氧池污泥實時補充速度;
a為所述厭氧池實時濃度下降加速度中位數;
a0為預設的厭氧池實時濃度下降標準加速度;
k為第一關聯系數;
V0為預設的標準污泥補充速度。
進一步的,所述智控系統用于執行第二厭氧池污泥調節流程;
所述第二厭氧池污泥調節流程包括以下步驟:
識別所述厭氧池的實時濃度;
所述智控系統基于所述厭氧池的實時濃度,執行厭氧池第一污泥補充判定流程或厭氧池第二污泥補充判定流程,獲得厭氧池污泥補充許可判定;
基于所述厭氧池污泥補充許可判定,所述智控系統控制所述外回流氣提管路執行厭氧池第一污泥補充流程或厭氧池第三污泥補充流程;
所述厭氧池第一污泥補充判定流程包括以下步驟:
若所述厭氧池的實時濃度低于預設的厭氧池實時濃度最低閾值,則發布所述厭氧池污泥補充許可判定,反之則發布厭氧池污泥補充終止判定;
所述厭氧池第二污泥補充判定流程包括以下步驟:
在預設的厭氧池污泥檢測周期內,按照污泥濃度變化加速度采集頻率采集的多個厭氧池實時濃度下降加速度;
基于多個所述厭氧池實時濃度下降加速度,獲得厭氧池實時濃度下降加速度中位數;
若所述厭氧池實時濃度下降加速度中位數大于厭氧池實時濃度下降加速度閾值,則發布所述厭氧池污泥補充許可判定,反之則所述發布厭氧池污泥補充終止判定;
所述厭氧池第一污泥補充流程包括以下步驟:
基于預設的厭氧池污泥補充速度,控制所述外回流氣提管路向所述厭氧池進行污泥補充;
執行厭氧池第一污泥補充判定流程或厭氧池第二污泥補充判定流程,獲得所述厭氧池污泥補充終止判定;
基于所述厭氧池污泥補充終止判定,控制所述外回流氣提管路終止向所述厭氧池進行污泥補充;
所述厭氧池第二污泥補充流程包括以下步驟:
基于所述厭氧池實時濃度下降加速度中位數、預設的標準污泥補充速度、第一關聯系數以及厭氧池進水管路影響系數,獲得厭氧池污泥實時補充速度;
基于所述厭氧池污泥實時補充速度,控制所述外回流氣提管路向所述厭氧池進行污泥補充,并按照預設的補充速度調整周期,根據所述厭氧池實時濃度下降加速度中位數動態以及所述厭氧池進水管路影響系數調整所述厭氧池污泥實時補充速度;
執行厭氧池第一污泥補充判定流程或厭氧池第二污泥補充判定流程,獲得所述厭氧池污泥補充終止判定;
基于所述厭氧池污泥補充終止判定,控制所述外回流氣提管路終止向所述厭氧池進行污泥補充;其中,
所述第一關聯系數為所述厭氧池實時濃度下降加速度的數值對所述標準污泥補充速度的數值的影響系數;
所述厭氧池進水管路影響系數為厭氧池進水管路實時流速對所述標準污泥補充速度的數值的影響系數。
進一步的,所述智控系統用于執行第一好氧顆粒污泥培養池液位調節流程;
所述第一好氧顆粒污泥培養池液位調節流程包括以下步驟:
識別所述好氧顆粒污泥培養池的實時液位;
所述智控系統基于所述好氧顆粒污泥培養池的實時液位,執行好氧顆粒污泥培養池液位第一判定流程或好氧顆粒污泥培養池液位第二判定流程,獲得好氧顆粒污泥培養池液位降低許可判定或所述好氧顆粒污泥培養池液位降低終止判定;
基于所述好氧顆粒污泥培養池液位降低許可判定,所述智控系統控制所述第一污泥回流管以及所述第二微氧曝氣系統執行好氧顆粒污泥培養池液位降低流程;
基于所述好氧顆粒污泥培養池液位降低終止判定,所述智控系統控制所述第一污泥回流管以及所述第二微氧曝氣系統終止執行好氧顆粒污泥培養池液位降低流程;說明書4/17頁10CN117228841B10
所述好氧顆粒污泥培養池液位第一判定流程包括以下步驟:
若所述好氧顆粒污泥培養池的實時液位高于預設的好氧顆粒污泥培養池實時液位最高閾值,則發布所述好氧顆粒污泥培養池液位降低許可判定,反之則發布好氧顆粒污泥培養池液位降低終止判定;
所述厭氧池第二污泥補充判定流程包括以下步驟:
在預設的好氧顆粒污泥培養池液位檢測周期內,按照實時液位變化加速度采集頻率采集的多個好氧顆粒污泥培養池實時液位上升加速度;
基于多個所述好氧顆粒污泥培養池實時液位上升加速度,獲得好氧顆粒污泥培養池實時液位上升加速度中位數;
若所述好氧顆粒污泥培養池實時液位上升加速度中位數大于好氧顆粒污泥培養池實時液位上升加速度閾值,則發布所述好氧顆粒污泥培養池液位降低許可判定,反之則發布好氧顆粒污泥培養池液位降低終止判定;
所述好氧顆粒污泥培養池液位降低流程包括以下步驟:
獲取所述好氧顆粒污泥培養池的實時液位上升速度;
基于所述實時液位上升速度,獲得對應的水平影響范圍以及輸入降低比例;
按照所述輸入降低比例降低所述污泥回流槽正下方位于所述水平影響范圍內的所述第二微氧曝氣器的供氧輸入功率;
按照所述輸入降低比例降低所述第一污泥回流管的回流功率;
基于所述實時液位上升速度的變化情況,實時調節所述水平影響范圍以及所述輸入降低比例。
進一步的,所述智控系統用于執行第一二沉池污泥調節流程;
所述第一二沉池污泥調節流程包括以下步驟:
識別所述污泥斗的污泥實時重量;
在預設的污泥斗檢測周期內,按照污泥重量變化加速度采集頻率采集的多個污泥實時重量增加加速度;
基于多個所述污泥實時重量增加加速度,獲得污泥實時重量增加加速度中位數;
若所述污泥實時重量增加加速度中位數大于污泥實時重量增加加速度閾值,則控制所述第一污泥回流泵或所述第一剩余污泥泵對應向所述好氧顆粒污泥培養池或所述脫水機房回流污泥。
進一步的,控制所述第一污泥回流泵或所述第一剩余污泥泵對應向所述好氧顆粒污泥培養池或所述脫水機房回流污泥中,包括以下步驟:
基于所述污泥實時重量增加加速度中位數設定污泥斗污泥排出速率;
基于所述污泥斗污泥排出速率,設定所述第一污泥回流泵或所述第一剩余污泥泵的工作功率,進而控制所述第一污泥回流泵或所述第一剩余污泥泵對應向所述好氧顆粒污泥培養池或所述脫水機房回流污泥;其中,
所述第一污泥回流泵以及所述第一剩余污泥泵在回流污泥時的污泥回流速率之和等于所述污泥斗污泥排出速率。
進一步的,所述智控系統基于所述厭氧池流向所述微氧曝氣池的第一實時流速,與預設的第一設定流速進行比對,進而執行攪拌控制流程,調整所述攪拌器的攪拌工作功率或攪拌工作高度;
所述攪拌控制流程包括以下步驟:
當所述第一實時流速低于所述第一設定流速時,獲得對應的預設的攪拌功率提升幅度;
基于所述攪拌功率提升幅度提升所述攪拌工作功率,并根據所述第一實時流速的流速變化速度調整所述攪拌工作功率提升幅度;
若所述攪拌工作功率已提升至預設的攪拌工作功率閾值時,所述第一實時流速仍低于所述第一設定流速,按照預設的第一降低比例降低所述攪拌工作功率;
按照所述預設的第一高度調試范圍上下移動所述攪拌器,并保持在所述第一實時流速數值的最大值對應的高度,基于預設的攪拌功率提升幅度提升所述攪拌工作功率,并根據所述第一實時流速的流速變化速度調整所述攪拌工作功率提升幅度。
本申請提供的技術方案帶來的有益效果包括:
本申請在不停產的情況下實現項目連續流好氧顆粒工藝改造,提升出水水質或處理規模,降低剩余污泥量,有效降低運行成本,從而滿足更高的處理要求。
(發明人:曹天宇;張凱淵;李國瑋;劉磊;鄭平萍;劉瑞陽;胡翔宇)






