公布日:2023.12.12
申請日:2023.09.14
分類號:C02F3/30(2023.01)I;C02F7/00(2006.01)I
摘要
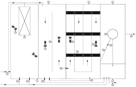
本發明提供一種循環流生化處理反應器和方法,所述反應器包括沿污水流動方法依次連接的缺氧區、好氧區和沉淀區,以及用于排放污泥的污泥回流區;所述好氧區設置有硝化液回流管路至所述缺氧區;所述污泥回流區設置有缺氧回流污泥管路至所述缺氧區。本發明提供的循環流生化處理方法不僅能實現氮磷去除率最高化,還可實現處理效果穩定可靠、工藝控制靈活調節、環境友好、能耗低、運行維護便于管理及建設成本相對較小,充分發揮其成熟性、高效性以及經濟性。

權利要求書
1.一種循環流生化處理反應器,其特征在于,所述反應器包括沿污水流動方法依次連接的缺氧區、好氧區和沉淀區,以及用于排放污泥的污泥回流區;所述好氧區設置有硝化液回流管路至所述缺氧區;所述污泥回流區設置有缺氧回流污泥管路至所述缺氧區。
2.根據權利要求1所述的循環流生化處理反應器,其特征在于,所述反應器的材質包括鋼材或鋼砼混凝土;優選地,所述缺氧區的出口設置有第一過水孔;優選地,所述缺氧區靠近入口的一側設置有第一進水區;優選地,所述缺氧區靠近第一過水孔的一側設置有第一出水區;優選地,所述第一進水區和第一出水區之間設置有第一導流隔墻;優選地,所述第一進水區和第一出水區內分別設置有至少一個第二攪拌裝置;優選地,所述缺氧區通過第一過水孔與所述好氧區的入口相連接。
3.根據權利要求1或2所述的循環流生化處理反應器,其特征在于,所述好氧區內部設置有至少兩組支撐架;優選地,所述支撐架上設置有生物填料;優選地,所述生物填料的占好氧區內污水體積的8~15%;優選地,所述生物填料包括PP材料和/或改性纖維材料;優選地,所述好氧區內部設置有至少一個用于混合液充氧和攪拌的曝氣裝置;優選地,所述好氧區經連通管與沉淀區入口連接;優選地,所述好氧區內部設置有第二導流隔墻;優選地,所述第二導流隔墻包括U型隔墻和間隔隔墻;優選地,所述間隔隔墻固定設置于所述好氧區的頂部中間位置;優選地,所述U型隔墻固定設置于所述好氧區的底部中間位置;優選地,所述好氧區內設置有至少兩個用于攪拌污水的第三攪拌裝置。
4.根據權利要求1-3任一項所述的循環流生化處理反應器,其特征在于,所述沉淀區的中部設置有刮泥設備;優選地,所述刮泥設備包括刮泥機、中心導流筒、浮渣擋板和排渣斗;優選地,所述刮泥設備的中心導流筒的入口與連通管相連接;優選地,所述刮泥設備污泥經排泥管道與所述污泥回流區相連接;優選地,所述沉淀區的上部設置有出水堰板;優選地,所述出水堰板與排水管連接。
5.根據權利要求1-4任一項所述的循環流生化處理反應器,其特征在于,所述循環流生化處理反應器內還包括與所述缺氧區相連接的厭氧區;優選地,所述厭氧區的入口設置有進水管;優選地,所述進水管的出水端連接設置有均勻布水裝置;優選地,所述厭氧區的底部設置有曝氣裝置;優選地,所述厭氧區的內部設置有泥水分離裝置和第一攪拌裝置;優選地,所述泥水分離裝置的出水管路分為兩支,一支與所述進水管相連接,另一支與所述缺氧區的入口相連接;優選地,所述厭氧區設置有厭氧回流污泥管路至所述污泥回流區;優選地,所述厭氧區設置有厭氧外加污泥管路為厭氧區提供厭氧污泥。
6.根據權利要求1-5任一項所述的循環流生化處理反應器,其特征在于,所述污泥回流區設置有回流污泥管路至厭氧區;優選地,所述污泥回流區設置有污泥外排管道。
7.一種循環流生化處理方法,其特征在于,所述方法在如權利要求1-6任一項所述的反應器中進行。
8.根據權利要求7所述的方法,其特征在于,所述方法包括如下步驟:(1)污水經過入口進入缺氧區進行反硝化脫氮,得到溶液A,部分有機物被降解;(2)將溶液A進入好氧區進行有機物的降解、有機氮的氨化硝化和磷的吸收,形成溶液B,一部分溶液B進入沉淀區,剩余溶液B記為硝化循環液并進入缺氧區;(3)進入沉淀區的溶液B進行泥水分離,得到溶液C和污泥,溶液C從反應器排出,污泥進入污泥回流區。
9.根據權利要求8所述的方法,其特征在于,步驟(1)所述缺氧區的水力停留時間為1~40h;優選地,步驟(1)所述缺氧區的攪拌強度為4~12W/m3;優選地,步驟(1)所述缺氧區的反硝化負荷取值范圍為0.03~0.06kgNO3-N/(kgMLSS.d);優選地,所述溶液A和溶液B的污泥負荷取值為0.05~0.15kgBOD5/(kgMLSS.d);優選地,所述溶液A和溶液B的污泥濃度為4000~8000mg/L;優選地,步驟(2)所述好氧區的水力停留時間為7~50h;優選地,步驟(2)所述好氧區的攪拌強度為1~3W/m3;優選地,步驟(2)所述硝化循環液的回流比為100~1200%;優選地,步驟(2)所述好氧區的曝氣強度為6~12m3/m2.h;優選地,步驟(3)所述沉淀區的表面負荷為0.4~1m3/m2.h;優選地,步驟(3)所述污泥回流區的污泥回流比為0~100%。
10.根據權利要求8或9所述的方法,其特征在于,步驟(1)所述污水進入缺氧區前還包括:污水與來自污泥回流區的污泥在厭氧區內混合并進行釋磷;優選地,所述厭氧區的水力停留時間為0.5~45h;優選地,所述厭氧區的總氮去除負荷取值范圍為0.3~3kgTN/m3.d;優選地,所述厭氧區的污水上升流速0.5~1.5m/h;優選地,所述厭氧區的攪拌強度為4~12W/m3。
發明內容
針對現有技術的不足,本發明的目的在于提供一種循環流生化處理反應器和方法。本發明提供的循環流生化處理方法不僅能實現氮磷去除率最高化,還可實現處理效果穩定可靠、工藝控制靈活調節、環境友好、能耗低、運行維護便于管理及建設成本相對較小,充分發揮其成熟性、高效性以及經濟性。
為達此目的,本發明采用以下技術方案:
第一方面,本發明提供了一種循環流生化處理反應器,所述反應器包括沿污水流動方法依次連接的缺氧區、好氧區和沉淀區,以及用于排放污泥的污泥回流區;
所述好氧區設置有硝化液回流管路至所述缺氧區;
所述污泥回流區設置有缺氧回流污泥管路至所述缺氧區。
本發明提供的反應器通過設置缺氧區、好氧區、沉淀區以及污泥回流區,并將缺氧區的出口與好氧區連接,好氧區的出口與沉淀區連接,沉淀區的污泥出口(即為污泥回流區的污泥循環出口)與缺氧區連接,可以實現反應器內流體的完全混合和局部推流,有效解決進水濃度過高導致的微生物與污水混合不充分以及處理效率低的問題;該反應器適用于大流量循環工藝,不僅負荷低,抗沖擊能力強,而且能耗低,并且節約占地面積。
作為本發明的一個優選技術方案,所述反應器的材質包括鋼材或鋼砼混凝土。
作為本發明的一個優選技術方案,所述缺氧區的出口設置有第一過水孔。
優選地,所述缺氧區靠近入口的一側設置有第一進水區。
優選地,所述缺氧區靠近第一過水孔的一側設置有第一出水區。
優選地,所述第一進水區和第一出水區之間設置有第一導流隔墻。
本發明所述第一導流隔墻由隔板或鋼砼隔墻組合而成。
優選地,所述第一進水區和第一出水區內分別設置有至少一個第二攪拌裝置。
優選地,所述缺氧區通過第一過水孔與所述好氧區的入口相連接。
值得注意的是,本發明所述缺氧區內還設置有在線監測儀表,包括pH檢測儀和/或DO檢測儀,本領域技術人員可以按需進行設置。
本發明所述缺氧區采用“導流隔墻和攪拌裝置”結合的模式,進行導流循環的同時進行攪拌可以有效加快流體的充分混合,解決反應器局部淤積、短流以及死水的問題。
作為本發明的一個優選技術方案,所述好氧區內部設置有至少兩組支撐架。
優選地,所述支撐架上設置有生物填料。
優選地,所述生物填料的占好氧區內污水體積的8~15%,例如可以是8%、9%、10%、12%、14%或15%,但不限于所列舉的數值,數值范圍內其他未被列舉的數值同樣適用。
優選地,所述生物填料包括PP材料和/或改性纖維材料。
優選地,所述好氧區內部設置有至少一個用于混合液充氧和攪拌的曝氣裝置。
本發明所述好氧區內的曝氣裝置可以設置在兩組支撐架之間,也可以設置在支撐架與反應器隔墻之間,只要可以實現加速污水充氧的目的即可。
優選地,所述好氧區經連通管與沉淀區入口連接。
優選地,所述好氧區內部設置有第二導流隔墻。
優選地,所述第二導流隔墻包括U型隔墻和間隔隔墻。
優選地,所述間隔隔墻固定設置于所述好氧區的頂部中間位置。
優選地,所述U型隔墻固定設置于所述好氧區的底部中間位置。
優選地,所述好氧區內設置有至少兩個用于攪拌污水的第三攪拌裝置。
值得注意的是,本發明所述好氧區內還設置有在線監測儀表,包括pH檢測儀和/或DO檢測儀,本領域技術人員可以按需進行設置。
本發明所述好氧區采用按需求設置導流隔墻進行導流循環,采用曝氣裝置進行曝氣,因此可以有效降低曝氣的充氧量,實現低氧曝氣,降低反應器的能耗,同時具有良好的處理效果。
作為本發明的一個優選技術方案,所述沉淀區的中部設置有刮泥設備。
優選地,所述刮泥設備包括刮泥機、中心導流筒、浮渣擋板和排渣斗。
優選地,所述刮泥設備的中心導流筒的入口與連通管相連接。
值得注意的是,本發明所述刮泥機可按需選擇中心傳動刮泥機或周邊傳動刮泥機;其中所述刮泥機與中心導流筒位于同一軸線上。
優選地,所述刮泥設備污泥經排泥管道與所述污泥回流區相連接。
優選地,所述沉淀區的上部設置有出水堰板。
優選地,所述出水堰板與排水管連接。
本發明所述出水堰板由不規則的齒形鋼板及其固定支架組合而成。
作為本發明的一個優選技術方案,所述循環流生化處理反應器內還包括與所述缺氧區相連接的厭氧區。
優選地,所述厭氧區的入口設置有進水管。
優選地,所述進水管的出水端連接設置有均勻布水裝置;
優選地,所述厭氧區的底部設置有曝氣裝置。
本發明所述曝氣裝置由盤式曝氣器或若干交錯穿孔管及其連接管組合而成。
優選地,所述厭氧區的內部設置有泥水分離裝置和第一攪拌裝置。
優選地,所述泥水分離裝置的出水管路分為兩支,一支與所述進水管相連接,另一支與所述缺氧區的入口相連接。
本發明所述泥水分離裝置包括出水堰或出水堰和固液分離器的組合。所述出水堰板由不規格的齒形鋼板及其固定支架組合而成;所述固液分離器由設備本體、填料及固液分離器組合而成。
優選地,所述厭氧區設置有厭氧回流污泥管路至所述污泥回流區。
優選地,所述厭氧區設置有厭氧外加污泥管路為厭氧區提供厭氧污泥。
本發明所述厭氧區內部還設置有導流隔墻和在線檢測儀表。所述在線檢測儀表包括pH檢測儀、溫度計、ORP/DO檢測儀以及NH3-N/亞硝酸鹽檢測儀,本領域技術人員可以按需設置。
本發明所述厭氧區的出口與缺氧區連接,沉淀區的污泥出口(即為污泥回流區的污泥循環出口)與缺氧區和厭氧區連接,實現了反應器內流體的完全混合和局部推流,有效解決進水濃度過高導致的微生物與污水混合不充分以及處理效率低的問題。
作為本發明的一個優選技術方案,所述污泥回流區設置有回流污泥管路至厭氧區。
優選地,所述污泥回流區設置有污泥外排管道。
第二方面,本發明提供了一種循環流生化處理方法,所述方法在如第一方面提供的反應器中進行。
作為本發明的一個優選技術方案,所述方法包括如下步驟:
(1)污水經過入口進入缺氧區進行反硝化脫氮,得到溶液A,部分有機物被降解;
(2)將溶液A進入好氧區進行有機物的降解、有機氮的氨化硝化和磷的吸收,形成溶液B,一部分溶液B進入沉淀區,剩余溶液B記為硝化循環液并進入缺氧區;
(3)進入沉淀區的溶液B進行泥水分離,得到溶液C和污泥,溶液C從反應器排出,污泥進入污泥回流區。
本發明所述方法不僅能實現氮磷去除率最高化,還可實現處理效果穩定可靠、工藝控制靈活調節、環境友好、能耗低、運行維護便于管理及建設成本相對較小,可以充分發揮其成熟性、高效性以及經濟性。
作為本發明的一個優選技術方案,步驟(1)所述缺氧區的水力停留時間為1~40h,例如可以是2h、5h、10h、15h、20h、25h、30h、35h或38h,但不限于所列舉的數值,數值范圍內其他未被列舉的數值同樣適用。
優選地,步驟(1)所述缺氧區的攪拌強度為4~12W/m3,例如可以是5W/m3、7W/m3、9W/m3或11W/m3,但不限于所列舉的數值,數值范圍內其他未被列舉的數值同樣適用。
優選地,步驟(1)所述缺氧區的反硝化負荷取值范圍為0.03~0.06kgNO3-N/(kgMLSS.d),例如可以是0.03kgNO3-N/(kgMLSS.d)、0.04kgNO3-N/(kgMLSS.d)、0.05kgNO3-N/(kgMLSS.d)或0.06kgNO3-N/(kgMLSS.d),但不限于所列舉的數值,數值范圍內其他未被列舉的數值同樣適用。
優選地,所述溶液A和溶液B的污泥負荷取值為0.05~0.15kgBOD5/(kgMLSS.d),例如可以是0.07kgNO3-N/(kgMLSS.d)、0.09kgNO3-N/(kgMLSS.d)、0.11kgNO3-N/(kgMLSS.d)或0.13kgNO3-N/(kgMLSS.d),但不限于所列舉的數值,數值范圍內其他未被列舉的數值同樣適用。
優選地,所述溶液A和溶液B的污泥濃度為4000~8000mg/L,例如可以是4500mg/L、5000mg/L、6000mg/L、7000mg/L或7500mg/L,但不限于所列舉的數值,數值范圍內其他未被列舉的數值同樣適用。
優選地,步驟(2)所述好氧區的水力停留時間為7~50h,例如可以是8h、10h、20h、30h、40h或45h,但不限于所列舉的數值,數值范圍內其他未被列舉的數值同樣適用。
優選地,步驟(2)所述好氧區的攪拌強度為1~3W/m3,例如可以是1.2W/m3、1.5W/m3、2W/m3、2.5W/m3或2.8W/m3,但不限于所列舉的數值,數值范圍內其他未被列舉的數值同樣適用。
優選地,步驟(2)所述硝化循環液的回流比為100~1200%,例如可以是150%、200%、400%、600%、800%、1000%或1150%,但不限于所列舉的數值,數值范圍內其他未被列舉的數值同樣適用。
優選地,步驟(2)所述好氧區的曝氣強度為6~12m3/m2.h,例如可以是7m3/m2.h、8m3/m2.h、9m3/m2.h、10m3/m2.h或11m3/m2.h,但不限于所列舉的數值,數值范圍內其他未被列舉的數值同樣適用。
優選地,步驟(3)所述沉淀區的表面負荷為0.4~1m3/m2.h,例如可以是0.5m3/m2.h、0.6m3/m2.h、0.7m3/m2.h、0.8m3/m2.h或0.9m3/m2.h,但不限于所列舉的數值,數值范圍內其他未被列舉的數值同樣適用。
優選地,步驟(3)所述污泥回流區的污泥回流比為0~100%,例如可以是10%、20%、30%、40%、50%、60%、70%、80%或90%,但不限于所列舉的數值,數值范圍內其他未被列舉的數值同樣適用。
作為本發明的一個優選技術方案,步驟(1)所述污水進入缺氧區前還包括:污水與來自污泥回流區的污泥在厭氧區內混合并進行釋磷。
優選地,所述厭氧區的水力停留時間為0.5~45h,例如可以是1h、5h、10h、15h、20h、25h、30h、35h或40h,但不限于所列舉的數值,數值范圍內其他未被列舉的數值同樣適用。
優選地,所述厭氧區的總氮去除負荷取值范圍為0.3~3kgTN/m3.d,例如可以是0.5kgTN/m3.d、1kgTN/m3.d、1.5kgTN/m3.d、2kgTN/m3.d或2.5kgTN/m3.d,但不限于所列舉的數值,數值范圍內其他未被列舉的數值同樣適用。
優選地,所述厭氧區的污水上升流速0.5~1.5m/h,例如可以是0.7m/h、0.9m/h、1.1m/h或1.3m/h,但不限于所列舉的數值,數值范圍內其他未被列舉的數值同樣適用。
優選地,所述厭氧區的攪拌強度為4~12W/m3,例如可以是5W/m3、7W/m3、9W/m3或11W/m3,但不限于所列舉的數值,數值范圍內其他未被列舉的數值同樣適用。
作為本發明的優選技術方案,本發明第二方面提供的循環流生化處理方法包括如下步驟:
(a)污水與來自污泥回流區的污泥在厭氧區內混合并進行釋磷,得到混合液;
其中,所述厭氧區的水力停留時間為0.5~45h,總氮去除負荷取值范圍為0.3~3kgTN/m3.d,污水上升流速0.5~1.5m/h,攪拌強度為4~12W/m3;
(b)步驟(a)所得混合液經過入口進入缺氧區進行反硝化脫氮,得到溶液A,部分有機物被降解;
其中,所述缺氧區的水力停留時間為1~40h,攪拌強度為4~12W/m3,反硝化負荷取值范圍為0.03~0.06kgNO3-N/(kgMLSS.d);溶液A的污泥負荷取值為0.05~0.15kgBOD5/(kgMLSS.d),溶液A的污泥濃度為4000~8000mg/L;
(c)將溶液A進入好氧區進行有機物的降解、有機氮的氨化硝化和磷的吸收,形成溶液B,一部分溶液B進入沉淀區,剩余溶液B記為硝化循環液并進入缺氧區;
其中,所述好氧區的水力停留時間為7~50h,攪拌強度為1~3W/m3,曝氣強度為6~12m3/m2.h;所述硝化循環液的回流比為100~1200%;溶液B的污泥濃度為4000~8000mg/L;
(d)進入沉淀區的溶液B進行泥水分離,得到溶液C和污泥,溶液C從反應器排出,污泥進入污泥回流區;
其中,所述沉淀區的表面負荷為0.4~1m3/m2.h,污泥回流比為0~100%。
本發明所述的數值范圍不僅包括上述例舉的點值,還包括沒有例舉出的上述數值范圍之間的任意的點值,限于篇幅及出于簡明的考慮,本發明不再窮盡列舉所述范圍包括的具體點值。
與現有技術相比,本發明具有以下有益效果:
(1)本發明提供的反應器的混合反應效果理想,運行方式靈活:水力流態呈“總體推流+分區循環混合”,各區反應器采用循環流的流態,同時具備完全混合式反應器的耐沖擊負荷能力和推流式反應器的基質降解推動力;各區反應器采用循環流方式,進水水流分布均勻,反應器內不易產生急流、渦流、短流、死水及積泥現象,水頭損失較小,宏觀混合的調勻度高、混合反應效果理想;
(2)本發明提供的反應器抗沖擊負荷能力,出水水質穩定:反應器采用具備耐沖擊負荷較強的水解酸化/厭氧氨氧化工藝,利用外循環系統快速稀釋原水污染物濃度,降低污染物負荷,提高抗沖擊能力強;反應器內設置生物填料,利用填料的高濃度微生物富集作用生化降解廢水中的有機物,抗沖擊負荷能力得以提高,運行處理效果,出水水質安全有保障;
(3)采用本發明提供的反應器進行生化處理的二次污染小、環境友好:采用特定的厭氧工藝,所產氣體為無害化合物,污泥產量低,二次污染小;采用特定的微生物載體,污泥沉降性能增強、剩余污泥產量較小,自耗性較強;
(4)本發明提供的反應器的運行能耗低、操作管理便利:采用特定的厭氧工藝,無需或少量外加有機物作為電子供體,節約能耗,泥水分離系統模塊化,無需額外動力消耗;采用微孔曝氣設備,并結合循環流水力形式,動力能耗遠低于常用的穿孔或中孔曝氣系統;采用成品加工的曝氣設備,可提升安裝方式,拆裝便利,操作維護簡單;
(5)本發明提供的反應器占地小、建設成本少:采用特定的微生物載體,有效池容降低,占地小;集厭氧、缺氧、好氧以及沉淀于一體,提高池體容積利用率,建設成本少。
(發明人:李詩恬;桂新安)






