公布日:2023.04.25
申請日:2022.12.21
分類號:C02F3/00(2023.01)I;C02F3/28(2023.01)I;C02F3/32(2023.01)I;C02F101/16(2006.01)N
摘要
本發明屬于污水處理技術領域,公開了一種用于污水處理的反硝化濕地。本發明中反硝化人工濕地由上至下依次包括砂石填料層、一級反硝化層、礦渣填料層、二級反硝化層、防滲膜保護層、池體底板層;所述一級反硝化層、二級反硝化層分別設置微電場。通過反硝化濕地來實現污水處理反硝化過程,從而去除經過氨化及硝化作用后污水中的NO2‑和NO3‑。此過程既具備缺氧條件下反硝化過程,也具備好氧條件下的反硝化過程,既能實現NO2‑向N2轉化,NO3‑向N2轉化,同時實現NH4+向N2轉化。

權利要求書
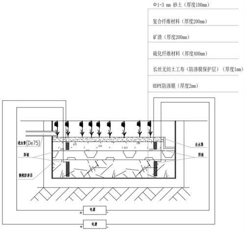
1.一種用于污水處理的反硝化濕地,其特征在于,所述反硝化濕地由上至下依次包括砂石填料層、一級反硝化層、礦渣填料層、二級反硝化層、防滲膜保護層、池體底板層;所述一級反硝化層、二級反硝化層分別設置微電場;所述一級反硝化層的填料為復合纖維材料與腐殖化污泥顆粒,所述復合纖維材料與腐殖化污泥顆粒的鋪設厚度為180~230mm,所述腐殖化污泥顆粒的體積為復合纖維材料的20~40%;所述腐殖化污泥顆粒的制備方法,包括以下步驟:對污泥同時進行烘干與超聲波處理,得到烘干后的污泥;烘干后的污泥依次經堿溶分選區、電場分選區和酸析沉區處理,得到腐殖化污泥顆粒;所述一級反硝化層與二級反硝化層中微電場的陰極獨立的為采用石墨電極與磁鐵棒電極并排交替設置,陽極獨立的為不銹鋼管電極,所述陰極和陽極的電極的直徑獨立的為8~12mm;所述一級反硝化層中微電場的通電時間為晝間持續通電,夜間停止;所述二級反硝化層中微電場的通電時間為晝間每通電1min停止5min,夜間停止。
2.根據權利要求1所述的用于污水處理的反硝化濕地,其特征在于,所述反硝化濕地的總深度為1072~1654mm,所述反硝化濕地的進水流量為4.8~5.5m3/h。
3.根據權利要求1或2所述的用于污水處理的反硝化濕地,其特征在于,所述砂石填料層中砂石的鋪設厚度為80~150mm,所述砂石填料層中砂石的粒徑為1~3mm。
4.根據權利要求3所述的用于污水處理的反硝化濕地,其特征在于,所述礦渣填料層中礦渣的鋪設厚度為180~250mm,所述礦渣填料層中礦渣的粒徑為10~20mm。
5.根據權利要求4所述的用于污水處理的反硝化濕地,其特征在于,所述二級反硝化層的填料為硫化纖維材料,所述硫化纖維的鋪設厚度為200~450mm。
6.根據權利要求4或5所述的用于污水處理的反硝化濕地,其特征在于,所述防滲膜保護層從上至下依次為長絲無紡土工布、HDPE防滲膜,所述長絲無紡土工布的鋪設厚度為0.5~1.5mm,所述HDPE防滲膜的鋪設厚度為1.5~2.5mm。
7.根據權利要求4或5所述的用于污水處理的反硝化濕地,其特征在于,所述池體底板層中池體底板厚度為180~250mm,所述池體底板層中池體基礎厚度為250~320mm。
8.根據權利要求7所述的用于污水處理的反硝化濕地,其特征在于,所述反硝化濕地的上方設置散水裝置。
發明內容
本發明的目的在于提供一種用于污水處理的反硝化濕地,解決現有技術中人工濕地氮磷去除能力低、低溫季節凈污效果差的問題。
為了實現上述發明目的,本發明提供以下技術方案:
本發明提供了一種用于污水處理的反硝化濕地,所述反硝化濕地由上至下依次包括砂石填料層、一級反硝化層、礦渣填料層、二級反硝化層、防滲膜保護層、池體底板層;所述一級反硝化層、二級反硝化層分別設置微電場。
優選的,在上述一種用于污水處理的反硝化濕地中,所述反硝化濕地的總深度為1072~1654mm,所述反硝化濕地的進水流量為4.8~5.5m3/h。
優選的,在上述一種用于污水處理的反硝化濕地中,所述砂石填料層中砂石的鋪設厚度為80~150mm,所述砂石填料層中砂石的粒徑為1~3mm。
優選的,在上述一種用于污水處理的反硝化濕地中,所述一級反硝化層的填料為復合纖維材料與腐殖化污泥顆粒,所述復合纖維材料與腐殖化污泥顆粒的鋪設厚度為180~230mm,所述腐殖化污泥顆粒的體積為復合纖維材料的20~40%。
優選的,在上述一種用于污水處理的反硝化濕地中,所述礦渣填料層中礦渣的鋪設厚度為180~250mm,所述礦渣填料層中礦渣的粒徑為10~20mm。
優選的,在上述一種用于污水處理的反硝化濕地中,所述二級反硝化層的填料為硫化纖維材料,所述硫化纖維的鋪設厚度為200~450mm。
優選的,在上述一種用于污水處理的反硝化濕地中,所述防滲膜保護層從上至下依次為長絲無紡土工布、HDPE防滲膜,所述長絲無紡土工布的鋪設厚度為0.5~1.5mm,所述HDPE防滲膜的鋪設厚度為1.5~2.5mm。
優選的,在上述一種用于污水處理的反硝化濕地中,所述池體底板層中池體底板厚度為180~250mm,所述池體底板層中池體基礎厚度為250~320mm。
優選的,在上述一種用于污水處理的反硝化濕地中,所述一級反硝化層與二級反硝化層中微電場的陰極獨立的為采用石墨電極與磁鐵棒電極并排交替設置,陽極獨立的為不銹鋼管電極,所述陰極和陽極的電極的直徑獨立的為8~12mm;
所述一級反硝化層中微電場的通電時間為晝間持續通電,夜間停止;
所述二級反硝化層中微電場的通電時間為晝間每通電1min停止5min,夜間停止。
優選的,在上述一種用于污水處理的反硝化濕地中,所述反硝化濕地的上方設置散水裝置。
經由上述的技術方案可知,與現有技術相比,本發明具有如下有益效果:
(1)有利于活化水質,為城鎮污水處理廠提標改造提供參考。城鎮污水處理廠出水如果直接排入受納水體,往往由于水質低于功能區要求,對于水體自凈能力要求較高,往往可能形成集中污染源。采用反硝化濕地來實現污水處理反硝化過程,可以直接活化反硝化出水水質,減少污水轉輸過程中滲漏的環境危害度,提高其水體生態修復功能;可以在城鎮污水處理廠內發揮人工濕地的景觀功能,提升廠區景觀美感,為城鎮污水處理廠的提標改造提供思路。
(2)緩解濕地堵塞問題。由于填料具有過濾功能,將其置于人工濕地,能夠有效緩解人工濕地長期運行過程中的堵塞問題,能夠有效延長人工濕地的使用壽命。
(3)一體化程度高,方便管理。本發明將通過反硝化濕地來實現污水處理反硝化過程,形成集成度較高的反硝化+人工濕地組合處理工藝,較傳統預處理工藝+人工濕地的處理模式減少污水傳輸管線,因而提高了土地利用效率,節省污水收集和輸配水系統的建造成本,而且使人工濕地的布置能夠真正與城鎮污水處理廠有機結合,統一管理。
(4)通過反硝化濕地來實現污水處理反硝化過程,從而去除經過氨化及硝化作用后污水中的NO2-和NO3-。此過程既具備缺氧條件下反硝化過程,也具備好氧條件下的反硝化過程,既能實現NO2-向N2轉化,NO3-向N2轉化,同時實現NH4+向N2轉化。
(發明人:張弛;薛博元;尚瑾文茜;榮澤民;畢瑩;陳琳)






