公布日:2023.11.10
申請日:2023.09.25
分類號:C02F3/12(2023.01)I;C02F3/20(2023.01)I;C02F3/34(2023.01)I;B01D65/02(2006.01)I;C02F103/06(2006.01)N;C02F1/44(2023.01)N
摘要
本發明涉及垃圾滲濾液處理技術領域,具體為一種垃圾滲濾液反滲透濃縮液生物脫氮系統及其運行方法,包括混合液儲液槽、海綿塊流化床好氧MBR槽、曝氣系統、處理水儲槽和污泥儲槽;本發明中采用海綿塊生物載體化床好氧膜生物反應裝置,并以含HN-AD菌的好氧污泥為種污泥,富集培養異養硝化-好氧反硝化HN-AD菌群,HN-AD菌群在增殖過程中不斷附著在生物載體和游離于懸浮污泥中,將滲濾液反滲透濃縮液的硝酸鹽轉化為氮氣、實現好氧條件下反滲透濃縮液的HN-AD菌脫氮處理,并且投加的海綿塊生物載體具備孔內固定微生物量大、孔外表面生物膜更新快,孔內附著微生物不容易流失,化學與生物穩定性高的優點,能夠有利于HN-AD菌固著與減少流失。

權利要求書
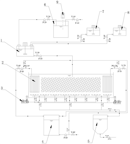
1.一種垃圾滲濾液反滲透濃縮液生物脫氮系統,其特征在于:包括混合液儲液槽(1)、海綿塊流化床好氧MBR槽(2)、曝氣系統(3)、處理水儲槽(4)和污泥儲槽(5);所述海綿塊流化床好氧MBR槽(2)包括槽體(21)、位于槽體(21)中間段的海綿塊生物載體懸浮污泥流化段(22)和位于槽體(21)相對兩側的膜組件固液分離器(23),所述海綿塊生物載體懸浮污泥流化段(22)由含HN-AD菌的好氧污泥液以及投加海綿塊生物載體而構成,所述曝氣系統(3)包括相互獨立的第一曝氣組件(31)和第二曝氣組件(32),所述第一曝氣組件(31)對應海綿塊生物載體懸浮污泥流化段(22)設置,所述第二曝氣組件(32)對應兩側的膜組件固液分離器(23)設置;所述混合液儲液槽(1)用于儲存待處理的混合液;所述海綿塊生物載體懸浮污泥流化段(22)用于對混合液中的硝酸鹽轉化為氮氣,實現生物脫氮處理;所述膜組件固液分離器(23)用于將處理后的混合液中的污泥絮體固相截留、將液相通過膜過濾抽出;所述第一曝氣組件(31)用于對海綿塊生物載體懸浮污泥流化段(22)進行曝氣并使海綿塊生物載體懸浮污泥流化段(22)的污泥絮體呈懸浮態;所述第一曝氣組件(31)用于對膜組件固液分離器(23)進行曝氣并使膜組件固液分離器(23)呈抖動狀態;所述處理水儲槽(4)用于接收膜組件固液分離器(23)過濾得到的處理液,并提供膜組件固液分離器(23)反沖洗的沖洗液;所述污泥儲槽(5)用以接收海綿塊流化床好氧MBR槽(2)中過量的污泥。
2.根據權利要求1所述的一種垃圾滲濾液反滲透濃縮液生物脫氮系統,其特征在于:所述海綿塊生物載體懸浮污泥流化段(22)占槽體(21)整體體積的80%。
3.根據權利要求1所述的一種垃圾滲濾液反滲透濃縮液生物脫氮系統,其特征在于:所述海綿塊生物載體的堆體積占槽體(21)整體體積的20%。
4.根據權利要求1所述的一種垃圾滲濾液反滲透濃縮液生物脫氮系統,其特征在于:還包括均與混合液儲液槽(1)相連通的RO濃縮液儲槽(6)、葡萄糖液儲罐(7)和氨氮儲罐(8),所述RO濃縮液儲槽(6)內設置有第一液位控制器(9);所述RO濃縮液儲槽(6)用于儲存廠區滲濾液處理設備處理得到的RO濃縮液;所述葡萄糖液儲罐(7)用于儲存補充碳源的葡萄糖液;所述氨氮儲罐(8)用于儲存硫酸銨液;所述第一液位控制器(9)用于監測RO濃縮液儲槽(6)內的液體高度。
5.根據權利要求1所述的一種垃圾滲濾液反滲透濃縮液生物脫氮系統,其特征在于:還包括壓力表(10),所述壓力表(10)用于監測膜組件固液分離器(23)出液口的出水泵壓力。
6.根據權利要求1-5任意一項所述的垃圾滲濾液反滲透濃縮液生物脫氮系統的運行方法,其特征在于:包括以下步驟:S1:HN-AD菌污泥培養馴化:按比例將葡萄糖液、硫酸銨液和自來水注入到混合液儲液槽(1)內;將取自填埋場垃圾滲濾液處理設施好氧槽的新鮮污泥液直接裝入槽體(21)中間段,并投加海綿塊生物載體形成海綿塊生物載體懸浮污泥流化段(22);打開第一曝氣組件(31)和第二曝氣組件(32),分別使海綿塊生物載體懸浮污泥流化段(22)的污泥絮體呈懸浮態和使膜組件固液分離器(23)呈抖動狀態;將混合液儲液槽(1)內的混合液注入到海綿塊流化床好氧MBR槽(2)內進水運行2-3周,直到脫氮系統出水的總氮去除率穩定在70%時,HN-AD菌污泥培養馴化階段運行結束;S2:耐鹽HN-AD菌污泥培養馴化:HN-AD菌污泥培養的啟動階段的運行結束后,將混合液儲液槽(1)內的混合液排空,然后按照以下進水工況順序馴化培養耐鹽HN-AD菌污泥:A工況:配制40%反滲透濃縮液與60%自來水的混合液進水運行2周;B工況:配制60%反滲透濃縮液與40%自來水的混合液進水繼續運行2周;C工況:配制80%反滲透濃縮液與20%自來水的混合液進水再繼續運行2周;D工況:用100%反滲透濃縮液的進水運行2-3周,直到脫氮系統出水的總氮去除率穩定在60%-70%時,耐鹽HN-AD菌污泥培養馴化階段結束,系統進入穩定運行階段,并且在每個工況運行期間向混合液儲液槽(1)內投加相應比例的葡萄糖和硫酸銨;S3:系統穩定運行:用100%反滲透濃縮液的進水運行,并且出水達滿足廠區中水回用標準要求;S4:在步驟S1-S3運行過程中,每周檢測一次海綿塊流化床好氧MBR槽(2)內的反應液中的污泥濃度,并且在污泥濃度超過設定的范圍值時,將約10%的污泥液抽送到污泥儲箱(5)。
7.根據權利要求6所述的一種垃圾滲濾液反滲透濃縮液生物脫氮系統,其特征在于:所述脫氮系統的運行過程中采用每日進水5次,每次進水60min的方式進水,采用出水5min,停5min的方式出水,且出水過程中第二曝氣組件(32)的曝氣量調高至1.5倍的第一曝氣組件(31)的曝氣量。
8.根據權利要求6所述的一種垃圾滲濾液反滲透濃縮液生物脫氮系統,其特征在于:在壓力表(10)監測膜組件固液分離器(23)出液口的出水壓力低于設定值時,停止出水并將處理水儲槽(4)內的處理水通過反沖洗管對膜組件固液分離器(23)進行反沖洗,并且采用運行5min、停5min的方式重復三次進行反沖洗。
9.根據權利要求6所述的一種垃圾滲濾液反滲透濃縮液生物脫氮系統,其特征在于:在脫氮系統運行過程中發現海綿塊生物載體外表面被較厚的污泥絮體包埋形成球狀,在氣泡夾帶流化作用下移動困難時,將第一曝氣組件的風量調至最大,用氣泡的剪切作用清除海綿塊生物載體表面污泥層。
10.根據權利要求6所述的一種垃圾滲濾液反滲透濃縮液生物脫氮系統,其特征在于:所述步驟S4中在抽取污泥液時將第一曝氣組件(31)的風量調高使海綿塊生物載體始終懸浮在槽體(21)的中上部。
發明內容
本發明的目的在于提供一種垃圾滲濾液反滲透濃縮液生物脫氮系統及其運行方法,可以有效避免HN-AD容易流失的技術問題,以此提高垃圾滲濾液的反滲透膜濃縮液的除氮效果。
為實現上述目的,本發明提供如下第一種技術方案:
一種垃圾滲濾液反滲透濃縮液生物脫氮系統,包括混合液儲液槽、海綿塊流化床好氧MBR槽、曝氣系統、處理水儲槽和污泥儲槽;
所述海綿塊流化床好氧MBR槽包括槽體、位于槽體中間段的海綿塊生物載體懸浮污泥流化段和位于槽體相對兩側的膜組件固液分離器,所述海綿塊生物載體懸浮污泥流化段由含HN-AD菌的好氧污泥液以及投加海綿塊生物載體而構成,所述曝氣系統包括相互獨立的第一曝氣組件和第二曝氣組件,所述第一曝氣組件對應海綿塊生物載體懸浮污泥流化段設置,所述第二曝氣組件對應兩側的膜組件固液分離器設置;
所述混合液儲液槽用于儲存待處理的混合液;
所述海綿塊生物載體懸浮污泥流化段用于對混合液中的硝酸鹽轉化為氮氣,實現生物脫氮處理;
所述膜組件固液分離器用于將處理后的混合液中的污泥絮體固相截留、將液相通過膜過濾抽出;
所述第一曝氣組件用于對海綿塊生物載體懸浮污泥流化段進行曝氣并使海綿塊生物載體懸浮污泥流化段的污泥絮體呈懸浮態;
所述第一曝氣組件用于對膜組件固液分離器進行曝氣并使膜組件固液分離器呈抖動狀態;
所述處理水儲槽用于接收膜組件固液分離器過濾得到的處理液,并提供膜組件固液分離器反沖洗的沖洗液;
所述污泥儲槽用以接收海綿塊流化床好氧MBR槽中過量的污泥。
優選的,所述海綿塊生物載體懸浮污泥流化段占槽體整體體積的80%。
優選的,所述海綿塊生物載體的堆體積占槽體整體體積的20%。
優選的,還包括均與混合液儲液槽相連通的RO濃縮液儲槽、葡萄糖液儲罐和氨氮儲罐,所述RO濃縮液儲槽內設置有第一液位控制器;
所述RO濃縮液儲槽用于儲存廠區滲濾液處理設備處理得到的RO濃縮液;
所述葡萄糖液儲罐用于儲存補充碳源的葡萄糖液;
所述氨氮儲罐用于儲存硫酸銨液;
所述第一液位控制器用于監測RO濃縮液儲槽內的液體高度。
優選的,還包括壓力表,所述壓力表用于監測膜組件固液分離器出液口的出水泵壓力。
同時,本發明還提供如下第二種技術方案:
一種垃圾滲濾液反滲透濃縮液生物脫氮系統的運行方法,包括以下步驟:
S1:HN-AD菌污泥培養馴化:按比例將葡萄糖液、硫酸銨液和自來水注入到混合液儲液槽內;將取自填埋場垃圾滲濾液處理設施好氧槽的新鮮污泥液直接裝入槽體中間段,并投加海綿塊生物載體形成海綿塊生物載體懸浮污泥流化段;打開第一曝氣組件和第二曝氣組件,分別使海綿塊生物載體懸浮污泥流化段的污泥絮體呈懸浮態和使膜組件固液分離器呈抖動狀態;將混合液儲液槽內的混合液注入到海綿塊流化床好氧MBR槽內進水運行2-3周,直到脫氮系統出水的總氮去除率穩定在70%時,HN-AD菌污泥培養馴化階段運行結束;
S2:耐鹽HN-AD菌污泥培養馴化:HN-AD菌污泥培養的啟動階段的運行結束后,將混合液儲液槽內的混合液排空,然后按照以下進水工況順序馴化培養耐鹽HN-AD菌污泥:
A工況:配制40%反滲透濃縮液與60%自來水的混合液進水運行2周;
B工況:配制60%反滲透濃縮液與40%自來水的混合液進水繼續運行2周;
C工況:配制80%反滲透濃縮液與20%自來水的混合液進水再繼續運行2周;
D工況:用100%反滲透濃縮液的進水運行2-3周,直到脫氮系統出水的總氮去除率穩定在60%-70%時,耐鹽HN-AD菌污泥培養馴化階段結束,系統進入穩定運行階段,并且在每個工況運行期間向混合液儲液槽內投加相應比例的葡萄糖和硫酸銨;
S3:系統穩定運行:用100%反滲透濃縮液的進水運行,并且出水達滿足廠區中水回用標準要求;
S4:在步驟S1-S3運行過程中,每周檢測一次海綿塊流化床好氧MBR槽內的反應液中的污泥濃度,并且在污泥濃度超過設定的范圍值時,將約10%的污泥液抽送到污泥儲箱。
優選的,所述脫氮系統的運行過程中采用每日進水5次,每次進水60min的方式進水,采用出水5min,停5min的方式出水,且出水過程中第二曝氣組件的曝氣量調高至1.5倍的第一曝氣組件的曝氣量。
優選的,在壓力表監測膜組件固液分離器出液口的出水壓力低于設定值時,停止出水并將處理水儲槽內的處理水通過反沖洗管對膜組件固液分離器進行反沖洗,并且采用運行5min、停5min的方式重復三次進行反沖洗。
優選的,在脫氮系統運行過程中發現海綿塊生物載體外表面被較厚的污泥絮體包埋形成球狀,在氣泡夾帶流化作用下移動困難時,將第一曝氣組件的風量調至最大,用氣泡的剪切作用清除海綿塊生物載體表面污泥層。
優選的,所述步驟S4中在抽取污泥液時將第一曝氣組件的風量調高使海綿塊生物載體始終懸浮在槽體的中上部。
與現有技術相比,本發明的有益效果為:
本發明中采用海綿塊生物載體化床好氧膜生物反應裝置,并以含HN-AD菌的好氧污泥為種污泥,富集培養異養硝化-好氧反硝化HN-AD菌群,HN-AD菌群在增殖過程中不斷附著在生物載體和游離于懸浮污泥中,將滲濾液反滲透濃縮液的硝酸鹽轉化為氮氣、實現好氧條件下反滲透濃縮液的HN-AD菌脫氮處理,并且投加的海綿塊生物載體具備孔內固定微生物量大、孔外表面生物膜更新快,孔內附著微生物不容易流失,化學與生物穩定性高的優點,能夠有利于HN-AD菌固著與減少流失;
本發明中的第一曝氣組件對海綿塊生物載體懸浮污泥流化段進行曝氣處理,不僅提高了海綿塊生物載體懸浮污泥流化段內的氧氣含量,同時使海綿塊生物載體懸浮污泥流化段中的污泥絮體呈懸浮態,以此提高海綿塊生物載體懸浮污泥流化段內液體的流動性,從而提高反應效率,而第二曝氣組件使膜組件固液分離器呈抖動狀態,能夠將過濾得到的污泥垢抖落,從而解決膜組件固液分離器容易堵塞的問題。
(發明人:李曉;王小鐸;李林曦;郭亞嬌;王星發;付饒;陳東水;尹勝濤)






