公布日:2024.03.05
申請日:2023.12.12
分類號:E03C1/122(2006.01)I;E03C1/264(2006.01)I;E03C1/266(2006.01)I
摘要
本申請公開了一種防堵型多層污水提升設備,其包括箱體,其側壁上設有進水管,提升泵用于對箱體內的液體進行提升;引流器位于箱體內,且直徑較大的一端套在進水管上并與進水管連通,箱體的側壁上設有與引流器同軸固定的環形凹槽;定位件,其固定在箱體的內壁上,且具有一個圓環,圓環套在引流器上并嵌入在環形凹槽內;粉碎組件安裝于箱體內,引流器上直徑較小的一端活動式插入粉碎組件的入口中,從動齒輪套設于引流器上直徑較大的一端,通過驅動主動齒輪帶動從動齒輪轉動,而帶動引流器旋轉。本申請中通過設置引流、粉碎、提升排污一體化結構,具備固液分離粉碎、污水提升、排水順暢、適應范圍廣、兼容性強、分離性能佳等特點。

權利要求書
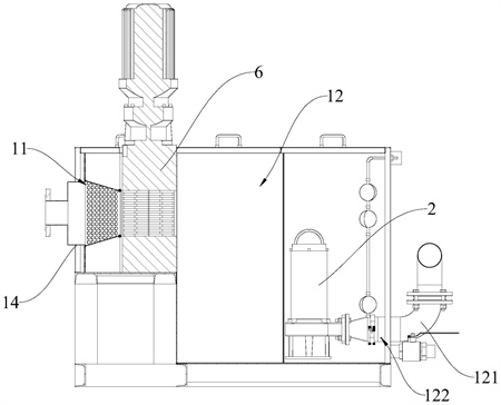
1.一種防堵型多層污水提升設備,其包括:箱體(1),其側壁上設有進水管(14);提升泵(2),所述提升泵(2)用于對所述箱體(1)內的液體進行提升;其特征在于,所述防堵型多層污水提升設備還包括:引流器(3),其呈喇叭狀結構,且所述引流器(3)的側壁上開設有多個過水孔(31);所述引流器(3)位于箱體(1)內,且直徑較大的一端套在進水管(14)上并與進水管(14)連通,所述引流器(3)將箱體(1)的空間劃分為腔體一(11)與腔體二(12),所述箱體(1)的側壁上設有與所述引流器(3)同軸固定的環形凹槽(13);定位件(5),其固定在箱體(1)的內壁上,且具有一個圓環,所述圓環套在所述引流器(3)上并嵌入在所述環形凹槽(13)內;粉碎組件(6),所述粉碎組件(6)安裝于所述箱體(1)內,所述引流器(3)上直徑較小的一端活動式插入所述粉碎組件(6)的入口(62)中;從動齒輪(4),所述從動齒輪(4)套設于所述引流器(3)上直徑較大的一端,并與所述引流器(3)同軸固定;主動齒輪,所述主動齒輪與所述從動齒輪(4)嚙合,用于驅動所述從動齒輪(4)轉動;驅動件,所述驅動件連接所述主動齒輪,通過驅動所述主動齒輪帶動所述從動齒輪(4)轉動,所述從動齒輪(4)的轉動帶動所述引流器(3)相對于所述進水管(14)、所述圓環旋轉。
2.如權利要求1所述的防堵型多層污水提升設備,其特征在于,所述定位件(5)為喉箍。
3.如權利要求2所述的防堵型多層污水提升設備,其特征在于,所述驅動件驅動所述引流器(3)周期性正反轉交替旋轉。
4.如權利要求3所述的防堵型多層污水提升設備,其特征在于,所述進水管(14)插在所述引流器(3)中的一端的直徑與所述引流器(3)相應的一端的直徑之間的差值處于0.1mm~0.5mm范圍內。
5.如權利要求1-4中任一項所述的防堵型多層污水提升設備,其特征在于,所述引流器(3)上直徑小的一端的外側設有插接件(32),所述插接件(32)與所述引流器(3)之間通過軸承(33)連接,所述粉碎組件(6)的入口(62)處設有插接槽(61),所述插接件(32)卡接于所述插接槽(61)內。
6.如權利要求5所述的防堵型多層污水提升設備,其特征在于,所述插接件(32)為卡扣。
7.如權利要求6所述的防堵型多層污水提升設備,其特征在于,所述過水孔(31)的數量為多個,多個所述過水孔(31)呈梅花型布置于所述引流器(3)上,污水適于通過所述過水孔(31)直接進入腔體二(12),雜物適于通過所述粉碎組件(6),所述粉碎組件(6)適于對雜物進行粉碎;所述過水孔(31)的直徑為8mm~15mm。
8.如權利要求7所述的防堵型多層污水提升設備,其特征在于,所述腔體二(12)設有出水管(121),所述出水管(121)的一端連接所述提升泵(2),所述出水管(121)的另一端伸出所述箱體(1)外,所述提升泵(2)適于將所述腔體二(12)內的污水和雜物通過所述出水管(121)排出。
9.如權利要求8所述的防堵型多層污水提升設備,其特征在于,所述出水管(121)上設有多個反沖洗孔(122),所述反沖洗孔(122)呈相對于所述出水管(121)斜向下45°設置。10.如權利要求9所述的防堵型多層污水提升設備,其特征在于:所述反沖洗孔(122)的孔徑為3mm~8mm。
發明內容
為了解決現有污水提升設備因污水瞬時流量大、污水中雜物較多而直接堵塞格柵或固液分離裝置,使其功能失效,造成進水管道堵管爆裂而影響商超環境的技術問題,本發明提供一種防堵型多層污水提升設備。
為達到以上目的,本申請采用的技術方案為:一種防堵型多層污水提升設備,其包括箱體,其側壁上設有進水管;提升泵,所述提升泵用于對所述箱體內的液體進行提升;所述防堵型多層污水提升設備還包括:引流器,其呈喇叭狀結構,且所述引流器的側壁上開設有多個過水孔;所述引流器位于箱體內,且直徑較大的一端套在進水管上并與進水管連通,所述引流器將箱體的空間劃分為腔體一與腔體二,所述箱體的側壁上設有與所述引流器同軸固定的環形凹槽;定位件,其固定在箱體的內壁上,且具有一個圓環,所述圓環套在所述引流器上并嵌入在所述環形凹槽內;粉碎組件,所述粉碎組件安裝于所述箱體內,所述引流器上直徑較小的一端活動式插入所述粉碎組件的入口中;從動齒輪,所述從動齒輪套設于所述引流器上直徑較大的一端,并與所述引流器同軸固定;主動齒輪,所述主動齒輪與所述從動齒輪嚙合,用于驅動所述從動齒輪轉動;驅動件,所述驅動件連接所述主動齒輪,通過驅動所述主動齒輪帶動所述從動齒輪轉動,所述從動齒輪的轉動帶動所述引流器相對于所述進水管、所述圓環旋轉。
作為上述方案的進一步改進,所述定位件為喉箍。
作為上述方案的進一步改進,所述驅動件驅動所述引流器周期性正反轉交替旋轉。
作為上述方案的進一步改進,所述進水管插在所述引流器中的一端的直徑與所述引流器相應的一端的直徑之間的差值處于0.1mm~0.5mm范圍內。
作為上述方案的進一步改進,所述引流器上直徑小的一端的外側設有插接件,所述插接件與所述引流器之間通過軸承連接,所述粉碎組件的入口處設有插接槽,所述插接件卡接于所述插接槽內。
作為上述方案的進一步改進,所述插接件為卡扣。
作為上述方案的進一步改進,所述過水孔的數量為多個,多個所述過水孔呈梅花型布置于所述引流器上,污水適于通過所述過水孔直接進入腔體二,雜物適于通過所述粉碎組件,所述粉碎組件適于對雜物進行粉碎;所述過水孔的直徑為8mm~15mm。
作為上述方案的進一步改進,所述腔體二設有出水管,所述出水管的一端連接所述提升泵,所述出水管的另一端伸出所述箱體外,所述提升泵適于將所述腔體二內的污水和雜物通過所述出水管排出。
作為上述方案的進一步改進,所述出水管上設有多個反沖洗孔,所述反沖洗孔呈相對于所述出水管斜向下45°設置;所述反沖洗孔的孔徑為3mm~8mm。
作為上述方案的另一個實施例,所述引流器可為多個引流板,多個所述引流板對稱地設置于所述粉碎組件的兩側。
進一步地,所述引流板為文丘里管式喇叭狀結構。
與現有技術相比,本申請的有益效果在于:
(1)本發明將污水提升設備能夠實現引流、對雜物進行粉碎以及粉碎后對粉碎的雜物和污水進行提升排出,實現集成一體化結構,占地空間小,適用范圍廣、兼容性強、分離性能佳等特點,與建筑系統排水項目配套使用,減少衛生間污水無序不合規排放,保障建筑物排水安全。
(2)本發明通過設置引流器,具有引流、溢流、降低水頭損失的功能,可將污水中的雜物導向粉碎組件,且污水也能從引流器的過水孔通過并進入粉碎組件的后端儲存待排,特別適合多層衛生間匯管大流量排放需求,能夠滿足多層衛生間立管匯入排水量40-55m3/h提升排放要求。
(3)本發明通過設置定位件、環形凹槽,能夠對引流器直徑較大的一端進行固定,但是不會影響其轉動,且通過插接件以及插接槽能夠對引流器直徑較小的一端進行固定,從而實現對引流器兩端進行限位,能夠保障驅動件通過主動齒輪以及從動齒輪帶動引流器進行旋轉時的穩定性。同時通過驅動件帶動引流器進行正反轉交替旋轉,能夠有效地避免雜物殘留在引流器而出現堵塞的情況。
(4)本發明通過設置粉碎組件,可代替現有技術中的固液分離器、回轉式機械格柵以及人工格柵,能夠直接將多層衛生間污水中混入雜物進行粉碎并與污水一起進入后端的提升區,并在提升組件的作用下對污水和粉碎后的雜物進行排出,無需人工清渣,無需撈取雜物。
(5)設計反沖洗孔,用以自清潔腔體二底部并通過提升泵攪勻后壓力排出,最大程度降低腔體二底部的淤積,減少厭氧臭味產生。
(發明人:王玉峰;馬春梅;吳松;熊友元;李孝振;董小娜;王永敬;金燦)






