曝氣生物濾池(BAF)屬于生物膜法的代表工藝之一,開發之初主要作為市政生活污水處理廠的三級處理工藝,后發展為二級生化處理工藝,目前在工業廢水處理領域應用也較為廣泛。BAF工藝可有效去除氨氮、總氮等污染物,并可在一定程度上應對氯離子和鹽度的沖擊,但存在對進水懸浮物要求高、生物除磷效果有限、進水碳源含量對脫氮效果影響較大等缺點。
我國以BAF工藝作為二級生化處理主工藝的市政生活污水廠數量較多,且正面臨著提標擴容問題,但受濾速、過濾水頭、污染物負荷等因素的限制,BAF工藝原位擴容提標的可挖潛空間小,因此,此類污水處理廠提標擴容時,多考慮將現狀BAF降負荷運行,同步新建污水處理生產線。以采用BAF工藝作為二級生化處理的湖南省某污水處理廠為例,分析其提標擴容改造的新思路。
1、工程概況
該污水處理廠現狀設計規模為2.0×104m3/d,出水水質執行《城鎮污水處理廠污染物排放標準》(GB18918—2002)的一級A標準,現狀處理工藝見圖1。

提標前后設計進、出水水質見表1。

該污水處理廠需提標擴容至3.0×104m3/d(Kz=1.34),出水水質需達到《城鎮污水處理廠污染物排放標準》(GB18918—2002)的一級A標準與《湖南省城鎮污水處理廠主要水污染物排放標準》(DB43/T1546—2018)的二級標準中較嚴值。
1.1 運行現狀分析
該污水處理廠現狀主體處理工藝為兩級低負荷BAF,在運行時存在以下問題:
①BAF內部濾料在反沖洗時易出現跑砂問題,濾料補充量大,需定期補充濾料約60m3/a,年耗損率約8%;
②BAF未設初濾水排放措施,初濾水SS高達15mg/L,出水SS存在超標風險;
③BAF對預處理要求高,進入的大顆粒雜質容易堵塞濾料,由于預處理設備運行不暢,濾池沖洗頻繁,實際運行時反沖洗頻率為1格/6h,影響產水量;
④BAF濾頭及曝氣管等均位于濾料下層,檢修不便。
現狀采用帶式脫水機作為污泥脫水工藝,處理后污泥含水率約80%,無法達到《城鎮污水處理廠污泥處置混合填埋用泥質》(GB/T23485—2009)中污泥含水率<60%的規定,因此需對污泥脫水設備進行升級改造。
污水處理廠現狀實際進、出水水質見表2。

1.2 提標擴容重難點分析
①用地極度緊張
該提標擴容工程需在原污水處理廠內完成,不新征用地。根據《城市污水處理工程項目建設標準》(建標198—2022)規定,出水水質執行一級A標準,規模為3.0×104m3/d的污水處理廠建設總用地不應超過5.25hm(278.75畝)。該項目出水水質高于一級A標準,用地1.762hm(226.43畝),僅為建標198—2022規定用地上限值的46%,且現狀實際可用預留用地僅約為0.41hm(26.1畝),因此此次提標擴容需采用節地高效的污水處理工藝。
②挖潛能力不足,現狀工藝不滿足要求
該污水處理廠實際進水濃度未達到設計水質,其出水水質勉強達到一級A標準,其廠外正在進行管網雨污分流改造,改造完成后進水濃度將較現狀水質有較大幅度的提升,現狀處理工藝出水水質難以滿足此次提標要求。現狀BAF原位擴容提標可挖潛空間小,難以滿足提標擴容要求,因此采用何種提標擴容工藝確保穩定達標是該工程的關鍵。
③地質復雜
該污水處理廠北側為河道,且河道邊為新近堆積土,結構松散,未經固結;另外,污水處理廠地下存在溶洞。可見,該工程整體地質情況復雜,新建建(構)筑物采用何種結構形式亦是難點。
④施工難度大
根據環保政策要求,在建設期間污水不能下河,廠外管網不能發生溢流。該工程用地緊張(見圖2),涉及新建和改造的建(構)筑物較多,地下管線復雜,施工工作面小,實現不停產施工難度極大。如何優化施工時序是該工程不停產施工的重點。

2、方案設計
2.1 提標擴容工藝路線
2.1.1 工藝論證
該提標擴容工程是在一級A標準的基礎上再次提標,對出水COD和NH3-N提出更高的要求,現狀出水水質可穩定達到一級A標準,但COD和NH3-N尚無法滿足《湖南省城鎮污水處理廠主要水污染物排放標準》(DB43/T1546—2018)的二級標準,因此此次提標擴容應重點加強對COD和NH3-N的去除,并解決現狀處理工藝存在的問題。
提標擴容采用的整體工藝路線為“預處理+二級生化處理+深度處理”。結合工程現狀,分別介紹預處理、二級生化處理和深度處理的工藝選擇。
①預處理
現狀預處理工藝為“粗格柵+進水泵房+細格柵+曝氣沉砂池+隔油池+斜管沉淀池+精細格柵”。結合現狀運行情況,提標擴容將預處理工藝調整為“粗格柵+進水泵房+細格柵+曝氣沉砂池”,優化了處理工藝流程,將現狀隔油池和斜管沉淀池留作他用。經復核,現狀細格柵、曝氣沉砂池無法滿足擴容要求,可通過更換設備來提高處理能力。
②二級生化處理
現狀二級生化處理工藝為BAF(DN池+CN池),其原位提標擴容改造挖潛空間小,且運行存在諸多問題。提標擴容若繼續采用BAF作為二級生化處理工藝,經計算,現狀BAF處理負荷須降至1.5×104m3/d運行,且同步新建1.5×104m3/d的BAF池,但現狀預留用地難以滿足用地需求,且現狀BAF工藝運行的問題難以得到解決,出水水質存在超標風險。因此,提標擴容需采用節地高效的污水處理工藝。
常用的高效節地工藝有MBBR、MBR、高濃度復合粉末載體流化床(HPB)等,經初步復核,該項目空余用地內新建生化池停留時間約7h,MBBR雖對AAO工藝有一定的強化作用,但在此停留時間條件下難以保證出水水質穩定達標。MBR工藝可在用地范圍內滿足設計規模及出水標準要求,但MBR前期投資及后期運行成本均較高,且現狀BAF無法利用,存在資產閑置的情況,同時MBR膜通量會隨著使用年限的增加而下降,膜件使用壽命為3~5年,更換成本較高,膜分離及清洗系統復雜,運維難度大。
HPB是一種生化強化技術,具有水力停留時間短(約5~8h)、脫氮除磷效率高、占地小、應用廣泛、運行維護簡單等特點,可與AAO、氧化溝、SBR等多種活性污泥工藝結合,因此提標擴容二級生化處理工藝采用HPB耦合AAO工藝取代現狀BAF,即采用“HPB-AAO生化池+二沉池”。
鑒于預留用地十分有限,無法滿足新建HPBAAO生化池要求,該提標擴容工程通過將現狀隔油池及斜管沉淀池改造為厭氧池,增加生化水力停留時間。另外,現狀預留用地無法滿足新建輻流式二沉池的要求,可采用高效集約的矩形周進周出二沉池以滿足用地要求。
③深度處理為充分利用現狀建(構)筑物,提標擴容工程將現狀二級生化處理構筑物BAF改造為深度處理設施。目前,我國市政生活污水處理廠深度處理工藝多采用“高效沉淀池+濾池”。提標擴容深度處理工藝沿用“高效沉淀池+濾池”,鑒于二級生化處理設施建成后已無深度處理設施建設用地,因此考慮將現狀BAF改造為“斜管沉淀池+砂濾池”,改造后可釋放濾池過濾水頭,充分利用現狀水力高程,無須設置二次中間提升泵站。
2.1.2 工藝流程及總平面布置
提標擴容工藝流程見圖3,總平面布置見圖4。


2.2 主要構筑物及工藝設計
2.2.1 粗格柵及進水泵站(廠外)
現狀粗格柵、進水泵站無法滿足擴容要求,此次擴容需更換設備。現狀粗格柵共2臺,1臺手動格柵,1臺回轉式格柵,此次擴容將手動格柵更換為回轉式格柵;現狀進水泵站共3臺潛污泵,此次擴容更換其中2臺,更換后單臺參數:Q=1075m3/h,H=230kPa,N=132kW。
2.2.2 細格柵、曝氣沉砂池及厭氧池
預處理池分為2組,包含細格柵、曝氣沉砂池、隔油池和斜管沉淀池。由于現狀細格柵運行不佳,此次更換細格柵2臺;曝氣沉砂池共設2組,改造后平均水力停留時間為10.16min,水平流速為0.066m/s;將現狀斜管沉淀池和隔油池改造為厭氧池,水力停留時間為1.0h,有效水深為6.25m,共設2臺立式雙曲面攪拌器,單臺葉輪直徑D=2.0m,N=3.0kW。
2.2.3 缺氧池、好氧池
該工程預留用地較為分散,為提高土地利用率,將缺氧池和好氧池分開建設,并將好氧池有效水深設計為8m,以節省占地面積。此外,還將HPB技術配套的生物載體分離回收系統設置在生化池頂部,用于高效回收復合粉末載體。
缺氧池及好氧池分2組設計,單組設計處理規模為1.5×104m3/d,最低設計水溫12℃,缺氧池水力停留時間1.55h,有效水深5.55m,好氧池水力停留時間4.62h,有效水深8m,生化段總停留時間7.17h。生化池設計污泥濃度7g/L,內回流比200%,外回流比50%~100%,污泥齡20d,有機負荷0.072kgBOD5(/kgMLSS·d),氣水比4.8∶1。
缺氧池設潛水推流器8臺,單臺葉輪直徑D=1400mm,N=2.0kW。好氧池設雙曲面攪拌器11臺,10用1冷備,單臺葉輪直徑D=2.5m、N=4.0kW;混合液回流穿墻泵4臺,2用2備,單臺Q=625m3/h、H=12kPa、N=10kW;微孔盤式曝氣器1120套,單套直徑300mm,工作通氣量1~8m3/h。
生化池投加復合粉末載體共210m3。復合粉末載體材質為無定形SiO2,當量粒徑為20~50μm,比表面積≥50m2/g,堆積密度約0.5g/cm3,真密度為2.0~2.3g/cm3。復合粉末載體初始調試期投加量為3.5t/d,配藥濃度為5%~7%,配藥次數為5次/d。穩定運行后載體日常補充濃度為1~3mg/L,配藥濃度為3%~5%。
好氧池頂部設置生物載體分離回收系統1套,其處理能力為65m3/h,箱體尺寸為6.1m×2.5m,裝機功率為25.5kW,運行功率為13.5kW,載體回收率≥95%。回收系統是將剩余污泥中附著生物膜的復合粉末載體進行分離回收的成套設備,具備雜質過濾、生物載體分離、回收、調蓄、提升、自動清洗等功能。
2.2.4 二沉池及污泥泵站
新建1座二沉池及污泥泵站,設計規模3.0×104m3/d。采用周進周出矩形二沉池,共2組,單組長56.3m,寬12m,有效水深4.5m,平均時表面水力負荷0.93m3(/m2·h),最高時為1.25m3(/m2·h),每組配套1臺非金屬鏈條刮泥機,單臺參數:L×B×H=56.3m×9.15m×4.5m,v=0.3m/min,N=0.18kW,破斷強度>33320N(3400kgf),采用靜壓式排泥,每組沿池長方向設錐形穿孔排泥管7根,通過套筒閥控制污泥的排放。污泥泵站設回流污泥泵3臺,2用1備,單臺參數:Q=700m3/h,H=80kPa,N=30kW,變頻;剩余污泥泵2臺,1用1備,單臺參數:Q=65m3/h,H=150kPa,N=5.5kW。2.
2.5 深度處理綜合池
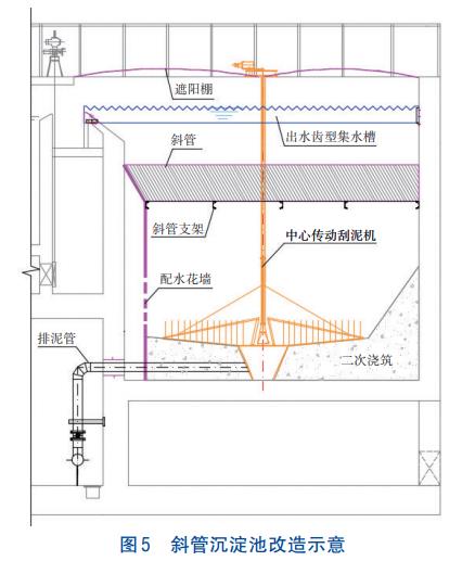
提標擴容深度處理工藝采用“高效沉淀池+濾池”,將現狀BAF改造為“斜管沉淀池+砂濾池”。現狀BAF為DN池和CN池兩級濾池串聯,提標擴容工程將DN池改造為斜管沉淀池,共6格,設計規模為3.0×104m3/d。
具體改造做法見圖5。拆除原有DN反硝化生物濾池的濾板、濾頭、承托層、濾料、反沖洗氣管等,新增斜管、中心傳動刮泥機和排泥系統,改造后斜管沉淀區平均時表面負荷為5.95m3(/m2·h);將CN曝氣生物濾池改造為砂濾池,共6格,設計規模為3.0×104m3/d。具體改造做法:拆除原有CN曝氣生物濾池的曝氣風管、曝氣鼓風機等,更換卵石承托層(粒徑2~4mm,厚150mm),將原有陶粒濾料更換為石英砂濾料(粒徑2~3mm,厚1500mm),更換原有長柄濾頭(濾帽縫隙2mm),改造后砂濾池正常濾速為4.63m3(/m2·h),強制濾速為5.56m3(/m2·h),反沖洗頻率為每12~24h沖洗1格。由于斜管沉淀池由原DN反硝化生物濾池改造,條件有限,因此未設置單獨的混合池及混凝池,除磷藥劑投加在二沉池出水渠,利用管道將藥劑與污水充分混合。

2.2.6 紫外消毒渠
將現狀紫外消毒渠拆除后新建好氧池,并新建紫外消毒渠1座,分為2組,設計規模為3.0×104m3/d。設2套紫外線消毒模塊,每個模塊組64支燈管,紫外線透過率為65%,紫外劑量為26.0mJ/cm2。
2.2.7 污泥脫水車間
現狀污泥脫水工藝為“污泥調理+帶式脫水”,脫泥含水率低于80%。提標擴容改造脫水后污泥含水率需降至60%以下,鑒于現狀污泥脫水車間層高較低,不滿足板框脫水層高要求,且板框脫水自動化程度較低,人工勞動強度較大,提標擴容污泥脫水工藝采用“預濃縮+高壓帶式污泥脫水”。具體改造做法:更換現狀帶式脫水機,新增高壓帶式深度脫水機。濃縮帶式脫水機2臺,單臺帶寬2.0m,功率3.0kW。高壓帶式深度脫水機2臺,單臺處理能力1.5t/h(污泥含水率80%),變頻調節,帶寬1m,功率2.25kW。
2.2.8 加藥間及鼓風機房
將現狀機修車間改造為加藥間及鼓風機房,設計規模為3.0×104m3/d。加藥間包括復合粉末載體、PAC、碳源的儲存、配藥和投加裝置。鼓風機房設磁懸浮鼓風機3臺,2用1備,單臺參數:Q=50m3/min,P=90kPa,N=100kW。
3、不停水施工方案
結合現狀處理工藝實際情況和提標擴容工藝設計,形成以下不停水施工方案思路:
①分組改造,避免全廠停產,減產水量調配至鄰廠;
②將預處理、二級生化處理設施建成后再對現狀BAF池進行改造;
③管道接駁集中實施,縮短工期;
④優先配套輔助設施建設。
根據以上施工思路制定以下不停水施工步驟:
①新建紫外消毒渠、缺氧池、好氧池、二沉池及污泥泵站,并完成相應的管道接駁和遷改,同步改造加藥間、鼓風機房和污泥脫水間。
②對預處理設施分組改造,并完成相應的管道接駁和遷改,實現預處理、HPB-AAO生化池、二沉池和紫外消毒池通水調試、運行,為BAF改造創造停水條件。
③對BAF進行改造,并完成相應的管道接駁和遷改,實現全線通水試運行。
④完成廠區道路、綠化、亮化等其他建設工程。通過以上不停水施工步驟,最終實現了不停水施工改造。
4、設計特點
①用地緊張,拆改立新
提標擴容工程采用“拆舊立新+利舊改造+分散建設+集約池型”的方式大幅提高了空間利用率,在用地十分緊張的情況下實現了提標擴容。設計時主要采取以下節地措施:a.拆除和遷建紫外消毒池以釋放空間新建生化池;b.將現狀隔油池和斜管沉淀池改造為厭氧池,將BAF改造為斜管沉淀池和砂濾池,將現狀機修車間改造為加藥間及鼓風機房;c.將缺氧池和好氧池分散建設;d.采用高效集約的矩形周進周出二沉池。
②工藝創新,優化高程
采用占地小、脫氮除磷效率高、抗沖擊負荷能力強的HPB耦合AAO工藝作為提標擴容工程的二級生化處理主工藝,將現狀二級生化處理主工藝BAF作為深度處理工藝,并將其改造為“斜管沉淀池+砂濾池”,既解決了工程用地緊張問題,又解決了現狀BAF工藝運行存在的諸多問題,可確保提標擴容后達標排放。另外,對現狀BAF的改造實現了深度處理設施的原位擴容,將DN池改造為斜管沉淀池釋放了過濾水頭,避免了污水二次提升,節省了運行費用。在考慮污泥脫水系統升級改造設計時,未沿用應用更為廣泛的濃縮+調理+板框脫水工藝,而采用更為先進的帶式濃縮+高壓帶機脫水工藝,解決了現狀污泥脫水間層高受限問題,實現了污泥連續脫水,減輕了人工勞動強度。
③合理規劃,不停產施工
在提標擴容建設過程中要求“污水廠不停產、廠內污水不下河、廠外管網不溢流、出水達標排放”,但存在新建和改造建(構)筑物較多、施工工作面小、地下管線復雜、管道接駁點位多、地質情況復雜、電纜溝遷改等難題,需合理規劃、優化施工時序。提標擴容工程施工遵循“先新建、后改造”的原則,通過分組改造、減產調水、同步新建、集中接駁、分步通水等措施,合理規劃施工部署,優化施工時序,最終實現不停產施工。
5、運行效果及經濟分析
該污水處理廠提標擴容工程完成后已運行一年,其間最高處理水量為30955m3/d,出水水質穩定達標,實現了預期目標。改造后實際進、出水水質見表3。

該工程總投資為5963.38萬元,其中工程費為4958.64萬元。根據廠區實際運行數據統計,提標擴容工程穩定運行后藥耗(含除磷藥劑、復合粉末載體、脫水藥劑等)和電耗直接運行成本約0.24元/m3。
6、結論
①經實踐驗證,該污水處理廠提標擴容工程完成后處理規模可達3.0×104m3/d,且出水水質穩定達到湖南省地標二級標準,實現了預期目標。
②提標擴容工程采用HPB耦合AAO工藝作為主工藝,將現狀主工藝BAF作為深度處理,且在現狀總用地1.762hm2(26.43畝)、噸水用地0.59m2(/m3·d-1)的情況下完成了廠區所有建(構)筑物的新建與改造,在用地緊張的情況下實現了提標擴容。
③通過分組改造、減產調水、同步新建、集中接駁、分步通水等措施,合理規劃施工部署,優化施工時序,實現了改造期間內不停產不減產的目標。(來源:湖南三友環保科技有限公司)



