申請日2016.05.30
公開(公告)日2016.11.30
IPC分類號C02F9/04; C02F103/10; C02F101/32
摘要
撬裝式含油污水處理裝置。涉及污水處理設備領域。提出了一種結構精巧、易于運輸、使用方便且穩定性好,可有效完成含油污水的凈化處理,實現油、水、泥完全分離的撬裝式含油污水處理裝置。所述隔油箱包括箱體、進水管、隔板、出油管和出水管,通過所述隔板將箱體分隔為進水區和出水區,所述進水管連通至進水區的上部,所述出水管連通至出水區的底部,所述出油管連接在出水區的上部、且高于所述隔板;所述攪拌裝置包括至少兩攪拌混合池,所述儲藥箱中容置有破乳、混凝劑和絮凝劑。所述清水池與污水凈化裝置之間還設有反沖洗管。本實用新型易于撬裝、易于轉運;其從整體上具有結構精巧、易于運輸、分離效果好且處理效率高的特點。
摘要附圖
權利要求書
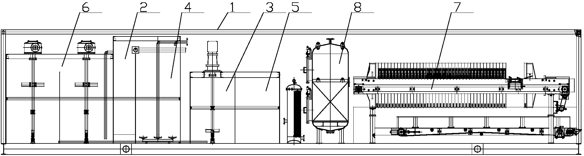
1.撬裝式含油污水處理裝置,其特征在于,設在可撬裝的殼體內,所述處理裝置包括隔油箱、儲油箱、曝氣池、儲藥箱、攪拌裝置、泥水分離裝置、污水凈化裝置和清水池;
所述隔油箱包括箱體、進水管、隔板、出油管和出水管,通過所述隔板將箱體分隔為進水區和出水區,所述進水管連通至進水區的上部,所述出水管連通至出水區的底部,所述出油管連接在出水區的上部、且高于所述隔板;
所述出油管連通所述儲油箱,所述出水管連通所述曝氣池,所述曝氣池中固定連接有微孔曝氣器,所述曝氣池、儲藥箱均與攪拌裝置相連通,所述攪拌裝置與泥水分離裝置相連通,所述泥水分離裝置與污水凈化裝置相連通,所述污水凈化裝置與清水池相連通。
2.根據權利要求1所述的撬裝式含油污水處理裝置,其特征在于,所述攪拌裝置包括至少兩攪拌混合池,所述儲藥箱中容置有破乳、混凝劑和絮凝劑。
3.根據權利要求1所述的撬裝式含油污水處理裝置,其特征在于,所述泥水分離裝置包括污水池、壓濾機、出泥管和壓濾水箱,所述污水池連通在攪拌裝置和壓濾機之間,所述壓濾水箱連通在壓濾機和污水凈化裝置之間,所述出泥管連通在壓濾機遠離污水池的一端。
4.根據權利要求1所述的撬裝式含油污水處理裝置,其特征在于,所述污水凈化裝置包括粗濾過濾器和精濾過濾器,所述粗濾過濾器、精濾過濾器中均設有改性纖維濾料,所述粗濾過濾器中改性纖維濾料的密度小于精濾過濾器中改性纖維濾料的密度。
5.根據權利要求1所述的撬裝式含油污水處理裝置,其特征在于,所述清水池與污水凈化裝置之間還設有反沖洗管。
說明書
撬裝式含油污水處理裝置
技術領域
本實用新型涉及污水處理設備領域。
背景技術
目前,含油污水主要來源于石油、化工、鋼鐵等工業部門,如排放前處理不達標則將嚴重影響周邊環境。對此,國家局與2014年10月22日公布了一份名為“一種含油污水處理裝置”、申請號為“201310138113.3”的中國發明專利申請,該案中的污水將經過過濾器、一級油水分離器和二級油水分離器進行處理。然而,含油污水尤其是油田中產出的含油污水其中含油量、含泥量均較大,且油、水、泥三種物質之間不易分離,因此該案中的簡單技術手段已不足以完成含油污水的有效處理。
發明內容
本實用新型針對以上問題,提出了一種結構精巧、易于運輸、使用方便且穩定性好,可有效完成含油污水的凈化處理,實現油、水、泥完全分離的撬裝式含油污水處理裝置。
本實用新型的技術方案為:設在可撬裝的殼體內,所述處理裝置包括隔油箱、儲油箱、曝氣池、儲藥箱、攪拌裝置、泥水分離裝置、污水凈化裝置和清水池;
所述隔油箱包括箱體、進水管、隔板、出油管和出水管,通過所述隔板將箱體分隔為進水區和出水區,所述進水管連通至進水區的上部,所述出水管連通至出水區的底部,所述出油管連接在出水區的上部、且高于所述隔板;
所述出油管連通所述儲油箱,所述出水管連通所述曝氣池,所述曝氣池中固定連接有微孔曝氣器,所述曝氣池、儲藥箱均與攪拌裝置相連通,所述攪拌裝置與泥水分離裝置相連通,所述泥水分離裝置與污水凈化裝置相連通,所述污水凈化裝置與清水池相連通。
所述攪拌裝置包括至少兩攪拌混合池,所述儲藥箱中容置有破乳、混凝劑和絮凝劑。
所述泥水分離裝置包括污水池、壓濾機、出泥管和壓濾水箱,所述污水池連通在攪拌裝置和壓濾機之間,所述壓濾水箱連通在壓濾機和污水凈化裝置之間,所述出泥管連通在壓濾機遠離污水池的一端。
所述污水凈化裝置包括粗濾過濾器和精濾過濾器,所述粗濾過濾器、精濾過濾器中均設有改性纖維濾料,所述粗濾過濾器中改性纖維濾料的密度小于精濾過濾器中改性纖維濾料的密度。
所述清水池與污水凈化裝置之間還設有反沖洗管。
本實用新型針對油田污水中含油量大、含泥量大的特點,先在隔油箱中分離出漂浮在水體上的大量浮油,再將污水送入曝氣池中通過微孔曝氣器產生的微氣泡進行進一步隔油;在油、水分離后,本案通過加藥攪拌的方式使泥、水更易分離,并在此后送入泥水分離裝置中進行泥水分離;最后,祛除了油、泥的污水將送入污水凈化裝置中進行最終的凈化處理。本實用新型有效解決了油田污水處理難度大的問題,并在處理后有效實現了油、水、泥完全分離,使得最終的凈水符合排放標準;此外,本案將所有部件均容置于殼體內,也使本案易于撬裝、易于轉運;其從整體上具有結構精巧、易于運輸、分離效果好且處理效率高的特點。


