公布日:2023.11.24
申請日:2023.08.25
分類號:C02F9/00(2023.01)I;C02F1/00(2023.01)N;C02F1/24(2023.01)N;C02F1/52(2023.01)N;C02F3/28(2023.01)N;C02F3/30(2023.01)N;C02F11/12(2019.01)N;C02F11
/122(2019.01)N;C02F103/32(2006.01)N
摘要
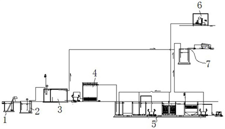
本發明涉及廢水處理技術領域,具體為一種食品加工廢水處理系統,該系統包括格柵提升井、綜合調節池、溶氣氣浮池、UASB耐鹽厭氧池、綜合生化處理單元、風機房、污泥干化處理設備以及用于控制整個系統運行的電控柜控制平臺設備;本發明還提供一種食品加工廢水處理方法。本發明可以將廢水中所含有的各種污染物均能夠較好的降解攔截處理,達到處理后出水達標排放的目標;采用預處理可針對高懸浮物、酸性廢水、含油廢水可起著良好的預處理作用;利用UASB耐鹽生物厭氧處理,使得含鹽廢水能夠適用于本工藝;利用生化系統處理,可廣泛應用于各類型經過預處理后的食品加工廢水,而且投資費用、運行費用較低,且處理高效,適合于廣泛應用。

權利要求書
1.一種食品加工廢水處理系統,其特征在于:該系統包括格柵提升井(1)、綜合調節池(2)、溶氣氣浮池(3)、UASB耐鹽厭氧池(4)、綜合生化處理單元(5)、風機房(6)、污泥干化處理設備(7)以及用于控制整個系統運行的電控柜控制平臺設備;格柵提升井(1)是由提升井體(11)、進水管網(12)、固液分離斜篩(13)以及井體提升泵(14)組成,所述提升井體(11)頂部的一側連通有進水管網(12),該進水管網(12)用于廢水的進水工作;所述提升井體(11)的內部傾斜放置有固液分離斜篩(13),該固液分離斜篩(13)用于顆粒物的攔截工作;所述格柵提升井(1)的內部上還固定有井體提升泵(14),該井體提升泵(14)用于將攔截顆粒物的水通過管道輸送至綜合調節池(2)內部;綜合生化處理單元(5)包括有水解酸化池(51)、高負荷好氧池(52)、生物接觸氧化池(53)以及斜管沉淀池(54),所述水解酸化池(51)、高負荷好氧池(52)、生物接觸氧化池(53)以及斜管沉淀池(54)從左到右依次設置,且水解酸化池(51)與高負荷好氧池(52)、高負荷好氧池(52)與生物接觸氧化池(53)以及生物接觸氧化池(53)與斜管沉淀池(54)之間皆通過管道相通,并且水解酸化池(51)、高負荷好氧池(52)、生物接觸氧化池(53)皆通過風管與風機房(6)相連通;污泥干化處理設備(7)是由污泥濃縮池(71)和污泥壓濾機(72)組合而成,所述污泥壓濾機(72)位于污泥濃縮池(71)的一側,所述污泥濃縮池(71)用于將溶氣氣浮池(3)和斜管沉淀池(54)輸送的污泥進行濃縮,所述污泥壓濾機(72)用于將濃縮的污泥壓濾成泥餅。
2.根據權利要求1所述的一種食品加工廢水處理系統,其特征在于:所述綜合調節池(2)與溶氣氣浮池(3)和溶氣氣浮池(3)與UASB耐鹽厭氧池(4)以及UASB耐鹽厭氧池(4)與綜合生化處理單元(5)之間皆設置有提升泵,該提升泵用于將上一工序處理過的廢水輸送至下一工序內。
3.根據權利要求1所述的一種食品加工廢水處理系統,其特征在于:所述溶氣氣浮池(3)的一側還通過管道設置有混凝藥劑加注口,該混凝藥劑加注口用于對混凝藥劑進行加注工作;所述溶氣氣浮池(3)頂部的一側設置有污泥泵,該污泥泵通過管道將溶氣氣浮池(3)的漂浮物輸送至污泥干化處理設備(7)中。
4.根據權利要求1所述的一種食品加工廢水處理系統,其特征在于:所述高負荷好氧池(52)的一側設置有混合液回流泵(521),且混合液回流泵(521)用于將混合液回流至高負荷好氧池(52)的內部。
5.根據權利要求1所述的一種食品加工廢水處理系統,其特征在于:所述生物接觸氧化池(53)的內部設置有生物載體層(531),該生物載體層(531)用于對廢水中的細菌進行氧化處理。
6.根據權利要求1所述的一種食品加工廢水處理系統,其特征在于:所述斜管沉淀池(54)的內部設置有斜管填料(541),所述斜管沉淀池(54)的一側還設置有斜管污泥泵(542),該斜管污泥泵(542)用于將斜管沉淀池(54)內沉淀的污泥輸送至污泥干化處理設備(7)中,所述斜管沉淀池(54)的頂端還設置有除磷藥劑加注口。
7.根據權利要求1所述的一種食品加工廢水處理系統,其特征在于:所述綜合生化處理單元(5)的最終出水口端連接有排水管口,該排水管口與排放水池相連通,該排水管口用將處理后合格的廢水輸送至排放水池實現規范排放工作。
8.根據權利要求1所述的一種食品加工廢水處理系統,其特征在于:所述污泥濃縮池(71)和污泥壓濾機(72)之間設置有污泥運輸泵,該污泥運輸泵用于將污泥濃縮池(71)內部壓縮的污泥輸送至污泥壓濾機(72)進行壓濾,所述污泥壓濾機(72)的底部還設置有濾液回流口與泥餅外運口,該濾液回流口用于將污泥壓濾機(72)壓濾的濾液回流至綜合調節池(2)中進行廢水處理,而泥餅外運口便于對泥餅的排出外運工作。
9.一種食品加工廢水處理方法,其特征在于,包括如下步驟:S1:食品加工廢水由進水管網(12)收集于提升井體(11)中,利用固液分離斜篩(13)過濾攔截固體懸浮物與油脂,同時在提升井設置曝氣攪拌防止浮渣堵塞硬化,污水通過井體提升泵(14)提升進入綜合調節池(2),污水在綜合調節池(2)中進行混合均勻,而后由提升泵進入溶氣氣浮池(3)中;S2:污水進入溶氣氣浮池(3)后,污水中含有的有機物及懸浮污染物通過混凝藥劑加注口加入藥劑,先進行氣浮化學反應處理,通過加入藥劑產生的作用,將污染物以固體污染物形式沉淀,使得生產污水得到有效的負荷降低,經過初沉池沉淀后由污泥泵經污泥管輸送至污泥干化處理設備(7)中,避免其對生物系統的影響;S3:生產廢水進行預處理后,進入后續的UASB耐鹽厭氧池(4)和綜合生化處理單元(5)中進行有效處理,在綜合生化處理單元(5)處理中通過風機房(6)對其進行供氧,綜合生化處理單元(5)處理后產生的污泥通過斜管污泥泵(542)經污泥管輸送至污泥干化處理設備(7)中,由污泥干化處理設備(7)中的污泥濃縮池(71)壓縮后經污泥運輸泵運輸至污泥壓濾機(72)中壓濾成泥餅外運出,最終污水經過處理后,即可達到相關排放標準。
發明內容
本發明的目的在于提供一種食品加工廢水處理系統及方法,以解決上述背景技術中提出的問題。
為實現上述目的,本發明提供如下技術方案:一種食品加工廢水處理系統,該系統包括格柵提升井、綜合調節池、溶氣氣浮池、UASB耐鹽厭氧池、綜合生化處理單元、風機房、污泥干化處理設備以及用于控制整個系統運行的電控柜控制平臺設備;
格柵提升井是由提升井體、進水管網、固液分離斜篩以及井體提升泵組成,所述提升井體頂部的一側連通有進水管網,該進水管網用于廢水的進水工作;所述提升井體的內部傾斜放置有固液分離斜篩,該固液分離斜篩用于顆粒物的攔截工作;所述格柵提升井的內部上還固定有井體提升泵,該井體提升泵用于將攔截顆粒物的水通過管道輸送至綜合調節池內部;
綜合生化處理單元包括有水解酸化池、高負荷好氧池、生物接觸氧化池以及斜管沉淀池,所述水解酸化池、高負荷好氧池、生物接觸氧化池以及斜管沉淀池從左到右依次設置,且水解酸化池與高負荷好氧池、高負荷好氧池與生物接觸氧化池以及生物接觸氧化池與斜管沉淀池之間皆通過管道相通,并且水解酸化池、高負荷好氧池、生物接觸氧化池皆通過風管與風機房相連通;
污泥干化處理設備是由污泥濃縮池和污泥壓濾機組合而成,所述污泥壓濾機位于污泥濃縮池的一側,所述污泥濃縮池用于將溶氣氣浮池和斜管沉淀池輸送的污泥進行濃縮,所述污泥壓濾機用于將濃縮的污泥壓濾成泥餅。
優選的,所述綜合調節池與溶氣氣浮池和溶氣氣浮池與UASB耐鹽厭氧池以及UASB耐鹽厭氧池與綜合生化處理單元之間皆設置有提升泵,該提升泵用于將上一工序處理過的廢水輸送至下一工序內。
優選的,所述溶氣氣浮池的一側還通過管道設置有混凝藥劑加注口,該混凝藥劑加注口用于對混凝藥劑進行加注工作;所述溶氣氣浮池頂部的一側設置有污泥泵,該污泥泵通過管道將溶氣氣浮池的漂浮物輸送至污泥干化處理設備中。
優選的,所述高負荷好氧池的一側設置有混合液回流泵,且混合液回流泵用于將混合液回流至高負荷好氧池的內部。
優選的,所述生物接觸氧化池的內部設置有生物載體層,該生物載體層用于對廢水中的細菌進行氧化處理。
優選的,所述斜管沉淀池的內部設置有斜管填料,所述斜管沉淀池的一側還設置有斜管污泥泵,該斜管污泥泵用于將斜管沉淀池內沉淀的污泥輸送至污泥干化處理設備中,所述斜管沉淀池的頂端還設置有除磷藥劑加注口。
優選的,所述綜合生化處理單元的最終出水口端連接有排水管口,該排水管口與排放水池相連通,該排水管口用將處理后合格的廢水輸送至排放水池實現規范排放工作。
優選的,所述污泥濃縮池和污泥壓濾機之間設置有污泥運輸泵,該污泥運輸泵用于將污泥濃縮池內部壓縮的污泥輸送至污泥壓濾機進行壓濾,所述污泥壓濾機的底部還設置有濾液回流口與泥餅外運口,該濾液回流口用于將污泥壓濾機壓濾的濾液回流至綜合調節池中進行廢水處理,而泥餅外運口便于對泥餅的排出外運工作。
本發明還提供一種食品加工廢水處理方法,包括如下步驟:
S1:食品加工廢水由進水管網收集于提升井體中,利用固液分離斜篩過濾攔截固體懸浮物與油脂,同時在提升井設置曝氣攪拌防止浮渣堵塞硬化,污水通過井體提升泵提升進入綜合調節池,污水在綜合調節池中進行混合均勻,而后由提升泵進入溶氣氣浮池中;
S2:污水進入溶氣氣浮池后,污水中含有的有機物及懸浮污染物通過混凝藥劑加注口加入藥劑,先進行氣浮化學反應處理,通過加入藥劑產生的作用,將污染物以固體污染物形式沉淀,使得生產污水得到有效的負荷降低,經過初沉池沉淀后由污泥泵經污泥管輸送至污泥干化處理設備中,避免其對生物系統的影響;
S3:生產廢水進行預處理后,進入后續的UASB耐鹽厭氧池和綜合生化處理單元中進行有效處理,在綜合生化處理單元處理中通過風機房對其進行供氧,綜合生化處理單元處理后產生的污泥通過斜管污泥泵經污泥管輸送至污泥干化處理設備中,由污泥干化處理設備中的污泥濃縮池壓縮后經污泥運輸泵運輸至污泥壓濾機中壓濾成泥餅外運出,最終污水經過處理后,即可達到相關排放標準。
與現有技術相比,本發明的有益效果是:
1、食品加工廢水處理系統將廢水中所含有的各種污染物均能夠較好的降解攔截處理,達到處理后出水達標排放的目標;
2、處理系統采用預處理可針對高懸浮物、酸性廢水、含油廢水可起著良好的預處理作用,使得后續生化系統具有良好的銜接,工藝應用范圍擴大;
3、利用UASB耐鹽生物厭氧處理,使得含鹽廢水能夠適用于本工藝,同時UASB厭氧的高效作用,抗污染沖擊負荷,低成本應用;
4、利用生化系統處理,可廣泛應用于各類型經過預處理后的食品加工廢水,投資費用、運行費用較低,且處理高效,適合于廣泛應用;
5、處理系統的控制采用自動化控制系統及遠程控制系統,保障處理效率,運營成本較低。
(發明人:曾德城;柳育龍;趙剛偉)






