申請日2016.05.13
公開(公告)日2016.07.27
IPC分類號E03F5/22; E03F5/14
摘要
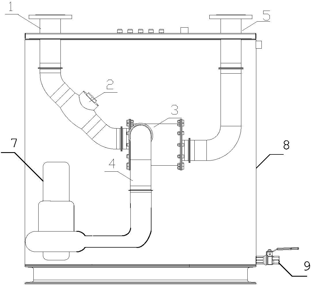
本發明公開了一種污水提升裝置,包括儲水箱、進水管、儲渣筒裝置、第一水泵和出水管;進水管包括豎直段和傾斜段,傾斜段上安裝有止回閥;儲渣筒裝置包括過濾筒和套設在過濾筒外部的殼體,儲渣筒裝置水平設置;進水管通過其傾斜段與過濾筒的進水端連通,過濾筒的出水端與出水管連通;殼體的上部開有溢流孔,儲渣筒裝置通過溢流孔與溢流管連通,溢流管的另一端與第一水泵的出水口連接;儲水箱下部設置有排水管,排水管上設置有閥門。將進水管傾斜設置,使止回閥的防污水回流效果大大提升;將儲渣筒裝置水平設置,相對于進水管和出水管,儲渣筒裝置位于下部,在重力作用下污渣很容易儲存在濾筒內,達到儲渣的效果,防止出水管堵塞。
權利要求書
1.污水提升裝置,其特征在于,包括儲水箱、進水管、儲渣筒裝置、第一水泵和出水管;
所述進水管、第一水泵和出水管設置于儲水箱中,進水管包括豎直段和傾斜段,傾斜段上安裝有止回閥,所述止回閥為單閥板旋啟式止回閥,止回閥包括閥板和閥本體,閥板的上端與閥本體鉸接;
所述儲渣筒裝置包括過濾筒和套設在過濾筒外部的殼體,儲渣筒裝置水平設置,過濾筒與殼體的兩端密封固定連接;所述進水管通過其傾斜段與過濾筒的進水端連通,過濾筒的出水端與出水管連通;
所述殼體的上部開設有溢流孔,儲渣筒裝置通過溢流孔與溢流管連通,溢流管的另一端與第一水泵的出水口連通;
所述儲水箱的下部設置有排水管,排水管上設置有閥門。
2.根據權利要求1所述的污水提升裝置,其特征在于,還包括第二水泵和三通防回流裝置,第一水泵的出水口與三通防回流裝置的第一端口連通,第二水泵的出水口與三通防回流裝置的第二端口連通,三通防回流裝置的第三端口與溢流管遠離儲渣筒裝置的一端連通;所述三通防回流裝置包括三通管、隔板、翻轉板、定位環和壓環,隔板設置于三通防回流裝置的第三端口中,將三通管的第一端口與第二端口隔開,且三通管被隔板隔開的兩部分關于隔板對稱,隔板與三通管的內壁密封固定連接;所述翻轉板呈半圓狀,轉動設置在隔板的端部,且翻轉板的轉軸與隔板平行;所述定位環嵌于三通管出水管的端部,且位于隔板、翻轉板之間,定位環的內徑小于翻轉板的直徑;壓環固定疊加在定位環的端部,且與定位環同心,壓環的內徑大于定位環的內徑且與翻轉板的直徑相等,壓環上開設有卡槽,翻轉板轉動設置于定位環與壓環之間,翻轉板轉軸的端部卡設在卡槽中。
3.根據權利要求2中所述的污水提升裝置,其特征在于,所述儲水箱中設置有隔墻,將儲水箱分割為儲水池和泵坑兩部分,其中,第一水泵、第二水泵設置于泵坑中,第一水泵、第二水泵的進入口通過連接管均與儲水池連通。
4.根據權利要求1-3中任一項所述的污水提升裝置,其特征在于,所述儲水箱上存在一個凹腔,儲渣筒裝置位于凹腔中,且處于儲水箱外部。
5.根據權利要求1所述的污水提升泵站,其特征在于,所述儲水箱中設置有隔墻,將儲水箱分割為儲水池和泵坑兩部分,其中第一水泵設置于泵坑中,第一水泵的進入口通過連接管與儲水池連通。
6.根據權利要求5所述的污水提升裝置,其特征在于,所述儲水箱的上存在一個凹腔,儲渣筒裝置位于凹腔中,且處于儲水箱外部。
7.根據權利要求1-3、5、6中任一項所述的污水提升裝置,其特征在于,所述儲渣筒裝置的進水端高于出水端。
8.根據權利要求1-3、5、6中任一項所述的污水提升裝置,其特征在于,所述進水管傾斜段與水平面的夾角為45度。
9.根據權利要求1-3、5、6中任一項所述的污水提升裝置,其特征在于,所述過濾筒和殼體均為圓筒形,且過濾筒和殼體同軸設置,過濾筒與殼體的兩端均通過法蘭密封固定連接。
說明書
污水提升裝置
技術領域
本發明屬于污水處理技術領域,具體涉及一種污水提升裝置。
背景技術
隨著城市化建設的快速發展,在土地資源日益緊張的現狀下,立體空間的應用越來越廣泛,而地下空間的使用正逐步成為潮流。由于地下廁所等污水的水位低于市政管網,污水無法自行排放到市政管網,需要借助污水提升泵站完成污水的正常排放。目前市場主流產品有兩類:一是采用切割泵,將廁所污物切碎后提升到市政管網,但是國產切割泵質量較差壽命短,進口品牌造價高,生產成本高,且切割泵容易被毛發等異物纏繞,可靠性差;二是采用造價低性能可靠的普通污水泵,通過反沖洗方式將廁所污物排放到市政管網,這種傳統的反沖洗方式過濾網易堵塞,引發設備故障,需要定期清理。
發明內容
本發明的目的在于提供一種污水提升裝置,解決現有技術中污水處理裝置容易被堵塞的技術問題。
為了實現上述目的,本發明專利技術方案如下:
污水提升裝置,包括儲水箱、進水管、儲渣筒裝置、第一水泵和出水管;所述進水管、第一水泵和出水管設置于儲水箱中,進水管包括豎直段和傾斜段,傾斜段上安裝有止回閥,所述止回閥為單閥板旋啟式止回閥,止回閥包括閥板和閥本體,閥板的上端與閥本體鉸接;所述儲渣筒裝置包括過濾筒和套設在過濾筒外部的殼體,儲渣筒裝置水平設置,過濾筒與殼體的兩端密封固定連接;所述進水管通過其傾斜段與過濾筒的進水端連通,過濾筒的出水端與出水管連通;所述殼體的上部開設有溢流孔,儲渣筒裝置通過溢流孔與溢流管連通,溢流管的另一端與第一水泵的出水口連通;所述儲水箱的下部設置有排水管,排水管上設置有閥門。
該污水提升設備的工作過程如下:當混有污渣的污水經過進水管流入儲渣筒裝置時,首先會經過止回閥,由于止回閥安裝在進水管傾斜段上,此時止回閥中的閥板為半開狀,污水、污渣會順利通過止回閥流入過濾筒中,過濾筒上開設密集的孔,污水通過濾筒上的孔流出并存儲在殼體內,污渣留存在過濾筒內;由于儲渣筒裝置水平設置,且相對于進水管和出水管,儲渣筒裝置位于下部,則在重力作用下污渣很容易儲存在濾筒內,現有技術中過濾裝置豎直設置,則不具有儲污渣功能,容易造成出水管堵塞。隨著混有污渣的污水持續從進水管中流入,當殼體中污水水位到達溢流孔的位置時,污水經過殼體上部連通的溢流管、第一水泵流入儲水箱內。當儲水箱內的污水到達設定的水位時,啟動第一水泵,通過第一水泵增壓后的污水經過溢流管流入儲渣筒中,對過濾筒進行反沖洗,如果過濾筒上孔中堵塞有污渣,則經過反沖洗過程能夠將堵塞在過濾筒上孔中污渣沖洗掉,由于止回閥的存在,污水、污渣只能通過儲渣筒裝置的出水端進入到出水管,最后流入市政管網中,達到提升污水的目的;當儲水箱內水位低于設定水位時第一水泵停止工作,儲渣筒裝置中的污水通過殼體上部連通的溢流管再次流入儲水箱內,如此反復。由于每次經過第一水泵加壓的污水流入儲渣筒裝置時,都會對過濾筒進行反沖洗,因此避免了污渣堵塞過濾筒上的孔的問題。當需要定期檢修污水提升泵站時,打開閥門,將儲水箱中的污水通過排水管排出,方便操作人員進行檢修。
單閥板旋啟式止回閥分為帶有彈簧的止回閥和不帶彈簧的止回閥,帶有彈簧的止回閥的閥板在彈簧的作用力下轉動,不帶彈簧的止回閥在閥板的重力作用下轉動;在本發明中,由于流入進水管的污水壓力較低,不足以克服彈簧的彈力使閥板轉動而導致回閥打開,則污水、污渣不能通過進水管流入儲渣筒裝置中,所以本發明中只能使用不帶彈簧的止回閥;而不帶彈簧的止回閥的閥板在自然狀態下由于受重力處于豎直狀態,在現有技術中進水管為豎直安裝,則在污水回流時,污水對止回閥閥板的沖擊力只作用在閥板的下邊緣,且與閥板平行,則回流污水的沖擊不能使閥板轉動且關閉,達不到防止污水回流的效果。而為了克服該問題,本發明中將進水管分為豎直段和傾斜段,止回閥安裝在傾斜段上,這樣則在自然狀態下,雖然止回閥的閥板仍處于豎直狀態,但是閥板與進水管傾斜段的軸線存在夾角,當污水經過進水管流向儲渣筒裝置時,在污水沖擊力作用在閥板上,污水沖擊力的分量與閥板的板面垂直,使閥板從豎直狀態向下旋轉,止回閥被打開,污水流入儲渣筒裝置中;當第一水泵啟動時,儲水箱中的污水被吸入第一水泵中,再經過溢流管進入儲渣筒裝置中,并流向進水端和出水端,流向進水端的污水沖擊止回閥的閥板,污水的沖擊力作用在閥板上,污水沖擊力的分量與閥板的板面垂直,使閥板向上旋轉,關閉進水管,達到防止污水回流的目的。
進一步改進,還包括第二水泵和三通防回流裝置,第一水泵的出水口與三通防回流裝置的第一端口連通,第二水泵的出水口與三通防回流裝置的第二端口連通,三通防回流裝置的第三端口與溢流管遠離儲渣筒裝置的一端連通;所述三通防回流裝置包括三通管、隔板、翻轉板、定位環和壓環,隔板設置于三通防回流裝置的第三端口中,將三通管的第一端口與第二端口隔開,且三通管被隔板隔開的兩部分關于隔板對稱,隔板與三通管的內壁密封固定連接;所述翻轉板呈半圓狀,轉動設置在隔板的端部,且翻轉板的轉軸與隔板平行;所述定位環嵌于三通管出水管的端部,且位于隔板、翻轉板之間,定位環的內徑小于翻轉板的直徑;壓環固定疊加在定位環的端部,且與定位環同心,壓環的內徑大于定位環的內徑且與翻轉板的直徑相等,壓環上開設有卡槽,翻轉板轉動設置于定位環與壓環之間,翻轉板轉軸的端部卡設在卡槽中。
當儲水箱中水位達到設定值時,第一水泵、第二水泵中的一個開啟,如果第一水泵開啟,則污水通過第一水泵增壓后進入三通防回流裝置的三通管中,由于隔板和翻轉板存在,增壓后的污水從三通管第三端口一側流出,同時翻轉板受到污水沖擊被翻轉180度至另一側后擋在定位環上,防止翻轉角度大于180度而落入三通管第三端口另一側的內腔中。翻轉板蓋住另一側的端口防止污水通過此端口流入第二端口中。通過三通管第三端口的污水進入溢流管后流入儲渣筒裝置中。通過設置第一水泵、第二水泵,輪流工作,當一個水泵出現故障,啟動另一個,保證了整個泵站的正常運行,且提高了每個水泵的使用壽命。
進一步改進,所述儲水箱中設置有隔墻,將儲水箱分割為儲水池和泵坑兩部分,其中,第一水泵、第二水泵設置于泵坑中,第一水泵、第二水泵的進入口通過連接管均與儲水池連通。
進一步改進,所述儲水箱上存在一個凹腔,儲渣筒裝置位于凹腔中,且處于儲水箱外部,則儲渣筒裝置不用浸泡在污水中,提高使用壽命,且方便對其進行檢修。
進一步改進,所述儲水箱中設置有隔墻,將儲水箱分割為儲水池和泵坑兩部分,其中第一水泵設置于泵坑中,第一水泵的進入口通過連接管與儲水池連通。這樣則使第一水泵不用浸泡在污水中,減少了污水對水泵的腐蝕,增加了水泵的壽命,且維修方便。
進一步改進,所述儲渣筒裝置的進水端高于出水端,儲渣筒裝置的出水端位于其下部,保證過濾筒下部的污渣能順利流入出水管。
進一步改進,所述進水管傾斜段與水平面的夾角為45度,方便進水管的彎折加工。
進一步改進,所述過濾筒和殼體均為圓筒形,且過濾筒和殼體同軸設置,圓筒形設計使儲渣筒裝置不存在棱角,則能有效防止污渣沉積在儲渣筒裝置角落處。
進一步改進,所述過濾筒與殼體的兩端均通過法蘭密封固定連接,固定牢靠,保證過濾筒和殼體連接強度,且密封性好。
本發明采用上述技術方案具有如下明顯的技術效果:
1、通過第一水泵增壓后的污水經過溢流管流入儲渣筒中,對過濾筒進行反沖洗,因此避免了污渣堵塞過濾筒上的問題。
2、通過將進水管傾斜設置,使止回閥的防污水回流效果大大提升。
3、通過將儲渣筒裝置水平設置,則相對于進水管和出水管,儲渣筒裝置位于下部,則在重力作用下污渣很容易儲存在濾筒內,達到儲渣的效果,防止出水管堵塞。
4、通過設置第一水泵、第二水泵,輪流工作,當一個水泵出現故障,啟動另一個,保證了整個泵站的正常運行,且提高了每個水泵的使用壽命。
5、通過將儲水箱分隔為兩部分,將第一水泵、第二水泵設置于水池外部的泵坑中,則減低了污水對水泵的污染,增加了水泵的壽命,且維修方便。



