申請日2016.05.05
公開(公告)日2016.09.07
IPC分類號E03F5/22
摘要
本實用新型涉及一種一體化污水提升泵站出水口防沉降裝置,包括出水管、彈簧支架及排水沉井,出水管包括通過彎管依次連接的第一至第三直管,第二直管水平設置,第一、第三直管垂直連接在第二直管的兩端,第一直管豎直設置在筒體內,第一直管一端與水泵的出水口連接,另一端穿過頂所述第二直管的一端連接,彈簧支架設置在第二直管的底部用于支撐第二直管,第二直管的另一端通過彎管與第三直管的一端連接,第三直管的另一端伸向排水沉井,排水沉井上設有井蓋。本實用新型結構簡單,維護成本低,通過出水管的第一至第三直管的設計實現出水管可隨泵站同步沉降,避免損壞泵站、出水管及排水管道的問題出現,保證泵站在一定沉降量范圍內仍能正常工作。
權利要求書
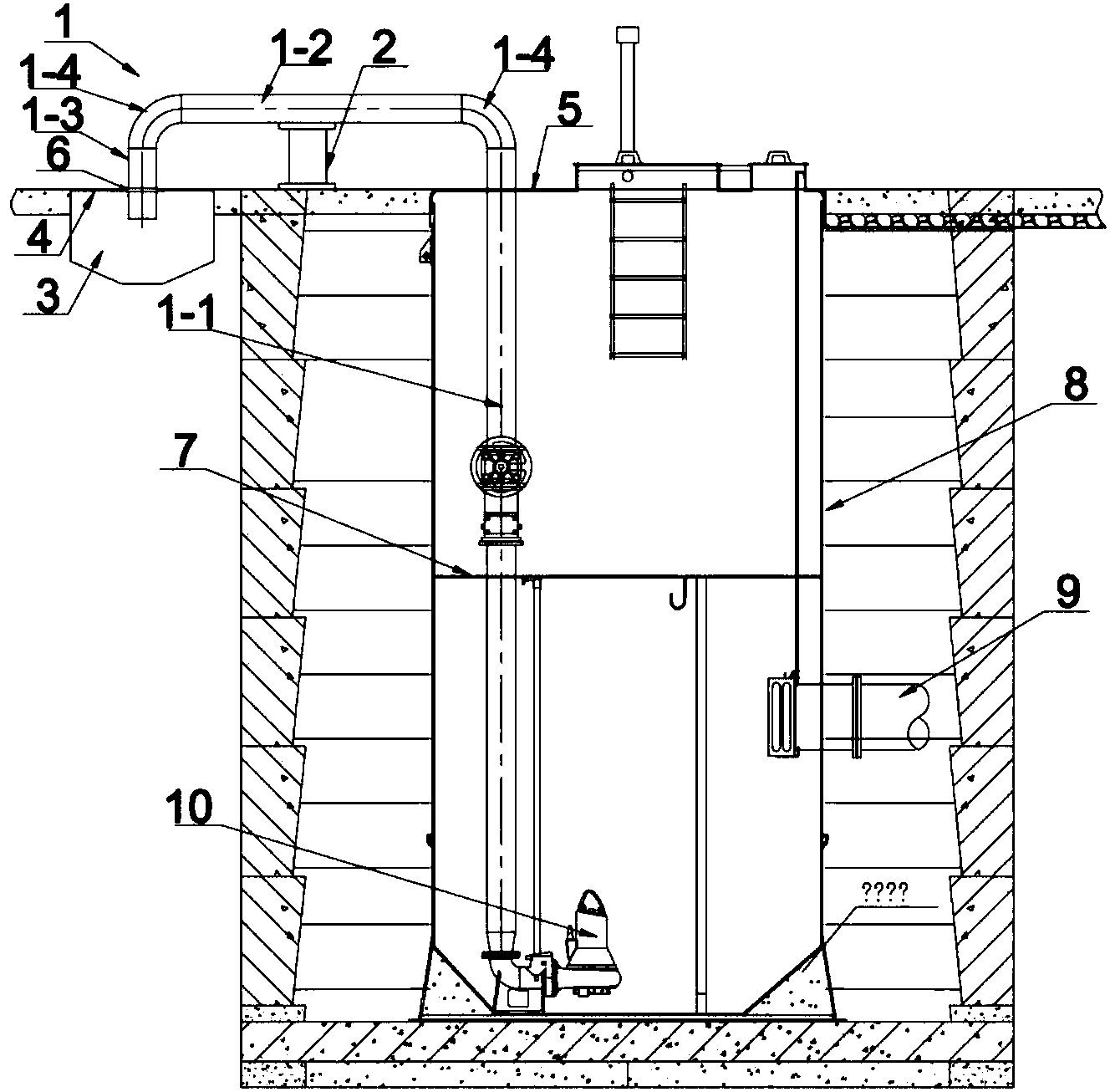
1.一種一體化污水提升泵站出水口防沉降裝置,其特征在于,包括出水管、彈簧支架及設置在基坑一側的排水沉井,所述出水管包括通過彎管依次連接的第一直管、第二直管及第三直管,所述第二直管水平設置,所述第一直管、第三直管垂直連接在所述第二直管的兩端,所述第一直管豎直設置在筒體內,所述第一直管一端與水泵的出水口連接,另一端穿過筒體的頂蓋通過彎管與所述第二直管的一端連接,所述彈簧支架設置在所述第二直管的底部,所述第二直管的另一端通過彎管與所述第三直管的一端連接,所述第三直管的另一端伸向所述排水沉井,所述排水沉井上設有井蓋,所述井蓋上設有用于所述第三直管穿過的通孔。
2.根據權利要求1所述的一體化污水提升泵站出水口防沉降裝置,其特征在于,所述第三直管與所述通孔之間通過密封圈連接。
3.根據權利要求1所述的一體化污水提升泵站出水口防沉降裝置,其特征在于,所述彈簧支架包括彈簧、底板、支撐板、活動板及頂板,所述支撐板固定設置在所述底板上,所述活動板與所述支撐板滑動連接,所述頂板與所述活動板通過螺栓連接,所述螺栓的底端設有壓板,所述彈簧一端與所述底板連接,另一端與所述壓板的底部連接。
說明書
一體化污水提升泵站出水口防沉降裝置
技術領域
本實用新型涉及一種防沉降裝置,尤其涉及一種一體化污水提升泵站出水口防沉降裝置,屬于污水提升排放技術領域。
背景技術
隨著社會經濟的快速發展,來自生活和生產的污水排放越來越多,一旦這些污水隨意排放,就會造成整個環境的嚴重污染,為了匯集處理這些污水,污水提升泵站也就應運而生,且其使用也越來越廣泛。
現有的大多數污水提升泵站一般埋設在地下,其包括安裝在基座上的筒體8、進水管9、出水管1、水泵10、服務平臺7等主要部件,污水提升泵站的筒體的頂部與地面平齊,保持與周圍綠整齊、美觀的效果,同時也方便施工人員及時找到泵站位置下入到泵站的筒體內進行維護,但是當污水提升泵站建造在軟質土壤的基坑內時,隨著長時間使用地基難免發生沉降,由于泵站出水口處的出水管為水平方向設置,出水管的外端與市政污水管網的地下排污管道直接對接,經過污水提升泵站提升后的污水會直接進入到市政污水管網的排污管道中,隨著基座的下降,泵站沉降會向下拉伸出水管,容易造成出水管或者泵站筒體,甚至是市政污水管網的損壞,導致漏水事故,泵站無法正常工作。
實用新型內容
本實用新型針對上述現有技術存在的不足,提供一種一體化污水提升泵站出水口防沉降裝置,其設計的出水管可隨泵站同步沉降,解決了現有出水管在泵站沉降時無法隨之下降損壞出水管、泵站及排污管道的現象。
本實用新型解決上述技術問題的技術方案如下:一種一體化污水提升泵站出水口防沉降裝置,包括出水管、彈簧支架及設置在基坑一側的排水沉井,所述出水管包括通過彎管依次連接的第一直管、第二直管及第三直管,所述第二直管水平設置,所述第一直管、第三直管垂直連接在所述第二直管的兩端,所述第一直管豎直設置在筒體內,所述第一直管一端與水泵的出水口連接,另一端穿過筒體的頂蓋通過彎管與所述第二直管的一端連接,所述彈簧支架設置在所述第二直管的底部用于支撐第二直管,所述第二直管的另一端通過彎管與所述第三直管的一端連接,所述第三直管的另一端伸向所述排水沉井,所述排水沉井上設有井蓋,所述井蓋上設有用于所述第三直管穿過的通孔。排水沉井四周用混凝土澆筑,防止排水沉井變形。
進一步的,所述第三直管與所述通孔之間通過密封圈連接。密封圈可采用橡膠材質,密封圈的彈性收縮會夾住第三直管,防止污水從排水沉井中泄露出來污染環境。
進一步的,所述彈簧支架包括彈簧、底板、支撐板、活動板及頂板,所述支撐板固定設置在所述底板上,所述活動板與所述支撐板滑動連接,所述頂板與所述活動板通過螺栓連接,所述螺栓的底端設有壓板,所述彈簧一端與所述底板連接,另一端與所述壓板的底部連接。彈簧支架用于支撐泵站出水管的第二直管,在泵站沉降時會被泵站出水管的第二直管壓縮,可根據彈簧支架被壓縮的位置來判斷泵站沉降量,通過設置在彈簧支架旁邊的刻度尺進行數據讀取,若彈簧支架被壓縮到預設位置時,沉降嚴重,就需要人為進行處理,以便保證泵站的正常運行。
泵站隨基座沉降時,由于出水管的第一直管垂直向上穿過泵站的頂蓋相當于與泵站是一個整體,因而可隨泵站一體下沉,排水沉井保持不動,排水沉井的井蓋與泵站出水管的第三直管在豎直方向上相對滑動,而彈簧支架在泵站沉降時會被泵站出水管的第二直管壓縮,可根據彈簧支架被壓縮的位置來判斷泵站沉降量,若彈簧支架被壓縮到預設位置時,沉降嚴重,就需要人為進行處理,以便保證泵站的正常運行。
本實用新型的有益效果是:將泵站出水口處的出水管由水平直接外接地面以下市政排污管道修改為與水泵出水口直接連接的豎直向上的第一直管,然后第一直管通過彎管連接水平設置的第二直管,然后再通過彎管連接豎直向下的第三直管,經過本實用新型出水管的設計實現了經過水泵出水口的水豎直向上穿過泵站頂蓋后然后水平方向流動最后垂直向下旋轉180°進入到排水沉井中,排水沉井與出水管采用活動連接,當泵站沉降時,出水管會隨著泵站整體向下運動,由于出水管與排水沉井連接處是豎直方向直管,故不會在出現拉扯出水管的現象,防止對泵站及污水排水管道的損壞;此外排水沉井的設計使得排水沉井內的污水可以靠自身重力自然流入到市政污水管網的地下排污管道內,節約能源。總之,本實用新型結構簡單,維護成本低,通過出水管的第一至第三直管的設計實現出水管可隨泵站同步沉降,避免損壞泵站、出水管及排水管道的問題出現,保證泵站在一定沉降量范圍內仍能正常工作。



