申請日2013.09.16
公開(公告)日2014.02.12
IPC分類號C02F9/14; C02F1/44; C02F1/52
摘要
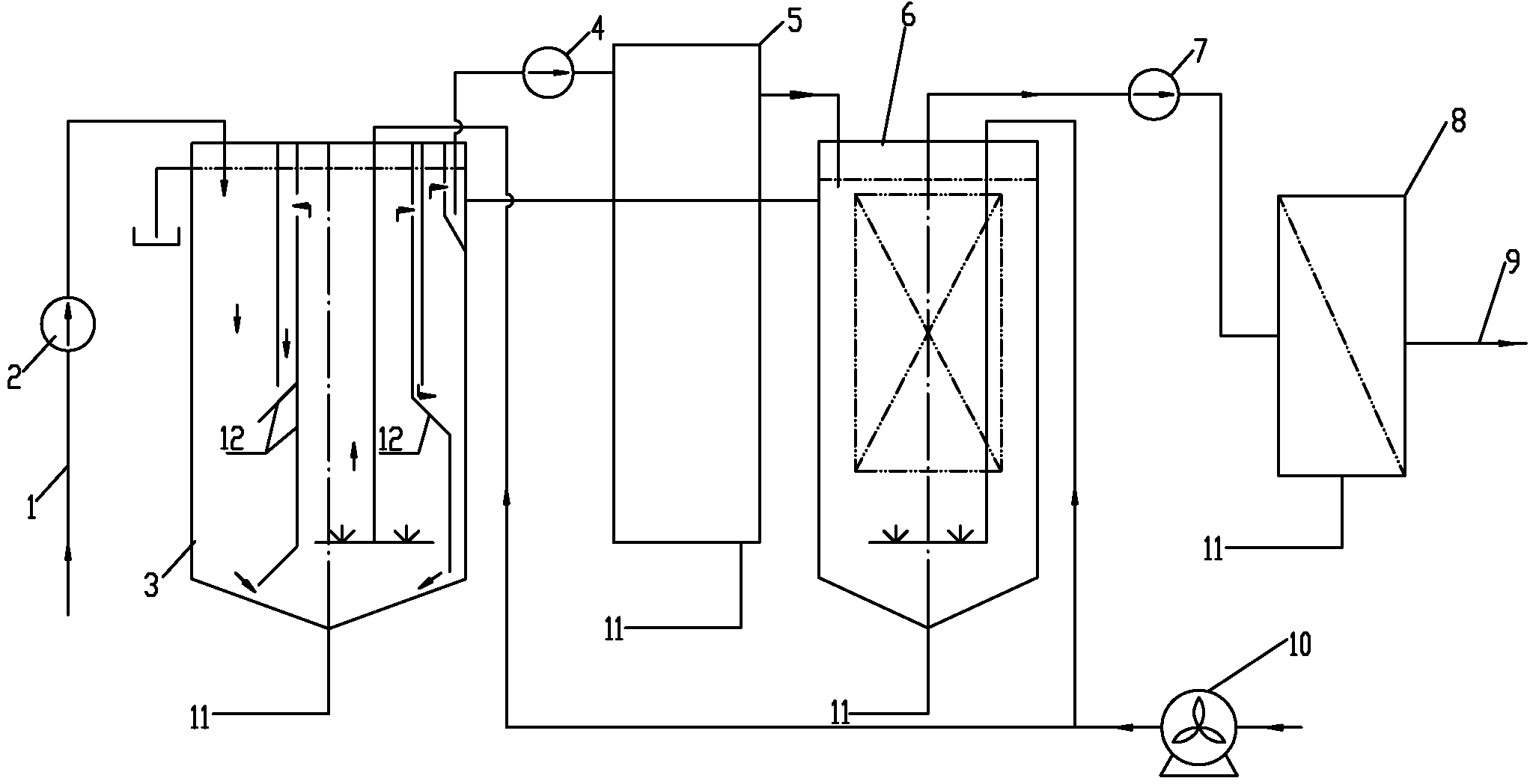
本實用新型一種回用于工業循環冷卻水的城市污水深度處理系統,其包含依序連接的污水進水管道、第一輸送泵、厭氧/好氧反應器、第二輸送泵、絮凝器、浸沒式膜生物反應器、第三輸送泵、反滲透水處理裝置,反滲透處理裝置連接出水口,出水口連接循環冷卻水使用裝置;該厭氧/好氧反應器、與浸沒式膜生物反應器連接空壓機。該厭氧/好氧反應器內壁設有若干向下傾斜的導流板。本實用新型的有益效果如下:本實用新型既具有浸沒式膜生物反應器節省能耗的優點,又具有分離式膜生物反應器不易污堵的優點,整體結構簡單緊湊,污水的脫氮除磷處理效果好,運行成本低,有利于大規模推廣和使用。
權利要求書
1.一種回用于工業循環冷卻水的城市污水深度處理系統,其特征在于,其包含依序連接的污水進水管道、第一輸送泵、厭氧/好氧反應器、第二輸送泵、絮凝器、浸沒式膜生物反應器、第三輸送泵、反滲透水處理裝置,反滲透處理裝置連接出水口,出水口連接循環冷卻水使用裝置;
該厭氧/好氧反應器、與浸沒式膜生物反應器連接空壓機。
2.如權利要求1所述的回用于工業循環冷卻水的城市污水深度處理系統,其特征在于,該厭氧/好氧反應器內壁設有若干向下傾斜的導流板。
說明書
回用于工業循環冷卻水的城市污水深度處理系統
技術領域
本實用新型有關一種污水處理系統,特別是應用于工業循環冷卻水的污水處理系統。
背景技術
把二級處理的城市污水用于循環冷卻水,西方早在本世紀四十年代初就有實踐。南非約翰內斯堡的奧蘭多(Orlando)電站、凱爾文(Kelvin) A電站和凱爾文B電站,它們的容量分別是30×104、18×104和42 × 104kW,投產日期分別為1942、1957和1963年。這三個電站都使用經過二級處理的城市污水作循環冷卻水的補充水,總用水量曾為58000m3/d。
截至2013年3月底,全國設市城市、縣累計建成城鎮污水處理廠3451座,污水處理能力約1.45億立方米/日,較2012年底新增污水處理廠111座,新增處理能力約300萬立方米/日。城市污水的處理率己達到30%。若全國污水回用率達到10%,則年回用量可達50億m3,按正常年份城市缺水量為60億m3,則年回用量是正常年份城市缺水量的的83%。
針對我國的經濟現狀,城市污水回用不僅要從水質、水量以及技術上來考慮,其經濟性將直接決定它的推廣應用價值。目前城市污水二級處理投資在900-1400元/m3,在此基礎上的再處理費用為400-600元/m3,加上管網配套總計600-1 000元/m3,則40億m3水源的投資在100億元左右。而同樣規模的長距離引水,以大連引英為例,則需600億元左右,海水淡化需1 000億元,可見污水回用在經濟上是有優勢的。如華能北京熱電廠(高碑店電廠)在使用城市污水再生回用水時,基建投資約260元/m3,制水成本為0.30-0.35元/m3,而使用新鮮水則分別為1 701元/m3,由此不難看出污水回用的經濟優勢。
從長遠的角度來看,城市污水回用是十分經濟的。同時,污水處理廠多建在城郊,且一般都建有蓄水池用以調節水量和保證工藝的正常運行,水量穩定,受季節的影響較小。因此,將二級城市污水深度處理后回用作冷卻水,具有相當的經濟性和可行性。尤其是在我國水資源日益緊缺的北方地區具有特別重要的意義。
針對城市污水二級處理排放氨氮含量較高的水質的我們提出本實用新型的系統。
實用新型內容
本實用新型所解決的技術問題在于提供一種新型的城市污水處理系統,其回用于工業循環冷卻水。
本實用新型為達上述目的,所采用的主要技術手段在于:一種回用于工業循環冷卻水的城市污水深度處理系統,其包含依序連接的污水進水管道、第一輸送泵、厭氧/好氧反應器、第二輸送泵、絮凝器、浸沒式膜生物反應器、第三輸送泵、反滲透水處理裝置,反滲透處理裝置連接出水口,出水口連接循環冷卻水使用裝置;該厭氧/好氧反應器、與浸沒式膜生物反應器連接空壓機。該厭氧/好氧反應器內壁設有若干向下傾斜的導流板。
本實用新型的有益效果如下:本實用新型既具有浸沒式膜生物反應器節省能耗的優點,又具有分離式膜生物反應器不易污堵的優點,整體結構簡單緊湊,污水的脫氮除磷處理效果好,運行成本低,有利于大規模推廣和使用。







