公布日:2023.08.01
申請日:2023.05.11
分類號:B08B15/02(2006.01)I;B01D35/00(2006.01)I;B01D25/21(2006.01)I;B08B15/04(2006.01)I
摘要
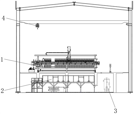
本發明屬于臭氣處理技術領域,且公開了一種用于板框壓濾設備的臭氣隔離裝置,包括壓濾機,所述壓濾機的下表面固定連接有壓濾平臺,所述壓濾平臺的下方設置有污泥餅儲存料倉,所述污泥餅儲存料倉的內部設置有儲氣罐,所述壓濾平臺的外側面固定連接有固定架,所述固定架的內側面固定連接有滑軌,所述滑軌上滑動連接有起重機;所述壓濾機包括壓濾設備本體,所述壓濾平臺的上表面固定連接有隔離罩,所述壓濾設備本體位于隔離罩的內部,所述隔離罩的內側面固定連接有若干個臭氣收集管道。本發明通過隔離罩和臭氣收集管道將污泥壓濾脫水過程中產生的臭氣進行有效隔離和收集,避免空間浪費,同時有效的控制臭氣的排放。

權利要求書
1.一種用于板框壓濾設備的臭氣隔離裝置,包括壓濾機(1),其特征在于:所述壓濾機(1)的下表面固定連接有壓濾平臺(9),所述壓濾平臺(9)的下方設置有污泥餅儲存料倉(2),所述污泥餅儲存料倉(2)的內部設置有儲氣罐(3),所述壓濾平臺(9)的外側面固定連接有固定架,所述固定架的內側面固定連接有滑軌,所述滑軌上滑動連接有起重機(4);所述壓濾機(1)包括壓濾設備本體,所述壓濾平臺(9)的上表面固定連接有隔離罩(7),所述壓濾設備本體位于隔離罩(7)的內部,所述隔離罩(7)的內側面固定連接有若干個臭氣收集管道(5),所述臭氣收集管道(5)上開設有若干個管道風口(6),所述隔離罩(7)上開設有檢修洞口(8)。
2.根據權利要求1所述的用于板框壓濾設備的臭氣隔離裝置,其特征在于:所述隔離罩(7)的內壁夾角處固定連接有斜撐(12),所述隔離罩(7)的內壁固定連接有管道支架(10),所述管道支架(10)與臭氣收集管道(5)固定連接,所述臭氣收集管道(5)通過管道支架(10)與隔離罩(7)固定連接,所述壓濾設備本體上設置有板框體(11)。
3.根據權利要求1所述的用于板框壓濾設備的臭氣隔離裝置,其特征在于:所述隔離罩(7)上固定連接有滑動門(13),所述隔離罩(7)的上表面開設有若干個檢修洞口(8),所述檢修洞口(8)位于壓濾設備本體的正上方。
4.根據權利要求3所述的用于板框壓濾設備,其特征在于:所述滑動門(13)上設置有滑門滾輪(131),所述滑動門(13)包括有可推動的門體,所述推動的門體通過滑門滾輪(131)滑動。
5.根據權利要求1所述的用于板框壓濾設備的臭氣隔離裝置,其特征在于:所述臭氣收集管道(5)的外壁固定連接有加強邊框(51),所述加強邊框(51)與管道支架(10)固定連接。
6.根據權利要求1所述的用于板框壓濾設備的臭氣隔離裝置,其特征在于:所述檢修洞口(8)包括拉伸角鋼(81),所述拉伸角鋼(81)的兩端外表面分別固定連接有角鋼滾輪(83),所述角鋼滾輪(83)的外側面轉動連接有邊框角鋼(82),所述邊框角鋼(82)上開設有槽孔,所述邊框角鋼(82)上的槽孔內貫穿有軟繩線(822),所述軟繩線(822)上設置有軟繩結扣(821),所述軟繩結扣(821)位于槽孔處。
7.根據權利要求1所述的用于板框壓濾設備的臭氣隔離裝置,其特征在于:所述臭氣收集管道(5)上開設有若干個第一通風口(54),所述臭氣收集管道(5)上開設有第二通風口(52),所述臭氣收集管道(5)上開設有第三通風口(53)。
8.根據權利要求1所述的用于板框壓濾設備的臭氣隔離裝置,其特征在于:所述隔離罩(7)由方鋼骨架和帶柔性的透明塑料板組成,所述管道風口(6)上的支管內設置有手動蝶閥。
9.根據權利要求6所述的用于板框壓濾設備的臭氣隔離裝置,其特征在于:所述第二通風口(52)、第三通風口(53)與第一通風口(54)的內部均設置有鋼絲網,所述第三通風口(53)與污泥餅儲存料倉(2)相互連通。
10.一種臭氣隔離裝置的收集方法,其特征在于,收集步驟包括:S1:壓濾設備工作,對泥漿進行壓濾;S2:壓濾后,污泥餅下漏在污泥餅儲存料倉(2)的內部,污泥餅儲存料倉(2)的區域四周設置有臭氣收集管道(5),臭氣通過臭氣收集管道(5)排走,將臭氣隔離和集中的收集起來。
發明內容
(一)解決的技術問題
為解決上述背景技術中提出的問題,本發明提供了一種用于板框壓濾設備的臭氣隔離裝置及其收集方法,解決了臭氣不能得到有效的收集與處理,對環境產生不利影響的問題。
(二)技術方案
為實現上述目的,本發明提供如下技術方案:一種用于板框壓濾設備的臭氣隔離裝置,包括壓濾機,所述壓濾機的下表面固定連接有壓濾平臺,所述壓濾平臺的下方設置有污泥餅儲存料倉,所述污泥餅儲存料倉的內部設置有儲氣罐,所述壓濾平臺的外側面固定連接有固定架,所述固定架的內側面固定連接有滑軌,所述滑軌上滑動連接有起重機;
所述壓濾機包括壓濾設備本體,所述壓濾平臺的上表面固定連接有隔離罩,所述壓濾設備本體位于隔離罩的內部,所述隔離罩的內側面固定連接有若干個臭氣收集管道,所述臭氣收集管道上開設有若干個管道風口,所述隔離罩上開設有檢修洞口。
優先地,所述隔離罩的內壁夾角處固定連接有斜撐,所述隔離罩的內壁固定連接有管道支架,所述管道支架與臭氣收集管道固定連接,所述臭氣收集管道通過管道支架與隔離罩固定連接,所述壓濾設備本體上設置有板框體。
優先地,所述隔離罩上固定連接有滑動門,所述隔離罩的上表面開設有若干個檢修洞口,所述檢修洞口位于壓濾設備本體的正上方。
優先地,所述滑動門上設置有滑門滾輪,所述滑動門包括有可推動的門體,所述推動的門體通過滑門滾輪滑動。
優先地,所述臭氣收集管道的外壁固定連接有加強邊框,所述加強邊框與管道支架固定連接。
優先地,所述檢修洞口包括拉伸角鋼,所述拉伸角鋼的兩端外表面分別固定連接有角鋼滾輪,所述角鋼滾輪的外側面轉動連接有邊框角鋼,所述邊框角鋼上開設有槽孔,所述邊框角鋼上的槽孔內貫穿有軟繩線,所述軟繩線上設置有軟繩結扣,所述軟繩結扣位于槽孔處。
優先地,所述臭氣收集管道上開設有若干個第一通風口,所述臭氣收集管道上開設有第二通風口,所述臭氣收集管道上開設有第三通風口。
優先地,所述隔離罩由方鋼骨架和帶柔性的透明塑料板組成,所述管道風口上的支管內設置有手動蝶閥。
優先地,所述第二通風口、第三通風口與第一通風口的內部均設置有鋼絲網,所述第三通風口與污泥餅儲存料倉相互連通。
一種臭氣隔離裝置的收集方法,收集步驟包括:
S1:壓濾設備工作,對泥漿進行壓濾;
S2:壓濾后,污泥餅下漏在污泥餅儲存料倉的內部,污泥餅儲存料倉區域四周設置有臭氣收集管道,臭氣通過臭氣收集管道排走,將臭氣隔離和集中的收集起來。
(三)有益效果
與現有技術相比,本發明的有益效果如下:
本發明通過隔離罩和臭氣收集管道將污泥壓濾脫水過程中產生的臭氣進行有效隔離和收集;將除臭管道設在巡檢平臺上方,大幅度保障工人作業區域的工作質量,同時可利用板框壓濾設備作為平臺,方便對除臭管道進行檢修;隔離罩設檢修口,保障航吊輔助設備的檢修;對污泥餅料倉和板框壓濾設備設兩種隔離罩,避免隔離罩過高而不穩定;除臭支架和隔離罩立柱有效結合,避免空間浪費,本專利節約空間,節約成本,同時有效的控制臭氣的排放。
(發明人:齊永勝;郭躍華;張曉峰;劉文斌;劉春銀;何文凱)






