申請日2017.10.10
公開(公告)日2017.12.22
IPC分類號C02F9/08
摘要
本發明公開了一種乳化液廢水處理移動設備及工藝及系統,乳化液廢水處理移動設備包括:設有容置空間的車廂,以及承載車廂移動的驅動系統;容置空間內設有依次流體地聯接的破乳絮凝子系統、曝氣子系統、光電催化子系統、過濾子系統,使得待處理廢水依次流經破乳絮凝子系統、曝氣子系統、光電催化子系統、過濾子系統。本發明創造性地提供了一種移動式乳化液廢水處理裝置,對乳化液廢水具有良好的處理效果,且本發明的移動設備可供不同廠家使用,從而降低了本移動設備的空閑時間,提高了本移動設備的利用率,流動性的上門服務也提高了排污企業的服務體驗。
權利要求書
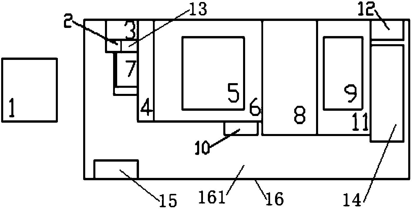
1.一種乳化液廢水處理移動設備,其特征在于,包括:
設有容置空間的車廂,以及承載所述車廂移動的驅動系統;
所述容置空間內設有依次流體地聯接的破乳絮凝子系統、曝氣子系統、光電催化子系統、過濾子系統,使得待處理廢水依次流經所述破乳絮凝子系統、所述曝氣子系統、所述光電催化子系統、所述過濾子系統。
2.根據權利要求1所述的乳化液廢水處理移動設備,其特征在于,還包括:
控制子系統,其與所述破乳絮凝子系統通訊連接。
3.根據權利要求2所述的乳化液廢水處理移動設備,其特征在于,還包括:
用于檢測待處理廢水的進水檢測子系統,其與所述控制子系統通訊連接;
和/或,
用于檢測經所述過濾子系統處理后的待處理廢水的出水檢測子系統,其與所述控制子系統通訊連接。
4.根據權利要求1所述的乳化液廢水處理移動設備,其特征在于:
所述破乳絮凝子系統包括混合器、破乳劑投放器和絮凝劑投放器,沿待處理廢水的流動方向,所述破乳劑投放器和所述絮凝劑投放器依次設于所述混合器處;
和/或,
所述曝氣子系統包括第一曝氣區和第一膜濾區,所述第一曝氣區和所述第一膜濾區之間設有溢流堰,使得所述第一曝氣區的待處理廢水通過所述溢流堰的上方流入所述第一膜濾區;
和/或,
所述過濾子系統包括第二曝氣區和第二膜濾區,使得待處理廢水經所述第二曝氣區處理后,流入所述第二膜濾區。
5.根據權利要求1-4任意一項所述的乳化液廢水處理移動設備,其特征在于,
還包括:
廢氣處理子系統,其分別與所述曝氣子系統和所述光電催化子系統流體地聯接;
和/或,
第一提升子系統,其用于將待處理廢水提升至所述破乳絮凝子系統;
和/或,
油收集子系統,其與所述曝氣子系統連接;
和/或,
沉積物收集子系統,其分別與所述曝氣子系統、所述光電催化子系統、所述過濾子系統連接;
和/或,
緩沖子系統,其與所述過濾子系統流體地聯接,用于存儲經所述過濾子系統處理后的出水;
和/或,
所述過濾子系統和所述曝氣子系統設有回流子系統;
和/或,
所述曝氣子系統和所述光電催化子系統之間設有第二提升子系統;
和/或,
膜濾子系統,其沿待處理廢水的流動方向設于所述過濾子系統的后方。
6.一種乳化液廢水處理工藝,其特征在于,包括步驟:
S100,破乳絮凝處理:待處理廢水流入破乳絮凝子系統,并沿待處理廢水的流動方向,于所述破乳絮凝子系統處依次投放第一預設比例的破乳劑和第二預設比例的絮凝劑;
S200,曝氣-氣浮處理,待處理廢水流入曝氣子系統,于所述曝氣子系統內進行曝氣處理;
S300,光電催化處理,待處理廢水流入光電催化子系統進行處理;
S400,過濾處理,待處理廢水流入過濾子系統進行處理。
7.根據權利要求6所述的乳化液廢水處理工藝,其特征在于:
步驟S400還包括步驟:
S410,二次曝氣處理:對所述過濾子系統內的待處理廢水進行曝氣處理;
S420,第二膜濾處理:對所述過濾子系統內的待處理廢水進行膜濾處理。
8.根據權利要求6或7所述的乳化液廢水處理工藝,其特征在于:
步驟S100之前還包括步驟:
S010,進水檢測:檢測待處理廢水的進水參數,并獲取所述破乳劑的第一預設比例和所述絮凝劑的第二預設比例;
和/或,
步驟S400之后還包括步驟:
S500,第三膜濾處理:待處理廢水流入膜濾子系統進行處理;
和/或,
步驟S400之后還包括步驟:
S600,出水檢測:檢測所述過濾子系統處理后的待處理廢水的出水參數,并判斷所述出水參數是否在預設值范圍內,
所述出水參數在預設值范圍內,則執行步驟:
S710,污水排放:排放所述膜濾系統處理后的待處理廢水;
所述出水參數超出預設值范圍內,則執行步驟:
S720,污水回流:將所述膜濾系統處理后的待處理廢水回流至所述曝氣子系統。
9.一種乳化液廢水處理系統,其特征在于,包括:
沿待處理廢水的流動方向依次設有:
混合器,所述混合器處沿待處理廢水的流動方向依次設有破乳劑投放器和絮凝劑投放器;
曝氣裝置;
光電催化裝置;以及,
過濾裝置。
10.根據權利要求9所述的乳化液廢水處理系統,其特征在于,還包括:
控制子系統,其分別與所述破乳劑投放器和所述絮凝劑投放器通訊連接;
和/或,
進水探測裝置,其用于檢測進入所述混合器之前的待處理廢水的進水參數;
和/或,
集油裝置,其設于所述曝氣裝置處;
和/或,
膜濾裝置,其沿待處理廢水的流動方向設于所述過濾裝置的后方;
和/或,
緩存裝置,其沿待處理廢水的流動方向設于膜濾裝置的后方;
和/或,
出水探測裝置,其用于檢測所述過濾裝置處理后的待處理廢水的出水參數;
和/或,
廢氣處理裝置,其分別與所述曝氣裝置、所述光電催化裝置連接;
和/或,
沉積物收集裝置,其分別與所述曝氣裝置、所述過濾裝置連接。
說明書
一種乳化液廢水處理移動設備及工藝及系統
技術領域
本發明涉及污水處理技術,尤指一種乳化液廢水處理移動設備及工藝及系統。
背景技術
在機械加工行業中廣泛使用到乳化液作為冷卻潤滑劑,發揮冷卻、潤滑、防銹、清洗等作用,同時減少設備磨損,提高設備和刀具的使用壽命。乳化液品類較多,有時被稱作冷卻液、潤滑液、切削液等,經過一系列循環使用后,性能下降變成廢乳化液,另外在設備和場地清洗過程中也會產生含有大量的污油和乳化液的清洗廢水。這些含油乳化廢水中主要含有:機械油或礦物油、皂類、乳化劑、消泡劑、潤滑防腐劑、可溶性有機物、金屬切削和固體懸浮物、一定濃度的表面活性劑、穩定劑和乳化油,具有含油量高、COD濃度高、穩定性高、不易破壞,處理難度大的特點。
含油乳化廢水如排入環境會造成極大的環境污染,對于大型的企業而言,其產生的廢水量多,可以獨自建設該廢水的處理系統進行處理后排放,或與其它廢水混合后進行處理;但是,對于一些中小企業而言,由于其廢水產量少,如果獨自建設該廢水的處理系統,由于乳化液的處理難度高,水量少,但系統造價昂貴;造成多數中小型企業無力承擔污水處理系統的建設以及其維護成本;因此這些企業的廢乳化液處理主要是由產廢企業自行收集儲存,待有一定量后再委托有資質的處置單位進行處理。由此,造成以下不良現象:一,長時間的儲存,導致該廢水產生惡臭,影響廠區內的工作環境;二,為節約污水處理成本以及保證廠區內的良好工作環境,這些企業冒險偷偷排放未處理的污水,但這顯然是違反我國的法律法規,且與我國的國策背道而馳。
因此,本申請致力于提供一種乳化液廢水處理移動設備及工藝及系統。
發明內容
本發明的目的是提供一種乳化液廢水處理移動設備及工藝及系統,創造性地提供了一種移動式乳化液廢水處理裝置,對乳化液廢水具有良好的處理效果,且本發明的移動設備可供不同廠家使用,從而降低了本移動設備的空閑時間,提高了本移動設備的利用率,流動性的上門服務也提高了排污企業的服務體驗。
本發明提供的技術方案如下:
一種乳化液廢水處理移動設備,包括:
設有容置空間的車廂,以及承載所述車廂移動的驅動系統;
所述容置空間內設有依次流體地聯接的破乳絮凝子系統、曝氣子系統、光電催化子系統、過濾子系統,使得待處理廢水依次流經所述破乳絮凝子系統、所述曝氣子系統、所述光電催化子系統、所述過濾子系統。
本技術方案中,首先通過破乳絮凝子系統對乳化液廢水進行有效的破乳和絮凝;然后通過曝氣子系統有效地實現廢水的油層(和/或漂浮物)與廢水分離、以及色度、氨氮、總磷、COD等的初步去除,從而在實現油污與廢水分層的同時,還降低了廢水中的部分COD、色度、氨氮、總磷等;然后廢水再通過光電催化子系統(光電催化(PEC)水處理技術是通過施加電場,使電極與電解質界面上的電荷轉移(如鈣、鎂、有機物)而加速反應的一種催化作用,包括沉積、聚合、氧化還原和分解反應。通過電容基板表面的催化材料施加電場或光照,陽極催化材料吸收電能或光能后在其表面形成具有電子空穴對,與水體內的氧氣反應后形成高活性氧、氫氧根等,可將水體內的有機物氧化聚合或分解成無機物(水+二氧化碳),氯根、硫酸根離子等分解氧化為次氯酸、氯氣、二氧化硫等。在電場作用下,陰極表面則會沉積出鈣、鎂、硫、鎳、銅、鉻、鋅等固體。采用光電共同作用,可有效去除水中鈣、鎂、鎳、銅、鉻、鋅等重金屬離子,并氧化分解有機物和氯離子等,降低水的COD、色度、濁度、氨氮、磷、氰化物等)進一步進行降低廢水中的COD、色度、濁度、氨氮、磷等;最后將廢水進行過濾處理,使得廢水達到一般工廠企業的排放指標(國家排放指標、行業排放指標等),或者根據業主的需求將廢水處理到回收利用的要求。
更優地,本技術方案創造性地提供了一種移動式乳化液廢水處理裝置,適合特別是排污量較少的中小企業,這些企業只需將乳化液廢水排放到一定的存儲設備內,當廢水到達一定量時,可通過具有本移動設備的且具有資質的廢水處置單位進行處理即可。這樣廢水排放企業無需建造污水處理設備,從而大大降低其廢水處置成本,且本移動設備可隨叫隨到,廢水處置單位還可根據客戶需求或提高廢水處理效率,一次廢水處理可同時配置多臺本移動設備,對于大型企業而言,也無需對乳化液廢水和其它廢水進行混合處理,從而增加了其它廢水的處理成本或處理流程;大型企業也可通過本移動設備單獨對其產生的乳化液進行存儲后處理,進而降低其廢水處理的總成本及廢水處理所占用的場地空間。更優地,本移動設備可供不同廠家使用,從而降低了本移動設備的空閑時間,提高了本移動設備的利用率,流動性的上門服務也提提高排污企業的服務體驗。
進一步優選地,還包括控制子系統,其與所述破乳絮凝子系統通訊連接。
本技術方案中,通過控制子系統控制破乳絮凝子系統的工作狀態,如破乳劑的投放和絮凝劑的投放,降低人工成本的投入,從而提高本移動設備的智能化和自動化。
進一步優選地,還包括用于檢測待處理廢水的進水檢測子系統,其與所述控制子系統通訊連接;和/或,用于檢測經所述過濾子系統處理后的待處理廢水的出水檢測子系統,其與所述控制子系統通訊連接。
本技術方案中,通過控制子系統獲取進水檢測子系統和/或出水檢測子系統檢測到的數據,并根據這些數據控制破乳絮凝子系統的破乳劑、絮凝劑的投放,從而保證本移動設備的廢水處理效果,以滿足客戶的要求。
進一步優選地,所述破乳絮凝子系統包括混合器、破乳劑投放器和絮凝劑投放器,沿待處理廢水的流動方向,所述破乳劑投放器和所述絮凝劑投放器依次設于所述混合器處;和/或,所述曝氣子系統包括第一曝氣區和第一膜濾區,所述第一曝氣區和所述第一膜濾區之間設有溢流堰,使得所述第一曝氣區的待處理廢水通過所述溢流堰的上方流入所述第一膜濾區;和/或,所述過濾子系統包括第二曝氣區和第二膜濾區,使得待處理廢水經所述第二曝氣區處理后,流入所述第二膜濾區。
本技術方案中,先投放破乳劑對廢水進行破乳處理后,再投放絮凝劑對廢水中的污染物進行有效的積聚、絮凝,便于后續的曝氣處理中的油層和廢水的分層以及部分COD的去除。
本技術方案中,由于在曝氣過程中,廢水會發生氧化反應,且會不斷的翻騰,導致曝氣區的廢水水質不穩,廢水中含有大量的大顆粒懸浮物,為了保證進入膜濾區的水質的穩定性,通過溢流堰將曝氣區和膜濾區隔開,避免曝氣區的水質影響膜濾區的水質的穩定性,且只有位于曝氣區上方的較為穩定的廢水才能進入膜濾區進行過濾,且溢流堰的設置,使得部分大顆粒懸浮物可于曝氣區(靠近溢流堰一側)發生沉降而被去除,減輕膜濾區的負荷。
本技術方案中,過濾子系統再次進行了曝氣處理和過濾處理,進一步對廢水進行處理,以實現廢水中的色度、氨氮、總磷、COD等的再次去除,并對曝氣后的廢水再次進行過濾處理,以去除因曝氣處理而產生的顆粒物,進而保證出水質量,以滿足不同的需求。
進一步優選地,還包括廢氣處理子系統,其分別與所述曝氣子系統和所述光電催化子系統流體地聯接;和/或,第一提升子系統,其用于將待處理廢水提升至所述破乳絮凝子系統;和/或,油收集子系統,其與所述曝氣子系統連接;和/或,沉積物收集子系統,其分別與所述曝氣子系統、所述光電催化子系統、所述過濾子系統連接;和/或,緩沖子系統,其與所述過濾子系統流體地聯接,用于存儲經所述過濾子系統處理后的出水;和/或,所述過濾子系統和所述曝氣子系統設有回流子系統;和/或,所述曝氣子系統和所述光電催化子系統之間設有第二提升子系統;和/或,膜濾子系統,其沿待處理廢水的流動方向設于所述過濾子系統的后方。
本技術方案中,為了避免在污水處理過程中產生的污染廢氣存儲在各個設備內,進而影響各個設備內的工作效率,甚至引起不良的安全后果(如設備爆炸等),但如果直接將各個設備中產生的廢氣直接排放到環境中,則會污染環境,破壞生態環境,影響人類身體健康,因此,本移動設備設置了廢氣處理子系統,對各個設備中產生的廢氣進行處理后排放,保護環境,響應國家政策。
本技術方案中,為了保證本移動設備適用不同企業的廢水的存儲設備,本移動設備還自備了提升系統,當存儲設備與破乳絮凝子系統之間的水力條件不足時,可通過提升系統將廢水提升至破乳絮凝子系統內進行處理。
本技術方案中,通過油回收子系統收集曝氣子系統中分離出來的并位于廢水上方的油層以及漂浮物,便于后續對廢水的處理。
本技術方案中,通過沉積物收集子系統分別收集曝氣子系統、第一膜濾子系統、光電催化子系統、過濾子系統產生的沉降物,從而保證整個移動設備的廢水處理效能,并及時排放上述子系統內的沉降物,避免因沉降物過多而影響曝氣效果、膜濾效果、光電催化效果、過濾效果。
本技術方案中,為了避免經過濾裝置過濾后的廢水的直接排放,本移動裝置還設置了緩沖子系統,用來存儲經過濾子系統處理后的出水,以穩定出水質量。
本技術方案中,當經過濾子系統處理后的廢水未達到要求(排放要求、回收利用要求等)時,可將經過濾子系統處理后的廢水回流到曝氣子系統內進行再處理,以保證本移動設備處理后的廢水能夠達到要求,保證本移動設備的處理效能。
本技術方案中,為了保證曝氣子系統與光電催化子系統之間的水力條件,在其之間設置了提升系統。
本技術方案中,為了滿足客戶的不同要求(回收要求、國家排放標準、行業排放標準),本移動設備還設置了第二膜濾子系統,以繼續處理從過濾子系統處理的廢水,使廢水達到要求。
本發明還提供了一種乳化液廢水處理工藝,包括步驟:
S100,破乳絮凝處理:待處理廢水流入破乳絮凝子系統,并沿待處理廢水的流動方向,于所述破乳絮凝子系統處依次投放第一預設比例的破乳劑和第二預設比例的絮凝劑;
S200,曝氣-氣浮處理,待處理廢水流入曝氣子系統,于所述曝氣子系統內進行曝氣處理;
S300,光電催化處理,待處理廢水流入光電催化子系統進行處理;
S400,過濾處理,待處理廢水流入過濾子系統進行處理。
本技術方案中,首先通過破乳絮凝子系統對乳化液廢水進行有效的破乳和絮凝;然后通過曝氣子系統有效地實現廢水的油層(和/或漂浮物)與廢水分離、以及色度、氨氮、總磷、COD等的初步去除,從而在實現油污與廢水分層的同時,還降低了廢水中的部分COD、色度、氨氮、總磷等;然后廢水再通過光電催化子系統(光電催化(PEC)水處理技術是通過施加電場,使電極與電解質界面上的電荷轉移(如鈣、鎂、有機物)而加速反應的一種催化作用,包括沉積、聚合、氧化還原和分解反應。通過電容基板表面的催化材料施加電場或光照,陽極催化材料吸收電能或光能后在其表面形成具有電子空穴對,與水體內的氧氣反應后形成高活性氧、氫氧根等,可將水體內的有機物氧化聚合或分解成無機物(水+二氧化碳),氯根、硫酸根離子等分解氧化為次氯酸、氯氣、二氧化硫等。在電場作用下,陰極表面則會沉積出鈣、鎂、硫、鎳、銅、鉻、鋅等固體。采用光電共同作用,可有效去除水中鈣、鎂、鎳、銅、鉻、鋅等重金屬離子,并氧化分解有機物和氯離子等,降低水的COD、色度、濁度、氨氮、磷、氰化物等)進一步進行降低廢水中的COD、色度、濁度、氨氮、磷等;最后將廢水進行過濾處理,使得廢水達到一般工廠企業的排放指標(國家排放指標、行業排放指標等),或者根據業主的需求將廢水處理到回收利用的要求。進一步優選地,步驟S400還包括步驟:
S410,二次曝氣處理:對所述過濾子系統內的待處理廢水進行曝氣處理;
S420,第二膜濾處理:對所述過濾子系統內的待處理廢水進行膜濾處理。
本技術方案中,過濾子系統再次進行了曝氣處理和過濾處理,進一步對廢水進行處理,以實現廢水中的色度、氨氮、總磷、COD等的再次去除,并對曝氣后的廢水再次進行過濾處理,以去除因曝氣處理而產生的顆粒物,進而保證出水質量,以滿足不同的需求。
進一步優選地,步驟S100之前還包括步驟:
S010,進水檢測:檢測待處理廢水的進水參數,并獲取所述破乳劑的第一預設比例和所述絮凝劑的第二預設比例;
和/或,
步驟S400之后還包括步驟:
S500,第三膜濾處理:待處理廢水流入膜濾子系統進行處理;
和/或,
步驟S400之后還包括步驟:
S600,出水檢測:檢測所述過濾子系統處理后的待處理廢水的出水參數,并判斷所述出水參數是否在預設值范圍內,
所述出水參數在預設值范圍內,則執行步驟:
S710,污水排放:排放所述膜濾系統處理后的待處理廢水;
所述出水參數超出預設值范圍內,則執行步驟:
S720,污水回流:將所述膜濾系統處理后的待處理廢水回流至所述曝氣子系統。
本技術方案中,由于不同客戶的廢水的參數可能不同,因此導致應投放的破乳劑和絮凝劑會有相應不同,通過客戶的廢水的進水參數來設置破乳劑和絮凝劑的投放量,進而在保證本產品的處理效能的同時,還可實現藥劑的精確投放,從而節約藥劑,在實現藥劑投放的智能化和自動化的同時,節省了廢水處理成本。
本技術方案中,為了滿足客戶的不同要求(回收要求、國家排放標準、行業排放標準),本移動設備還設置了第二膜濾子系統,以繼續處理從過濾子系統處理的廢水,使廢水達到要求。
本技術方案中,對處理后的廢水進行檢測,并根據檢測到的出水參數與預設參數的比較,判斷該出水是否符合客戶要求,當滿足客戶要求時,則可直接排放出本工藝;當不滿足客戶要求時,則將該廢水回流至曝氣-氣浮處理進行再處理,以保證本處理工藝的出水符合客戶要求(國家排放標準、行業排放標準、企業回收利用標準等)。
本發明還提供了一種乳化液廢水處理系統,其包括:
沿待處理廢水的流動方向依次設有:
混合器,所述混合器處沿待處理廢水的流動方向依次設有破乳劑投放器和絮凝劑投放器;
曝氣裝置;
光電催化裝置;以及,
過濾裝置。
本技術方案中,首先通過破乳絮凝子系統對乳化液廢水進行有效的破乳和絮凝;然后通過曝氣子系統有效地實現廢水的油層(和/或漂浮物)與廢水分離、以及色度、氨氮、總磷、COD等的初步去除,從而在實現油污與廢水分層的同時,還降低了廢水中的部分COD、色度、氨氮、總磷等;然后廢水再通過光電催化子系統(光電催化(PEC)水處理技術是通過施加電場,使電極與電解質界面上的電荷轉移(如鈣、鎂、有機物)而加速反應的一種催化作用,包括沉積、聚合、氧化還原和分解反應。通過電容基板表面的催化材料施加電場或光照,陽極催化材料吸收電能或光能后在其表面形成具有電子空穴對,與水體內的氧氣反應后形成高活性氧、氫氧根等,可將水體內的有機物氧化聚合或分解成無機物(水+二氧化碳),氯根、硫酸根離子等分解氧化為次氯酸、氯氣、二氧化硫等。在電場作用下,陰極表面則會沉積出鈣、鎂、硫、鎳、銅、鉻、鋅等固體。采用光電共同作用,可有效去除水中鈣、鎂、鎳、銅、鉻、鋅等重金屬離子,并氧化分解有機物和氯離子等,降低水的COD、色度、濁度、氨氮、磷、氰化物等)進一步進行降低廢水中的COD、色度、濁度、氨氮、磷等;最后將廢水進行過濾處理,使得廢水達到一般工廠企業的排放指標(國家排放指標、行業排放指標等),或者根據業主的需求將廢水處理到回收利用的要求。
進一步優選地,還包括控制子系統,其分別與所述破乳劑投放器和所述絮凝劑投放器通訊連接;和/或,進水探測裝置,其用于檢測進入所述混合器之前的待處理廢水的進水參數;和/或,集油裝置,其設于所述曝氣裝置處;和/或,膜濾裝置,其沿待處理廢水的流動方向設于所述過濾裝置的后方;和/或,緩存裝置,其沿待處理廢水的流動方向設于膜濾裝置的后方;和/或,出水探測裝置,其用于檢測所述過濾裝置處理后的待處理廢水的出水參數;和/或,廢氣處理裝置,其分別與所述曝氣裝置、所述光電催化裝置連接;和/或,沉積物收集裝置,其分別與所述曝氣裝置、所述過濾裝置連接。
本技術方案中,通過控制子系統控制破乳絮凝子系統的工作狀態,如破乳劑的投放和絮凝劑的投放,降低人工成本的投入,從而提高本移動設備的智能化和自動化。
本技術方案中,通過進水探測裝置檢測廢水的進水參數,進而設置破乳劑和絮凝劑的投放量,從而實現藥劑(即破乳劑和絮凝劑)的良好利用率,避免藥劑的浪費,節約廢水處理成本。
本技術方案中,通過集油裝置收集曝氣裝置中分離出來的并位于廢水上方的油層以及漂浮物,便于后續對廢水的處理。
本技術方案中,為了避免經過濾裝置過濾后的廢水的直接排放,本移動裝置還設置了緩存裝置,用來存儲經過濾子系統處理后的出水,以穩定出水質量。
本技術方案中,通過出水探測裝置檢測廢水的出水參數,并以此判斷本處理系統處理后的廢水是否達到客戶的需求,并根據檢測的結果做出相應的操作,從而保證本系統的處理效能。
本技術方案中,為了避免在污水處理過程中產生的污染廢氣存儲在各個設備內,進而影響各個設備內的工作效率,甚至引起不良的安全后果(如設備爆炸等),但如果直接將各個設備中產生的廢氣直接排放到環境中,則會污染環境,破壞生態環境,影響人類身體健康,因此,本移動設備設置了廢氣處理子系統,對各個設備中產生的廢氣進行處理后排放,保護環境,響應國家政策。
本技術方案中,通過沉積物收集子系統分別收集曝氣子系統、第一膜濾子系統、光電催化子系統、過濾子系統產生的沉降物,從而保證整個移動設備的廢水處理效能,并及時排放上述子系統內的沉降物,避免因沉降物過多而影響曝氣效果、膜濾效果、光電催化效果、過濾效果;進而保證本系統的處理效果,保證本處理系統的出水水質。
本發明提供的一種乳化液廢水處理移動設備及工藝及系統,能夠帶來以下至少一種有益效果:
1、本發明中,首先通過破乳絮凝子系統對乳化液廢水進行有效的破乳和絮凝;然后通過曝氣子系統有效地實現廢水的油層(和/或漂浮物)與廢水分離、以及色度、氨氮、總磷、COD等的初步去除,從而在實現油污與廢水分層的同時,還降低了廢水中的部分COD、色度、氨氮、總磷等;然后廢水再通過光電催化子系統(光電催化(PEC)水處理技術是通過施加電場,使電極與電解質界面上的電荷轉移(如鈣、鎂、有機物)而加速反應的一種催化作用,包括沉積、聚合、氧化還原和分解反應。通過電容基板表面的催化材料施加電場或光照,陽極催化材料吸收電能或光能后在其表面形成具有電子空穴對,與水體內的氧氣反應后形成高活性氧、氫氧根等,可將水體內的有機物氧化聚合或分解成無機物(水+二氧化碳),氯根、硫酸根離子等分解氧化為次氯酸、氯氣、二氧化硫等。在電場作用下,陰極表面則會沉積出鈣、鎂、硫、鎳、銅、鉻、鋅等固體。采用光電共同作用,可有效去除水中鈣、鎂、鎳、銅、鉻、鋅等重金屬離子,并氧化分解有機物和氯離子等,降低水的COD、色度、濁度、氨氮、磷、氰化物等)進一步進行降低廢水中的COD、色度、濁度、氨氮、磷等;最后將廢水進行過濾處理,使得廢水達到一般工廠企業的排放指標(國家排放指標、行業排放指標等),或者根據業主的需求將廢水處理到回收利用的要求。
2、本發明中,創造性地提供了一種移動式乳化液廢水處理裝置,適合特別是排污量較少的中小企業,這些企業只需將乳化液廢水排放到一定的存儲設備內,當廢水到達一定量時,可通過具有本移動設備的且具有資質的廢水處置單位進行處理即可。這樣廢水排放企業無需建造污水處理設備,從而大大降低其廢水處置成本,且本移動設備可隨叫隨到,廢水處置單位還可根據客戶需求或提高廢水處理效率,一次廢水處理可同時配置多臺本移動設備,對于大型企業而言,也無需對乳化液廢水和其它廢水進行混合處理,從而增加了其它廢水的處理成本或處理流程;大型企業也可通過本移動設備單獨對其產生的乳化液進行存儲后處理,進而降低其廢水處理的總成本及廢水處理所占用的場地空間。更優地,本移動設備可供不同廠家使用,從而降低了本移動設備的空閑時間,提高了本移動設備的利用率,流動性的上門服務也提提高排污企業的服務體驗。
3、本發明中,通過兩次曝氣處理(曝氣子系統、過濾子系統),以及至少兩次過濾處理(曝氣子系統、過濾子系統);一次光電催化處理;以上均為高效的COD處理工藝,從而即使對于高濃度COD的乳化液廢水也有良好的處理效能,以滿足客戶的不同要求(國家排放標準、行業排放標準、回收利用標準等),實用性強,適用范圍廣。
4、本發明中,通過控制系統在線根據進水檢測子系統檢測到的進水參數,對破乳劑和絮凝劑的投放進行控制,從而在保證本產品的處理效能的同時,還可實現藥劑的精確投放,從而節約藥劑,在實現藥劑投放的智能化和自動化的同時,節省了廢水處理成本。更優的,控制系統還可根據出水檢測子系統檢測到的出水參數,進一步控制破乳劑和絮凝劑的投放,還可根據出水參數對出水進行排放和回流再處理進行智能化、自動化控制。
5、本發明中,還對會產生污染廢氣的設備的廢氣進行收集和處理后再排放,使得本發明的產品積極響應國家的環保政策。
6、本發明中,還對會產生沉積物的設備的污泥進行了收集和處理,從而有效避免因沉降物過多而影響曝氣效果、膜濾效果、光電催化效果、過濾效果,進而保證了本發明的產品的處理效能。



