申請日2014.11.05
公開(公告)日2015.04.22
IPC分類號C02F9/14
摘要
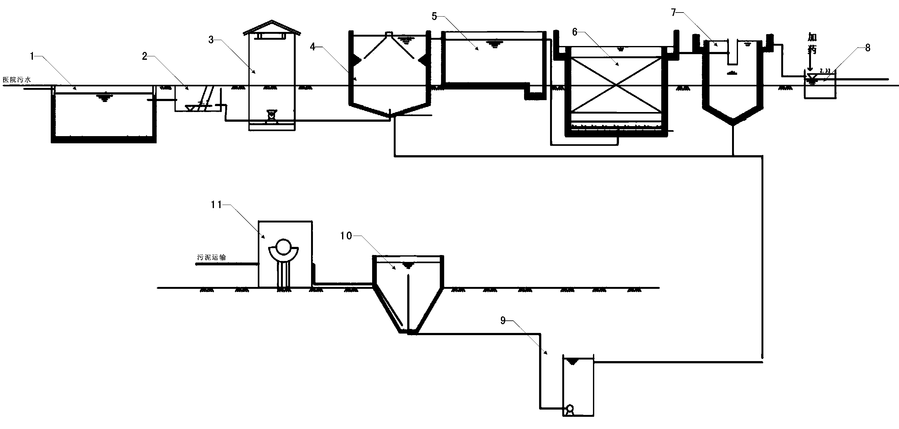
本實用新型在此提供一種醫院污水處理系統;其特征在于:包括化糞室、格柵井、提升泵房、厭氧污泥床反應器、中間池、接觸氧化池、沉淀池、消毒池、污泥儲存間、污泥消毒池、脫水機房;沉淀池分為一級沉淀池、發酵池、二次沉淀池三部分;二次沉淀池與射流器連接,射流器連接離心泵,離心泵連接至消毒池;本系統還包括臭氧發生器,臭氧發生器連接射流器。本實用新型根據實際情況,充分利用現有處理設施,對現有醫院中應用較多的化糞池在整體結構或運行方式上進行改造,盡可能地提高了處理效果,以達到醫院污水處理的排放標準。
權利要求書
1.一種醫院污水處理系統,其特征在于:包括化糞室(1)、格柵井(2)、提升泵房(3)、厭氧污泥床反應器(4)、中間池(5)、接觸氧化池(6)、沉淀池(7)、消毒池(8)、污泥儲存間(9)、污泥消毒池(10)、脫水機房(11);
沉淀池(7)分為一級沉淀池(12)、發酵池(13)、二次沉淀池(14)三部分;其中,一級沉淀池(12)、發酵池(13)、二次沉淀池(14)為一體結構;
二次沉淀池(14)與射流器(15)連接,射流器(15)連接離心泵(16),離心泵(16)連接至消毒池(8);本系統還包括臭氧發生器(17),臭氧發生器(17)連接射流器(15)。
2.根據權利要求1所述所醫院污水處理系統,其特征在于:化糞室(1)里安裝化糞池包括一級厭氧室(18)、二級厭氧室(19)、澄清室(20);前后兩端設置有進口(21)和出口(22);上表面設置有兩個檢查孔(23);
根據權利要求1所述所醫院污水處理系統,其特征在于:消毒池(8)的出水管道上連接有在線監測儀(24),在線監測儀(24)控制二氧化氯發生器(25),二氧化氯發生器(25)通過管道連接至消毒池(8)的進水管。
說明書
醫院污水處理系統
技術領域
本實用新型涉及一種醫院污水處理領域,具體來講是一種醫院污水處理系統。
背景技術
傳統的醫院污水消毒劑發生器主要有:化學法二氧化氯發生器、次氯酸鈉發生器、電解法二氧化氯發生器、臭氧發生器等。消毒,是醫療機構污水處理中的重要環節之一,醫療機構污水常用的消毒設備主要有:臭氧發生器、次氯酸鈉發生器、雙虹吸、電解法二氧化氯發生器、化學法二氧化氯發生器、智能化虹吸式二氧化氯消毒裝置等。眾觀國內各種消毒發生器,它們的共同優點有:設計美觀、形狀不一、電器化程度越來越高、消毒劑的產量額定化(即小時二氧化氯產量以克計算)、化學法二氧化氯發生器的自來水消耗量大。消毒劑發生器的消毒劑產量額定化的最大遺憾,就是難以滿足醫院污水流量不均,投藥濃度不易控制等難題,主要表現在三個方面:
1)、按照高峰期污水量選用消毒劑發生器,如每小時產多少克的二氧化氯量投入到污水中,那么到污水低峰期時,由于污水量減少,而二氧化氯的產量未變,那么污水中二氧化氯含量必然超標,不但形成二次污染,隨即帶來的另外一個問題是:浪費了藥劑,增大了運行費用。
2)、若按低峰期污水量選用消毒劑發生器,如每小時產多少克二氧化氯投入到污水中,那么到污水高峰期時,由于污水量增大,而投加消毒劑二氧化氯量未變,污水中的消毒劑量必然不夠,不能殺死污水中的病菌和病毒,致使消毒結果達不到要求。因此采用消毒劑發生器消毒醫院污水,難以解決醫院污水流量不均、投藥濃度不易控制的難題。
3)化學法二氧化氯發生器還需要消耗大量的自來水,浪費資源,加大運行成本,不符合我國節能減排政策,具調查,小型醫療機構采用化學法二氧化氯發生器,消耗的自來到水可能比污水量還要多。
1)在于能自產消毒劑,并同時能自動調節水封、水量和水質,并根據污水水量定比定量、正比例投配消毒劑,并且圓滿解決醫院污水流量不均、投藥濃度不易控制的難題,做到污水量越大,投加加快;污水量小,投藥自動減慢,沒有污水自動停機,一次調準,長期不變。改變了二氧化氯發生器嚴重浪費自來水的現象,是典型的安全、環保、節能、減排的醫院污水消毒裝置。這類裝置主要有化學法虹吸式二氧化氯消毒裝置;電解次氯酸鈉法虹吸式式消毒裝置;電解二氧化氯法虹吸式消毒裝置和自動同步雙虹吸醫院污水定比定量消毒裝置等。2)可用處理后的污水作二氧化氯消毒劑的吸收液,不耗自來水。在有的地方即便用自來水作吸收液,也只有化學法二氧化氯發生器的十分之一。
醫院污水消毒處理(包括產生的污泥消毒)就是將消毒劑用某種方式和醫院污水均勻混合在一起,并保持一段特定時間,令其充分接觸消毒、待污水中的各種病菌達到規定的滅活指數,然后排放。由此可見醫院污水消毒,涉及到消毒劑和消毒設備。消毒劑由化工廠生產或由消毒劑生產設備現場制取(如二氧化氯發生器,次氯酸鈉發生器,臭氧發生器等),而消毒設備就是解決消毒劑和污水的混合方式或手段,這種處理手段至今不外兩種,一種是用“虹吸”的方法混合不用電;另一種是用電,即用機械的方法進行混合。清楚了這點,再根據兩類不同的條款來選擇消毒設備和消毒劑就比較容易了。第一類:如果你的醫院正在新建中,或正準備對原來的污水處理站進行改造,只要在新建的污水站的進出口之間能有30公分的水位落差,你就應該首先選用“自動同步雙虹吸醫院污水定量消毒裝置”,因為它不用電,而其他任何一種處理設備都要用電才能運行。設備選擇好后,就根據醫院的具體情況選用消毒劑了。如果醫院不在人口稠密的大城市,如果你降低消毒成本、盡量節省開支作為第一考慮,如果你能就近買到液氯,你不妨選擇液氯作消毒劑,因為迄今為止,加上漲價因素液氯仍是所有消毒劑中處理成本最低的。當然,如果你感到使用液氯不安全又不在乎增加一些處理成本,同時又能就近買到次氯酸鈉、次氯酸鈣,你也可以用這兩種做消毒劑。如果在當地解決不了消毒劑的來源問題,則可以首選虹吸式二氧化氯消毒裝置消毒污水。虹吸式二氧化氯消毒裝置,具有二氧化氯發生器和雙虹吸的雙重優點,即能解決消毒來源,也能解決醫院污水流量不均,投藥濃度難以控制的等難題,能保證醫院污水消毒穩定運行,是污水消毒的專用設備。如果你過去備有消毒劑發生器,只需對工程進行維修和改造,則可以選用自動同步雙虹吸,二氧化氯發生器或次氯酸鈉發生器可節約投資。第二類情況:因多種原因醫院污水消毒站不具備運行30公分水位落差。這種情況在雙虹吸技術出現之前,工程師們常設計污水處理站基本上是沿用“水泵提升加水射器投藥”的方法消毒醫院污水,60、70年代建立的醫院其污水處理站基本上屬于這種情況。經過四十多年的運轉使用,很多污水處理設施已經不能繼續使用,同時新的污水處理設備和新型消毒劑的開發使用,亦使很多醫院下決心要在污水消毒處理方面“鳥槍換炮”,面對這種“必須用泵抽,始終要用電”的客觀現實,當然應盡量采用當今最先進的技術,如使用智能化二氧化氯消毒裝置,該裝置配具有二氧化氯發生器系統、二氧化氯儲存系統,傳感提升射流投加系統和自動化管理系統四部分組成,技術先進、消毒可靠、運行穩定。污水處理過程中要產生一定的異味,如不處理,對周邊環境造成空氣污染。因此在污水處理時,還要考慮廢氣的集中處理和有組織排放。醫療機構污水處理過程中,產生的廢氣有目前主要有兩種辦法處理:中高空排放:若處理區離高層較遠,可以就地采用高空排氣管排放。即在每個構筑物的蓋板上設置導氣管,相互連接后把各管合并到一根主管上,同時將此管接入規劃的排氣系統中,排氣管按規范設計,其應沿主樓最高處稀釋排放,或就近引入附近樓房的廢氣井道。排放采用引風引射。
臭氧活性炭吸附:臭氧活性炭處理廢氣,是通過活性炭的吸附和臭氧氧化共同作用來脫除廢氣中的惡臭物質的,臭氣以0.4m/s的流速通過活性炭過濾吸附器,其中用4~6目的的活性炭,層厚100mm,能除去烴類等有機物,以后由臭氧氧化除惡臭。離心風機型號、功率、根據設計而定。
醫院產生的含有病原體、重金屬、消毒劑、有機溶劑、酸、堿以及放射性等的污水。污泥指醫院污水處理過程中 產生的污泥和化糞池污泥。醫院各部門的功能、設施和人員組成情況不同,產生污水的主要部門和設施有:診療室、化驗室、病房、洗衣房、X光照像洗印、動物房、同位素治療診斷、手術室等排水;醫院行政管理和醫務人員排放的生活污水,食堂、單身宿舍、家屬宿舍排水。不同部門科室產生的污水成分和水量各不相同,如重金屬廢水、含油廢水、洗印廢水、放射性廢水等。而且不同性質醫院產生的 污水也有很大不同。醫院污水較 一般生活污水排放情況復雜。醫院污水來源及成分復雜,含有病原性微生物、有毒、有害的物理化學污 染物和放射性污染等,具有空間污染、急性傳染和潛伏性傳染等特征,不經有 效處理會成為一條疫病擴散的重要途徑和嚴重污染環境。醫院污水受到糞便、傳染性細菌和病毒等病原性微生物污染 ,具有傳 染性,可以誘發疾病或造成傷害。全過程控制原則。對醫院污水產生 、處理、排放的全過程進行控制。嚴禁將醫院的污水和污物隨意棄置排入下水道。為防止醫院污水輸送過程中的污染與危害,在醫院必 須就地處理。有效去除污水中有毒有害物質,減少處理過程中消毒 副產物產生和控制出水中過高余氯,保護生態環境安全。
根據現行標準,現有醫院污水處理工藝級別低,主要存在懸浮物濃度 高,影響消毒效果;水質波動大,消毒劑投加量難以控制;消毒副產物 產生量大 ,影響生態環境的安全; 余氯標準無上限,過多余氯危害生態安 全等問題。
醫院污水水質類似于生活污水,但成份復雜。如消毒劑,來自化驗、檢驗、手術等各科室的重金屬、有機試劑,以及可能的放射性同位素等。作為醫院,其排放的污水中含有大量有毒化學物質和多種致病菌、病毒和寄生蟲卵。它們在環境中具有一定的適應能力,有的甚至在污水中存活時間較長,若未處理或處理不當即排入水體或用于灌溉,將會污染環境,影響人們的身體健康。
實用新型內容
本實用新型的目的在于在此提供一種醫院污水處理系統;本實用新型所述經過改進,結構設計合理,利用效率高,運行費用降低,廣泛用于醫療機構污水處理領域。
本實用新型是這樣實現的,構造一種醫院污水處理系統,其特征在于:包括化糞室、格柵井、提升泵房、厭氧污泥床反應器、中間池、接觸氧化池、沉淀池、消毒池、污泥儲存間、污泥消毒池、脫水機房;
沉淀池分為一級沉淀池、發酵池、二次沉淀池三部分;其中,一級沉淀池、發酵池、二次沉淀池為一體結構;
二次沉淀池與射流器連接,射流器連接離心泵,離心泵連接至消毒池;本系統還包括臭氧發生器,臭氧發生器連接射流器。
根據本實用新型所述所醫院污水處理系統,其特征在于:述化糞室里安裝化糞池包括一級厭氧室、二級厭氧室、澄清室;前后兩端設置有進口和出口;上表面設置有兩個檢查孔。
根據本實用新型所述所醫院污水處理系統,其特征在于:消毒池的出水管道上連接有在線監測儀,在線監測儀控制二氧化氯發生器,二氧化氯發生器通過管道連接至消毒池的進水管。
本實用新型的優點在于:(1)本實用新型所述的醫院污水處理系統;經過改進,結構設計合理,利用效率高,運行費用降低,廣泛用于醫療機構污水處理領域。(2)本實用新型經過改進,結構設計合理,利用效率高,運行費用降低,廣泛用于醫療機構污水處理領域。本實用新型根據實際情況,充分利用現有處理設施,對現有醫院中應用較多的化糞池在整體結構或運行方式上進行改造,盡可能地提高了處理效果,以達到醫院污水處理的排放標準。整個工藝具有流程簡單、管理方便、基建投資省、運行費用較低、處理效 果好及設備國產化程度高等優點。




