申請日2014.10.22
公開(公告)日2016.05.18
IPC分類號C02F3/30; C02F3/34
摘要
本發明提供了一種硝化反硝化兩相膨脹床反應器及污水處理工藝。膨脹床反應器包括反應器、溶氧器、循環泵及附屬管線;其中反應器為立式筒形結構,自下而上分別為底部配水區、好氧反應區、二次配水區、缺氧反應區和出水區;好氧反應區和缺氧反應區內填裝小粒徑填料,二次配水區設有收縮—擴張式整流環,出水區設有三相分離器。采用上述膨脹床反應器,硝化、反硝化在一個反應器內進行,生化與溶氧過程獨自完成,生化處理負荷高,設備占地小,節省投資及運行費用。
權利要求書
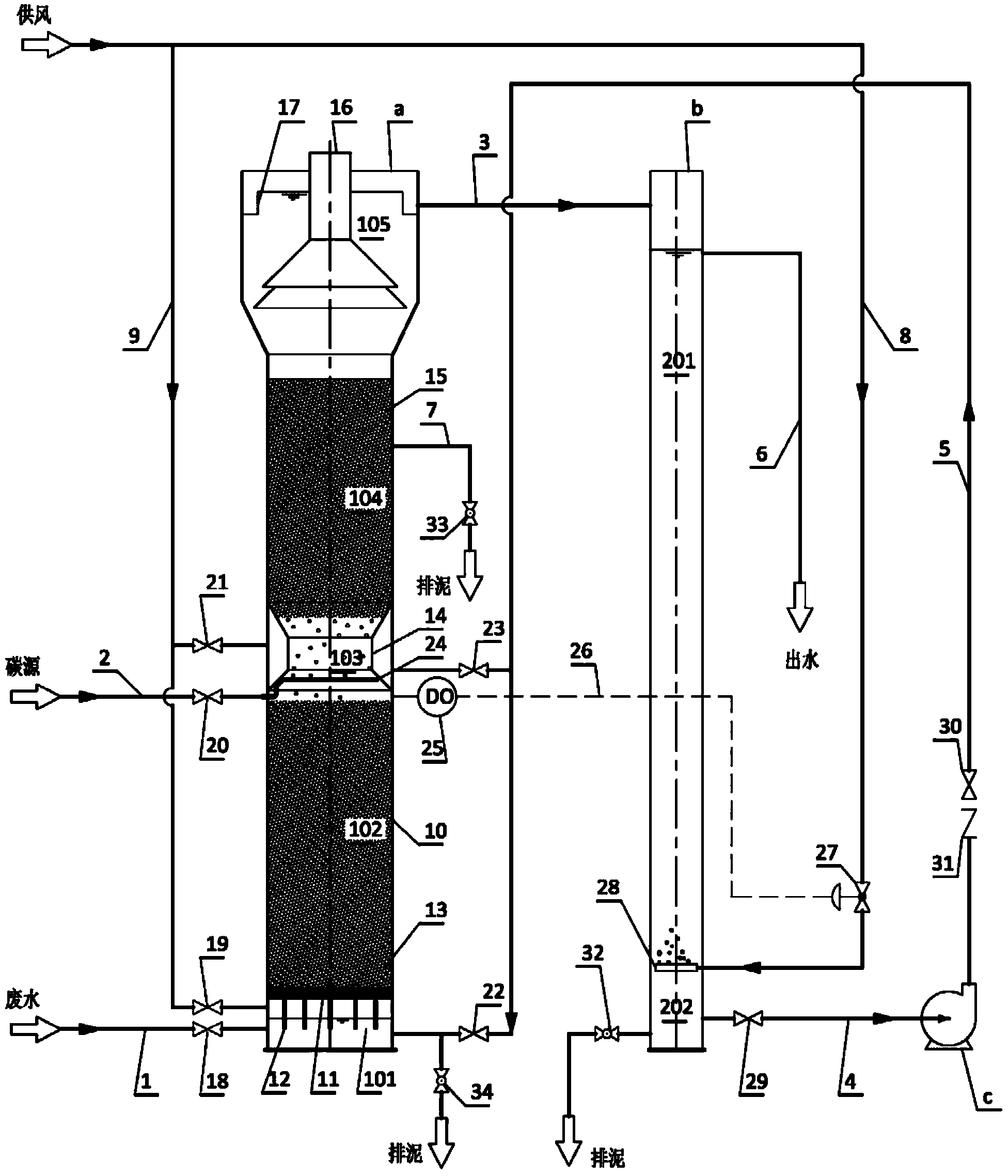
1.一種硝化反硝化兩相膨脹床反應器,所述反應器包括反應器[a]、溶氧器[b]、循環泵[c]及附屬管線;
所述反應器[a]采用上大下小的兩段立式筒形結構,橫截面為圓形,自下而上分別為底部配水區[101]、好氧反應區[102]、二次配水區[103]、缺氧反應區[104]和出水區[105];
所述底部配水區[101]以濾板[11]與所述好氧反應區[102]相隔,所述濾板[11]上安裝濾頭[12];
所述好氧反應區[102]和所述缺氧反應區[104]均為空腔構造,內部填裝顆粒填料;
所述二次配水區[103]的中部設有收縮-擴張式整流環[14],所述整流環[14]與二次配水區[103]的內壁形成的環隙為布水布氣空間,環繞所述整流環[14]收縮段的內壁設置水平布水環管[24],所述布水環管[24]底部等間距開設布水孔;
所述出水區[105]上粗下細,與所述缺氧反應區[104]通過喇叭口形過度段連接,在所述出水區[105]的中心位置設置三相分離器[16],所述出水區[105]頂部周邊設置集水槽[17];在所述出水區[105]側壁上部設置與集水槽[17]聯通的出水口;在所述缺氧反應區[104]側壁上部設置排泥口;
底部配水區[101]側壁上部設置進風口,下部設置進水口和回流水進口;二次配水區[103]側壁上部設置進風口、下部設置回流水進口;好氧反應區[102]側壁頂部設置溶解氧測定儀[25];
所述溶氧器[b]為筒形結構,橫截面為圓形或矩形,靠近底部的位置內設置曝氣器[28],并以所述曝氣器[28]為界,上部為溶氧區[201]、下部為回流區[202];所述溶氧器[b]的頂部設置進水口,低于進水口設置溢流排水口,所述曝氣器[28]處設置進風口,供風管路上設有調節閥[27],所述調節閥[27]與所述溶解氧測定儀[25]連鎖;所述溶氧器[b]的底部設置回流出水口和排泥口;
所述管線設置如下:污水進水與底部配水區[101]的所述進水口管線連通;碳源進水與二次配水區[103]的所述布水環管[24]連通;出水區[105]的所述出水口與溶氧器[b]的所述進水口管線連通;溶氧器[b]的所述回流出水口與循環泵[c]的進口管線連通;所述循環泵[c]的出口與底部配水區[101]的所述回流水進口、二次配水區[103]的所述回流水進口管線連通;外設空氣源分別與底部配水區[101]的所述進風口、二次配水區[103]的所述進風口、溶氧器[b]的所述進風口連通;溶氧器[b]的所述溢流排水口連接系統出水管。
2.根據權利要求1所述的膨脹床反應器,其特征在于:
所述整流環[14]的上部開設布氣條孔[14-1],所述布氣條孔[14-1]沿整流環[14]周邊均布;
所述整流環[14]的下部開設布水條孔[14-2],所述布水條孔[14-2]沿整流環[14]周邊均布。
3.根據權利要求1所述的膨脹床反應器,其特征在于:
所述三相分離器[16]由中心管[16-1]和由上下疊置的擴口罩體:上部罩體[16-2]與下部罩體[16-3]組成;所述上部罩體[16-2]和所述下部罩體[16-3]的擴口端向下;所述上部罩體[16-2]的縮口端與所述中心管[16-1]的下端口連接,所述上部罩體[16-2]與所述下部罩體[16-3]之間構成過流通道。
4.根據權利要求1所述的膨脹床反應器,其特征在于:
所述好氧反應區[102]或所述缺氧反應區[104]填裝陶粒顆粒填料、活性炭顆粒填料、木質顆粒填料或橡膠顆粒填料。
5.根據權利要求4所述的膨脹床反應器,其特征在于:
所述好氧反應區[102]或所述缺氧反應區[104]填裝的填料粒徑為2mm~4mm、3mm~5mm或4mm~6mm。
6.根據權利要求1所述的膨脹床反應器,其特征在于:
所述好氧反應區[102]填料層靜態厚度與橫截面直徑之比1.5~5;所述缺氧反應區[104]填料層靜態厚度與橫截面直徑之比1.5~5。
7.一種使用權利要求1~6之一所述的膨脹床反應器的污水處理工藝;
采用所述膨脹床反應器的污水處理工藝依次包括:運行階段、反洗階段和排泥階段;
(1)運行階段
底部配水區[101]的進水閥[18]、二次配水區[103]的進水閥[20]、底部配水區[101]的回流閥[22]、溶氧器[b]的回流閥[29]、循環泵[c]的出水閥[30]均開啟,風量調節閥[27]處于自動控制狀態,其余閥門均關閉,所述循環泵[c]運行;
污水進水通過進水管[1]與所述循環泵[c]來的循環水進入所述底部配水區[101],經所述濾頭[12]進入所述好氧反應區[102],所述好氧區填料[13]上生長有好氧微生物;向上的水流使好氧反應區[102]內的所述填料顆粒處于流化狀態;
碳源進水通過所述布水環管[24]進入所述二次配水區[103],與來自所述好氧反應區[102]的水流混合后,進入所述缺氧反應區[104],所述缺氧區填料[15]上生長有反硝化微生物;向上的水流使缺氧反應區[104]內的所述填料顆粒處于流化狀態;
向上水流經過所述缺氧反應區[104]后進入所述出水區[105],流入所述集水槽[17],經出水管[3]進入所述溶氧器[b];所述好氧反應區[102]產生的CO2氣體和所述缺氧反應區[104]產生的N2隨水流向上流動,上升的氣泡被所述三相分離器[16]的下部罩體[16-3]、上部罩體[16-2]截留,匯集到中心筒[16-1]后排入大氣;
在所述溶氧器[b]中,與所述污水進水及所述碳源進水等量的水流從上部溢流,通過系統出水管[6]外排,其余的循環水流繼續向下流動,在所述溶氧區[201]與所述曝氣器[28]產生的氣泡逆流傳質,進入所述回流區[202],并通過回流水管[4]經過所述循環泵[c],返回反應器[a]的所述底部配水區[101];所述溶氧器[b]的溶氧供風量依據所述溶解氧測定儀[25]測得的溶解氧濃度通過調節所述調節閥[27]的開度進行控制;
(2)反洗階段
a、好氧區-缺氧區填料聯合反洗
底部配水區[101]的供風閥[19]、底部配水區[101]的所述回流閥[22]、溶氧器[b]的所述回流閥[29]、循環泵[c]的所述出水閥[30]均開啟,其余閥門關閉,所述循環泵[c]運行;反洗進行一定時間后,停止所述反應器[a]進風和循環水回流,進入排泥階段;
b、缺氧區填料單獨反洗
二次配水區[103]的供風閥[21]、二次配水區[103]的回流閥[23]、溶氧器[b]的所述回流閥[29]、循環泵[c]的所述出水閥[30]均開啟,其余閥門關閉,所述循環泵[c]運行;反洗進行一定時間后,停止所述反應器[a]進風和循環水回流,進入排泥階段;
(3)排泥階段
關閉所有閥門,停運所述循環泵[c],靜置,使反應器[a]的所述出水區[105]和所述溶氧器[b]內的污泥沉淀,開啟排泥閥[33]排出所述出水區[105]沉淀的污泥,開啟排泥閥[32]排出溶氧器[b]沉淀的污泥。
8.根據權利要求7所述的膨脹床反應器,其特征在于:
所述溶解氧測定儀[25]的溶解氧濃度控制在0.2mg/L~0.5mg/L。
說明書
一種硝化反硝化兩相膨脹床反應器及污水處理工藝
技術領域
本發明涉及污水處理技術領域,更具體地說,涉及一種用于污水深度處理的硝化反硝化兩相膨脹床反應器及污水處理工藝。
背景技術
硝化反硝化是污水脫氮處理最常用的生化工藝,硝化是通過微生物好氧生化反應將污水中氨氮氧化為硝酸鹽,反硝化是通過微生物缺氧生化反應將硝酸鹽還原為氮氣。
常用的污水脫氮可分為前置反硝化和后置反硝化兩類,前置反硝化需要大量的混合液回流,脫氮效率受限,后置反硝化需要補充碳源,繼而要在反硝化單元后設置進一步去除有機物的設施。這兩種脫氮工藝都需要分別設置硝化單元和反硝化單元,投資高,運行費用高。
按微生物的生長形態,可以將生化反應分為活性污泥法和生物膜法,由于硝化過程微生物生長慢,采用生物膜法更利于硝化菌的生長;對于后置反硝化工藝,進入反硝化階段的污水中有機物濃度通常較低,能夠生長的反硝化微生物數量較少,采用生物膜工藝比活性污泥法更有利,如應用較多的曝氣池加裝塑料填料的泥膜工藝和采用陶粒填料的曝氣生物濾池工藝等,但此類工藝仍存在以下弊端:(1)塑料材質的填料不易掛膜,微生物附著量少;(2)陶粒等無機材料的填料容易掛膜,但由于采用固定床運行,經常發生填料層局部堵塞,進而導致水流短路,影響處理效果。
近年來出現了一種三相流化床工藝用于污水處理,根據不同的控制條件可實現去除COD、硝化等功能,其基本構造是在筒形反應器內裝設一個內筒,在內筒中進行供風曝氣,在氣提作用下使反應器內產生液流循環,內筒液流向上流動,內筒與反應器壁之間的環隙液流向下流動,反應器內填裝的輕質填料可隨水流流動,與傳統生化反應器相比,生物膜量和傳質效率得以提高。但這種三相流化床仍存在一定的不足:(1)內循環流量取決于供風量,溶解氧量也取決于供風量,為實現填料流化,供風量必須足夠大,反應器中的溶解氧通常難以控制在反硝化需要的較低濃度;(2)內循環的驅動能量來源是氣體在上升過程中膨脹做功,能量利用率低,導致運行費用高。
發明內容
為解決現有技術中存在的問題,本發明提供了一種用于污水深度處理的硝化反硝化兩相膨脹床反應器及污水處理工藝。
本發明的一種硝化反硝化兩相膨脹床反應器是這樣實現的:
一種硝化反硝化兩相膨脹床反應器,所述反應器包括反應器a、溶氧器b、循環泵c及附屬管線;
所述反應器a采用上大下小的兩段立式筒形結構,橫截面為圓形,自下而上分別為底部配水區101、好氧反應區102、二次配水區103,缺氧反應區104和出水區105;
所述底部配水區101以濾板11和所述好氧反應區102相隔,所述濾板11上安裝濾頭12;
所述好氧反應區102和所述缺氧反應區104均為空腔構造,內部填裝顆粒填料;
所述二次配水區103的中部設有收縮—擴張式整流環14,所述整流環14與二次配水區103的內壁形成的環隙為布水布氣空間,環繞所述整流環14收縮段的內壁設置水平布水環管24,布水環管24底部等距離開布水孔;
所述出水區105上粗下細,與所述缺氧反應區104通過喇叭口形過度段連接,在所述出水區105的中心位置設置三相分離器16,所述出水區105頂部周邊設置集水槽17;在所述出水區105側壁上部設置與集水槽17聯通的出水口;在所述缺氧反應區104側壁上部設置排泥口;
底部配水區101側壁上部設置進風口,下部設置進水口和回流水進口;二次配水區103側壁上部設置進風口,下部設置回流水進口;好氧反應區102側壁頂部設置溶解氧測定儀25;
所述溶氧器b為筒形結構,橫截面為圓形或矩形,靠近底部的位置內設置曝氣器28,并以所述曝氣器28為界,上部為溶氧區201,下部為回流區202;所述溶氧器b的頂部設置進水口,低于進水口設置溢流排水口,所述曝氣器28處設置進風口,供風管路上設有調節閥27,所述調節閥27與所述溶解氧測定儀25連鎖;所述溶氧器b的底部設置回流出水口和排泥口;
所述管線設置:污水進水與底部配水區101的所述進水口管線連通;碳源進水與二次配水區103的所述布水環管24相接;出水區105的所述出水口與溶氧器b的所述進水口管線連通;溶氧器b的所述回流出水口與循環泵c進口管線連通;循環泵c出口與底部配水區101的所述回流水進口、二次配水區103的所述回流水進口管線連通;外設空氣源分別與底部配水區101的所述進風口、二次配水區103的所述進風口、溶氧器b的所述進風口連通;溶氧器b的所述溢流排水口連接系統出水管。
在具體實施時,
所述整流環14的上部開設布氣條孔14-1,所述布氣條孔14-1沿整流環14周邊均布;所述整流環14的下部開設布水條孔14-2,所述布水條孔14-2沿整流環14周邊均布。
所述三相分離器16由中心管16-1和由上下疊置的擴口罩體:上部罩體16-2與下部罩體16-3組成;所述上部罩體16-2和所述下部罩體16-3的擴口端向下;所述上部罩體16-2的縮口端與所述中心管16-1的下端口連接,所述上部罩體16-2與所述下部罩體16-3之間構成過流通道;
所述好氧反應區102或所述缺氧反應區104填裝陶粒顆粒填料、活性炭顆粒填料、木質顆粒填料或橡膠顆粒填料;
所述好氧反應區102或所述缺氧反應區104填裝的填料粒徑為2~4mm、3~5mm或4~6mm。
所述好氧反應區102填料層靜態厚度與橫截面直徑之比1.5~5;所述缺氧反應區104填料層靜態厚度與橫截面直徑之比1.5~5。
采用本發明兩相膨脹床反應器的污水處理工藝是這樣實現的:
污水處理工藝依次包括:運行階段、反洗階段和排泥階段;
(1)運行階段
底部配水區101的進水閥18、二次配水區103的進水閥20、底部配水區101的回流閥22、溶氧器b的回流閥29、循環泵c的出水閥30均開啟,風量調節閥27處于自動控制狀態,其余閥門均關閉,循環泵c運行;
污水進水通過進水管1與循環泵c來的循環水進入所述底部配水區101,經所述濾頭12進入所述好氧反應區102,所述好氧區填料13上生長有好氧微生物;向上的水流使好氧反應區102內的所述填料顆粒處于流化狀態;
碳源進水通過所述布水環管24進入所述二次配水區103,與來自所述好氧反應區102的水流混合后,進入所述缺氧反應區104,所述缺氧區填料15上生長有反硝化微生物;向上的水流使缺氧反應區104內的所述填料顆粒處于流化狀態;
向上水流經過所述缺氧反應區104后進入所述出水區105,流入所述集水槽17,經出水管3進入所述溶氧器b;所述好氧反應區102產生的CO2氣體和所述缺氧反應區104產生的N2隨水流向上流動,上升的氣泡被所述三相分離器16的下部罩體16-3、上部罩體16-2截留,匯集到中心筒16-1后排入大氣;
在所述溶氧器b中,與所述污水進水及所述碳源進水等量的水流從上部溢流,通過系統出水管6外排,其余的循環水流繼續向下流動,在所述溶氧區201與所述曝氣器28產生的氣泡逆流傳質,進入所述回流區202,并通過回流水管4進入循環泵c,返回反應器a的所述底部配水區101;所述溶氧器b的溶氧供風量依據所述溶解氧測定儀25測得的溶解氧濃度通過調節所述調節閥27的開度進行控制;
(2)反洗階段
a、好氧區-缺氧區填料聯合反洗
底部配水區101的供風閥19、底部配水區101的所述回流閥22、溶氧器b的所述回流閥29、循環泵c的所述出水閥30均開啟,其余閥門關閉,循環泵c運行;反洗進行一定時間后,停止所述反應器a進風和循環水回流,進入排泥階段;
b、缺氧區填料單獨反洗
二次配水區103的供風閥21、二次配水區103的回流閥23、溶氧器b的所述回流閥29、循環泵c的所述出水閥30均開啟,其余閥門關閉,循環泵c運行;反洗進行一定時間后,停止所述反應器a進風和循環水回流,進入排泥階段;
(3)排泥階段
關閉所有閥門,停運所述循環泵c,靜置,使反應器a的所述出水區105、溶氧器b內的污泥沉淀,開啟排泥閥33排出所述出水區105沉淀的污泥,開啟排泥閥32排出溶氧器b沉淀的污泥。
在具體實施時,所述溶解氧測定儀25的溶解氧濃度控制在0.2mg/L~0.5mg/L。
(1)在運行階段
污水來水通過進水管1進入反應器a底部配水區101,碳源進水通過進水管2進入反應器a二次配水區103,處理系統的出水通過溶氧器b上部的系統出水管6排出。
循環泵c排出的循環水流進入反應器a的底部配水區101,并通過濾頭12使水流在截面上分布均勻后進入好氧反應區102;當上向水流流速達到一定程度后,反應器a內的顆粒填料發生流化,即填料顆粒由堆積狀態變化為隨水流浮動的狀態,整個填料床層厚度增加,床層膨脹;在水流篩選作用下,較小粒徑的填料顆粒移動到填料層上部,較大粒徑的填料顆粒則移動到填料層下部,整體上看缺氧反應區104的填料粒徑將小于好氧反應區102填料。
在二次配水區103,由于整流環14的收縮使過水斷面減小,流速進一步增加,在更高流速的水流作用下,二次配水區103內的填料顆粒絕大部分被向上頂托,由于整流環14的擴口使水流流速又減小,流速減小到一定程度后填料顆粒不再向上運動,而是基本穩定在這個位置,缺氧反應區104填料層底面也動態的穩定在這個位置,這樣在二次配水區103內,只有少量粒徑較大的填料顆粒以浮動狀態存在,液相占據二次配水區103的大部分,由布水環管24進入的碳源進水與大比例回流水在二次配水區103內瞬間混合均勻。在缺氧反應區104內,由于水流流速基本與好氧反應區102相近,其中的填料顆粒也處于流化狀態,區別在于好氧反應區102填料層由濾板11承托,而缺氧反應區104填料層由上向水流承托。
水流經過缺氧反應區104后進入出水區105,由于出水區105截面面積大于反應區,水流流速減小,不能使填料顆粒產生流化,水流夾帶個別填料顆粒也經三相分離器16與出水區筒壁的環狀間隙下沉至缺氧反應區104,因此保證了出水區105流出的水流中不夾帶填料顆粒,避免填料的流失。出水區105內上向水流流入集水槽17,并通過膨脹床反應器出水管3進入溶氧器b。
在溶氧器b中,與污水進水及碳源進水等量的水流從上部溢流,通過系統出水管6外排,其余的循環水流繼續向下流動,與曝氣器28產生的氣泡逆流傳質,實現氧從空氣向循環水流的傳遞,當循環水流到達曝氣器28的位置時,水中溶解氧的濃度也達到最高,繼續向下流動進入回流區202,并通過回流水管4進入循環泵,進而完成處理整個系統的水流循環。
污水在本處理系統中生化過程如下:
待處理污水和溶氧的回流水進入反應器a底部的配水區101,回流水量通常遠大于污水水量,二者在底部配水區101混合后一并通過濾頭12進入好氧反應區102,好氧區填料13上生長的好氧微生物(包括分解有機物的異氧菌和氧化氨氮的硝化菌)將有機物分解為CO2和水、將氨氮氧化為硝酸鹽;由于小顆粒填料巨大的比表面積可以附著生長大量的微生物,較大的水流流速加速了生化反應傳質,使得好氧反應區102的反應速率得以提高;當水流穿過好氧反應區102后,水中的溶解氧由于生化反應而消耗,在好氧反應區102頂部設置的溶解氧測定儀25可隨時測定水流的溶解氧濃度,并控制溶氧器b供風管調節閥27的開度,進而控制溶氧供風量,使穿過好氧反應區102水流中溶解氧控制在0.2~0.5mg/L之間,為后續的缺氧生化反應創造條件。
上升水流進入二次配水區103后,根據需要可由碳源進水管2補充反硝化需要的碳源,補充的碳源進水進入布水環管24,再由環管底部的開孔流出,向下流出的碳源進水與向上流動的大量循環回流水瞬間混合均勻,由二次配水區103進入缺氧反應區104。由于進入缺氧反應區104的水流中存在硝酸鹽和反硝化需要的碳源,水中溶解氧也控制在缺氧狀態,缺氧反應區104填料上生長的反硝化微生物就可以將水中硝酸鹽還原為氮氣,實現反硝化反應;與好氧反應區102相類似,高比表面積的顆粒填料,優良的傳質條件可有效提高缺氧反應速率,水流通過缺氧反應區104后即實現了硝化反硝化反應,脫除了污水中的氮。
好氧反應區102產生的CO2氣體和缺氧反應區104產生的N2都隨水流向上流動,進入出水區105后,上升的氣泡被三相分離器16下部罩體16-3、上部罩體16-2截留,匯集到中心筒16-1后排入大氣。
(2)在反洗階段
兩相膨脹床反應器經過一定時間的運行后,填料顆粒上生長的生物膜厚度增加,過厚的生物膜會導致填料顆粒的粘連或結團,影響生化反應的正常進行,因此應定期將過厚的生物膜脫除。本發明通過填料層反洗措施實現過厚生物膜的脫除;可以實現好氧區填料13與缺氧區填料15聯合反洗或缺氧區填料15單獨反洗,以適應缺氧反應區104生物膜生長較快的狀況。
a、好氧區-缺氧區填料聯合反洗
反洗階段與運行階段對比,本階段特點是處理系統不進水不排水,循環水回流正常運行;溶氧器不供風,反應器a底部配水區101供風。
進入反應器a的回流水和空氣一并通過濾頭12進入好氧反應區102、二次配水區103、缺氧反應區104;由于氣泡的擾動強度遠高于水流,使流化狀態的填料顆粒產生快速的運動,填料顆粒之間碰撞產生較強烈的摩擦,填料上生長的生物膜通過摩擦脫落,實現過厚生物膜的剝離。
由于反洗供風來自反應器a底部的配水區101,該反洗過程同步實現了好氧區填料層13和缺氧區填料層15的生物膜剝離,剝離后的生物膜隨上升水流進入出水區105,進入出水區105的還有反洗氣體,水、氣、泥三相經過三相分離器16后分離,氣體被三相分離器16下部罩體16-3、上部罩體16-2截留,匯集到中心筒16-1后排入大氣,水和泥則通過三相分離器16與分離區筒壁之間的環形間隙上升,并溢流進入集水槽17。
b、缺氧區填料單獨反洗
缺氧區填料單獨反洗適合于缺氧區生物膜生長過快的情況,實際運行中可與好氧區填料—缺氧區填料聯合反洗交替進行。
操作過程如下:膨脹床反應器二次配水區103供風閥21、二次配水區103回流閥23、溶氧器回流閥29、循環泵出水閥30均開啟,其余閥門均關閉;循環泵c運行。
與好氧區填料—缺氧區填料聯合反洗對比,本階段特點是:反洗氣體和循環水流只經過缺氧反應區104,不經過好氧氧反應區102。反洗空氣和回流水都進入整流環14與膨脹床反應器筒壁10圍成的環形空間,該環形空間分為氣和水兩部分,氣在上,水在下,氣體再通過整流環14上的上部條孔14-1進入二次配水區103中心區,水則通過整流環14上的下部條孔14-2進入二次配水區103中心區,反洗氣體與循環水流混合后通過缺氧區填料層,對填料上過厚的生物膜進行擦洗,實現脫膜,其原理及過程與聯合反洗相同。
(3)在排泥階段
排泥階段接續在反洗階段之后,目的是將反洗過程產生的生物膜排出處理系統。關閉所有閥門,停運所述循環泵c,靜置,使反應器a的所述出水區105、溶氧器b內的污泥沉淀,開啟排泥閥33排出所述出水區105沉淀的污泥,開啟排泥閥32排出溶氧器b沉淀的污泥。當反應器a底部配水區101的內污泥濃度較高時,開啟泄水閥34將污泥排出系統。
本發明的兩相膨脹床生化工藝相關條件及參數如下:
(1)溶氧量不小于生化過程需氧量
Do≥Ro
DO——溶氧器溶氧量,根據氣液傳質過程計算,g/h;
RO——好氧反應區102生化需氧量,包括碳化過程和硝化過程,g/h;
(2)膨脹床反應器內循環水流使填料層處于膨脹狀態
Qc≥A0UC
Qc——生化系統循環流量,m3/h;
A0——膨脹床反應器填料區橫截面積,m2;
uc——膨脹床反應器填料的臨界流化速度,根據試驗確定,m/h;
本發明的兩相膨脹床反應器及污水處理工藝具有以下特點:
(1)硝化、反硝化共同在膨脹床反應器中完成,與常規硝化反硝化相比,節省投資和占地;
(2)生化反應和溶氧分開完成,獨立控制,避免了傳統生化工藝中溶氧、生化在一個空間內進行所造成的相互干擾,可以同步實現生化反應過程和溶氧過程的優化運行;
(3)采用小顆粒填料,比表面積大,可有效提高單位體積填料內的微生物量,進而提高反應器的容積負荷;
(4)填料床正常運行時處于膨脹狀態,避免固定床可能產生的水流短路;固、液兩相的流態有利于微生物的生長和傳質,提高生物反應效率;
(5)在兩相膨脹床反應器內設置三相分離器,可避免反硝化產生N2對出水的擾動以及反洗脫膜過程中細小顆粒填料隨水流流失;
(6)采用強制水流循環,提高生物反應過程的穩定性和抗沖擊性;
(7)依靠水力條件實現好氧反應區和缺氧反應區的自動分層,膨脹床反應器構造簡單;
(8)生物膜增殖較快的缺氧反應區填料層可單獨進行反洗脫膜,運行方式靈活。
(9)膨脹床反應器、溶氧器適合采用較大的設備高度,大大提高溶氧效率,減少處理系統的占地面積。







